Blog Home > Simple Barndominium Floor Plans

The Houseplans Blog

Simple Barndominium Floor Plans

Discover simple barndominium floor plans.

Hero Image

May 9, 2024

Livabl Brand

Can't find what you're looking for?

Give us a call below or reach out and we’ll make sure to be in contact!

Send Us a Message

By Courtney Pittman

It’s all about functionality with these simple barndominium floor plans. Why do we love them? They've got uncomplicated layouts, generous garages, and well-placed storage. Speaking of simple, all of these designs (each under 2,000 square feet) keep costs down with budget-friendly footprints that have just four corners. Enjoy country style with our roundup below. Some of them feature metal framing, though they're all available with conventional framing too.

Discover our collection of barndominium floor plans

Barn-Style Plan with Wraparound Porch Barn-Style Plan with Wraparound Porch Barn-Style Plan with Wraparound Porch - Front Exterior

Barn-Style Plan with Wraparound Porch Barn-Style Plan with Wraparound Porch - Main Level

A wraparound porch adds country flair to this barndominium floor plan. Inside, the living room opens to the casual dining area and the kitchen. An island in the kitchen adds even more counter space. Nearby, the walk-in pantry is ready for groceries.

Two bedrooms (including the primary suite) sit on the left side of the plan. Storage solutions include the two-car garage, lockers in the back entry, and a walk-in closet in each bedroom.

Barndominium Floor Plan with Mudroom Barndominium Floor Plan with Mudroom Barndominium Floor Plan with Mudroom - Front Exterior

Barndominium Floor Plan with Mudroom Barndominium Floor Plan with Mudroom - Main Level

Here’s a barndo house plan that gives you a simple footprint with plenty of storage options. The spacious mudroom keeps things tidy. Check out the huge garage.

An eating bar in the kitchen is ready for casual meals and overlooks the great room. The primary suite features a generously-sized walk-in closet. Relax on the wide front porch.

Three-Bedroom Design with Garage Three-Bedroom Design with Garage Three-Bedroom Design with Garage - Front Exterior

Three-Bedroom Design with Garage Three-Bedroom Design with Garage - Main Level

Enjoy a taste of country living with this three-bedroom barndominium floor plan. The simple design includes a super-open layout between the island kitchen, the dining area, and the living room. The garage gives you room for storage. What we love: the cute metal roof, the extra-big closet in the primary suite, and the wide front porch.

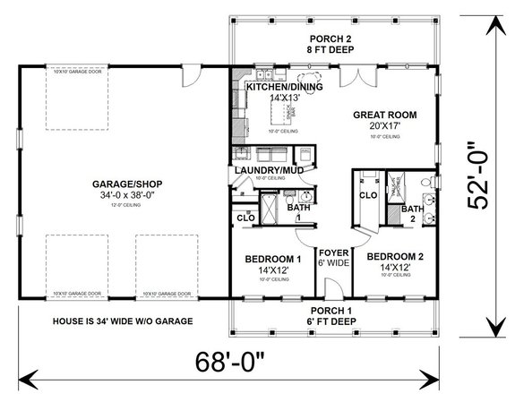
Super-Simple Barndominium Plan Super-Simple Barndominium Plan Super-Simple Barndominium Plan - Front Exterior

Super-Simple Barndominium Plan Super-Simple Barndominium Plan - Main Level

Relax in style with this sleek-and-simple barndominium house plan. A rectangular footprint and an easygoing layout make this design a builder-friendly option. Room for a shop in the garage is a nice touch. Two bedrooms share a full bath at the back of the plan. Take advantage of outdoor living on the covered wraparound porch.

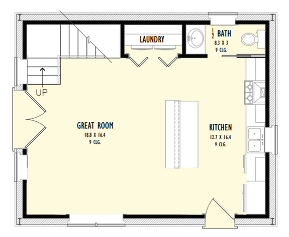
Small Plan with Big Kitchen Island Small Plan with Big Kitchen Island Small Plan with Big Kitchen Island - Front Exterior

Small Plan with Big Kitchen Island Small Plan with Big Kitchen Island - Main Level

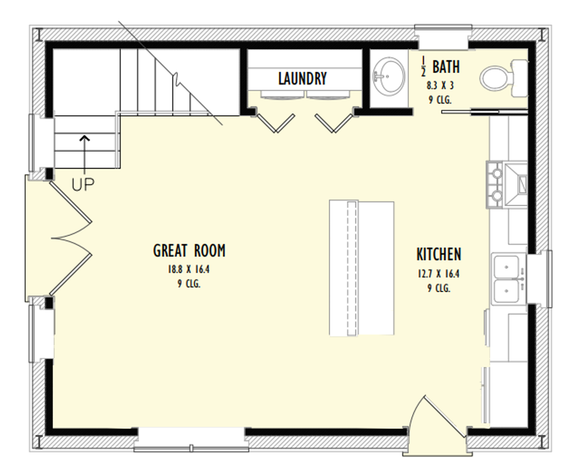
Small Plan with Big Kitchen Island Small Plan with Big Kitchen Island - Upper Level

Here’s a sweet barndominium design. The uncomplicated layout uses space wisely and includes minimal walls and hallways. The extra-large kitchen island easily serves the great room. Two bedrooms share a full bath on the second level.

Simple Design with Big Garage Simple Design with Big Garage Simple Design with Big Garage - Front Exterior

Simple Design with Big Garage Simple Design with Big Garage - Main Level

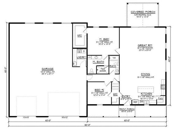
Board-and-batten siding and a wide front porch add curb appeal to this barndominium house plan. The island kitchen, complete with an eating bar, opens to the dining area and the great room.

Bringing the outdoors in, sliding glass doors open to a covered back porch (with a cathedral ceiling) just off the main living spaces. The two-car garage gives you lots of room for storage and organization.

Simple Floor Plan with Open Layout Simple Floor Plan with Open Layout Simple Floor Plan with Open Layout - Front Exterior

Simple Floor Plan with Open Layout Simple Floor Plan with Open Layout - Main Level

Modern and cool, this barndominium design shows off farmhouse curb appeal and an easygoing layout. The island kitchen and the living room provide easy flow with an open-concept floor plan.

At the back, the bedroom includes a walk-in closet. Take a look at the super-spacious garage. The patio just off the main living spaces is a welcome amenity.

Barndo Plan with Shop Barndo Plan with Shop Barndo Plan with Shop - Front Exterior

Barndo Plan with Shop Barndo Plan with Shop - Main Level

Here’s a plan that cuts back on costs with a four-corner footprint. The open floor plan lends a spacious feeling between the island kitchen and the great room. Looking for workshop space? Check out the large garage that also has a door in back (convenient for accessing lawn equipment).

Explore more barndominium floor plans

Get Our Newsletter

Be the first to see new plans, special offers, and more.

By signing up for our newsletter, you agree to our Terms & Conditions and Privacy Policy, for an account

Blog Subscribe Icon