Blog Home > Tiny House Plans with Modern Curb Appeal

The Houseplans Blog

Tiny House Plans with Modern Curb Appeal

These small home designs show off big style.

Hero Image

February 10, 2022

Livabl Brand

Can't find what you're looking for?

Give us a call below or reach out and we’ll make sure to be in contact!

Send Us a Message

By Gabby Torrenti

Tiny house plans are perfect for those looking to embrace small-space living, such as an older couple looking to downsize, or owners of a large property hoping to maximize every square foot of their lot and provide space for guests or an adult child. Whether you’re hoping to make a tiny home your primary residence or simply add to an existing property, this collection of tiny house plans with modern curb appeal is sure to help you find exactly what you’re looking for.

Want to see all of our tiny house plans with modern curb appeal? See the full collection here.

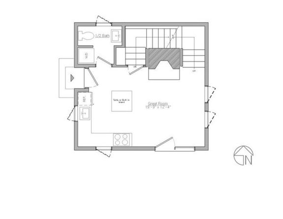
Garage Plan Below, Tiny Home Above Tiny House Plans with Modern Curb Appeal Two-Story Modern Tiny Home 932-40 - Front Exterior Tiny House Plans with Modern Curb Appeal Two-Story Modern Tiny Home 932-40 - Main Floor Plan Tiny House Plans with Modern Curb Appeal Two-Story Modern Tiny Home 932-40 - Lower Floor Plan

On the lower level of this tiny home, a double garage creates lots of storage space and room for two vehicles, with an exterior staircase leading up to the main level. Upstairs, a living room sits at the top of the stairs, with the kitchen located to the left. A center island creates a space to dine with friends or family, while a breakfast nook is perfect for enjoying a quiet cup of coffee just steps away from the second-floor balcony. At the rear of the space, a bedroom with a closet sits across from a full bathroom, with a linen closet and pantry for added storage potential.

Modern Tiny Cabin Tiny House Plans with Modern Curb Appeal Modern Tiny Cabin 924-3 - Front Exterior Tiny House Plans with Modern Curb Appeal Modern Tiny Cabin 924-3 - Main Floor Plan

With covered porches and a deck surrounding the majority of this home, outdoor living is a big priority. Inside, a combined living room and kitchen create a cozy place to relax, just steps away from the home’s study space. This room is perfect for working from home, allowing this tiny cabin to serve as a retreat for remote employees. Behind this space, the primary bedroom features a large closet with a full bathroom located next door. Additional closets throughout make keeping your space organized simple, preventing this tiny space from becoming cluttered.

Modern Cottage Tiny House Plans with Modern Curb Appeal Modern Cottage 25-4928 - Front Exterior Tiny House Plans with Modern Curb Appeal Modern Cottage 25-4928 - Main Floor Plan

At 936 square feet, this chalet-inspired tiny cottage includes all of the features you could want, in a small, modern space. Beyond the front porch, the home opens with an open-concept living and dining space, featuring a kitchen with a small island that can double as your dining table. Two bedrooms occupy the right side of this space, creating plenty of room for a small family to enjoy. A full bathroom sits between these two spaces for optimal convenience, too. When the weather is pleasant, relax outdoors on a deck that any homeowner would envy.

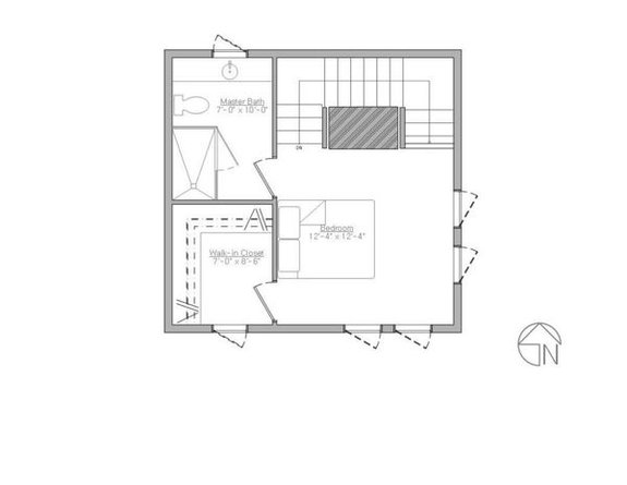
Luxurious Tiny Home Tiny House Plans with Modern Curb Appeal Luxurious Tiny Home 23-602 - Front Exterior Tiny House Plans with Modern Curb Appeal Luxurious Tiny Home 23-602 - Main Floor Plan
Tiny House Plans with Modern Curb Appeal Luxurious Tiny Home 23-602 - Lower Floor Plan

Although this plan is bigger than the others here, it's still suited for a smaller lot. On the lower level, the space opens with a quaint sitting room, which borders one of the two bedrooms on this level. A full bathroom is also located downstairs offering a convenient space to prepare for the day. Up a flight of stairs, the kitchen sits to the left with the living room open to it for seamless mingling with family or friends. An additional bedroom is located toward the rear of the space and can serve as the primary bedroom while guests or children make the lower-level rooms their own. A full bathroom is located right next door. Additional closets throughout this level keep your small space neat.

Looking for space-saving solutions to decorate your tiny home to perfection? Check out these ideas from ExtraSpace Storage.

Ultra-Modern Tiny Home Tiny House Plans with Modern Curb Appeal Ultra-Modern Tiny Home 914-3 - Front Exterior Tiny House Plans with Modern Curb Appeal Ultra-Modern Tiny Home 914-3 - Main Floor Plan
Tiny House Plans with Modern Curb Appeal Ultra-Modern Tiny Home 914-3 - Upper Floor Plan

With a flat roof and extremely clean lines, this home provides visual appeal and streamlined space that is perfect for those looking to embrace tiny home life. Upon walking into this 735-square-foot space, the great room greets you, while the kitchen sits to the left. Open space on this level can serve as a dining room or simply supply you with more room for relaxation. Toward the rear of the home, a powder bathroom with a washer and dryer gives guests a place to freshen up while also creating effortless convenience. Upstairs, enjoy your own private space, as this entire floor serves as a primary suite with a walk-in closet and a bathroom that gives you a wall of vanity space, creating a luxurious haven in this small space.

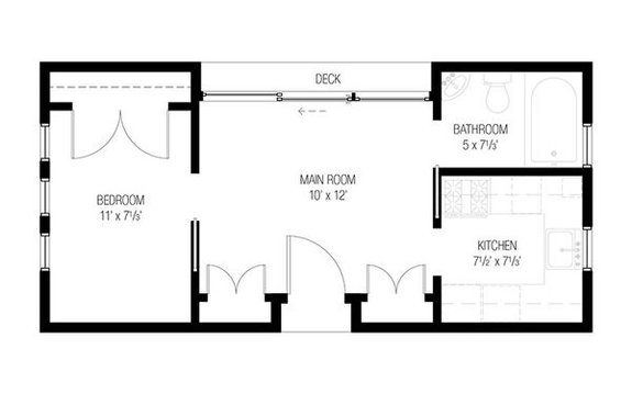
Futuristic Tiny House Tiny House Plans with Modern Curb Appeal Futuristic Tiny House 915-17 - Front Exterior Tiny House Plans with Modern Curb Appeal Futuristic Tiny House 915-17 - Main Floor Plan

This 370-square-foot structure resembles something straight out of a sci-fi film but is a completely livable tiny home. For those looking for a futuristic space with undeniable curb appeal, this is the ultimate pick. Inside, the main room opens the space, offering lots of potential for relaxing with family or hosting guests in this unique home. The kitchen sits to the right, while plenty of space to prepare a favorite meal. Behind the kitchen, a full bathroom is at your disposal, making this quirky structure feel like home. On the opposite side of the home, a bedroom provides a private escape, separate from the rest of the living spaces.

Sleek and Small Living Space [Tiny House Plans with Modern Curb Appeal](plan: 484-4) Sleek and Small Living Space 484-4 - Front Exterior Tiny House Plans with Modern Curb Appeal Sleek and Small Living Space 484-4 - Main Floor Plan

This elegant small house plan is fronted by a spacious sun deck that leads into the primary living area. The combined kitchen/living room is located right inside, creating plenty of space to entertain, while a bedroom and bathroom give you a quiet oasis. An optional one-car garage helps make this space the perfect primary residence, while a wall of glass doors allows you to create effortless indoor/outdoor flow between your property and this space’s interior.

Bold and Modern Tiny Home Tiny House Plans with Modern Curb Appeal Bold and Modern Tiny Home 497-61 - Front Exterior Tiny House Plans with Modern Curb Appeal Bold and Modern Tiny Home 497-61 - Main Floor Plan

With impactful curb appeal and a windowed front corner that lets light stream in, this space is ideal for someone looking to embrace a truly unconventional tiny home lifestyle. Through the front door, the kitchen greets you, with a common room sitting straight ahead. To the right, a bathroom provides convenience, just steps away from the common room. Upstairs, a loft serves as this home’s bedroom, creating a unique retreat to unwind at the end of the day. This truly different home is sure to impress before you even step inside.

Want to see more of our tiny house plans with modern curb appeal? See the full collection here.

Get Our Newsletter

Be the first to see new plans, special offers, and more.

By signing up for our newsletter, you agree to our Terms & Conditions and Privacy Policy, for an account

Blog Subscribe Icon