Craftsman Style House Plan - 3 Beds 2 Baths 2212 Sq/Ft Plan #487-2 - Houseplans.com
Search
REGISTER LOGIN SAVED No Saved Plans CART  Cart Empty
Don't lose your saved plans! Create an account to access your saves whenever you want. See our Terms & Conditions and Privacy Policy.
OR
20% OFF TODAY: CYBER DEALS EXTENDED!
Plan 487-2
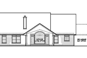
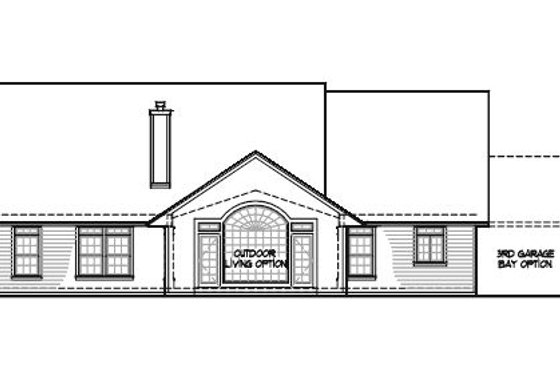
Photographs may show modified designs.
Home  >  Style  >  Craftsman

Craftsman House Plan 487-2

Key Specs


Plan Sq Ft

2212
sq ft

Plan Bedrooms

3
Beds

Plan Bathrooms

2
Baths

Plan Floors

1
Floors

Plan Garages

3
Garages

Questions? Get Personalized Help
Select Plan Set Options
What's included?
$144.00
$80.00
$31.20
$80.00
Subtotal
NOW $696.00
You save $174.00
(20% savings)
Sale ends soon!
Best Price Guaranteed

Or order by phone: 1-800-913-2350
Questions? Get Personalized Help
 

 
Hours:
Ready for Your Call 7 Days a Week
Every Day 7 am - 8:30 pm Eastern

See Terms & Conditions and Privacy Policy.

Thanks for your question.

We will be in touch shortly.

Wow!
Cost to Build Reports
$1.99 with Code
CTBFALL (Limit 1)
Our Cost to Build Report gives you a personalized estimate for building your home, based on your location, plan, and materials.

Residential Construction Guide

Learn Building Basics

This downloadable, 26-page guide is full of diagrams and details about plumbing, electrical, and more.

Key Specs


Plan Sq Ft

2212
sq ft

Plan Bedrooms

3
Beds

Plan Bathrooms

2
Baths

Plan Floors

1
Floors

Plan Garages

3
Garages

Plan Description


Open Contemporary Interior Spaces in New England Exterior Charm

This plan can be customized!

Tell us about your desired changes so we can prepare an estimate for the design service. Click the button to submit your request for pricing, or call 1-800-913-2350.

Floor Plans


Floor Plan - Main Floor

Reverse
houseplans LOGO

BUILDER Advantage Program

PRO BUILDERS

Join the club and save 5% on your first order.
PLUS download exclusive discounts and more.

LEARN MORE

Full Specs & Features


Basic Features

Bedrooms : 3
Baths : 2
Stories: 1
Garages: 3

Dimension

Depth : 50'
Height : 26'
Width : 60'

Area

Total : 2212 sq/ft
Garage : 486 sq/ft
Main Floor : 2212 sq/ft
Patios : 220 sq/ft
Porch : 137 sq/ft
Storage : 22 sq/ft
* Total Square Footage typically only includes conditioned space and does not include garages, porches, bonus rooms, or decks.

Ceiling

Ceiling Details : Barrel arched ceilings at Porch and Foyer; Vaulted Great Room and Outdoor Living Option; False box beams at Great Room; Trayed ceilings with crown molding to 10 feet high at Dining and Master Bedroom.
Garage Ceiling : 10'
Main Ceiling : 9'

Roof

Primary Pitch : 8:12
Roof Framing : Manufactured Wood Trusses
Roof Load : 40# Total
Roof Type : Architectural Composition
Secondary Pitch : 12:12

Exterior Wall Framing

Exterior Wall Finish : Cedar or fiber cement shake and horizontal lap siding with manufactured stone accents.
Framing : 2"x6"
Insulation : R-21 Exterior Walls
Seismic Rating : DI, DII
Wind Rating : 110 mph (or less)

Bedroom Features

Main Floor Bedrooms
Main Floor Master Bedroom
Walk In Closet

Kitchen Features

Breakfast Nook
Eating Bar
Walk In Pantry Cabinet Pantry

Additional Room Features

Den Office Study Computer
Great Room Living Room
Main Floor Laundry
Master Sitting Area
Mud Room
Storage Area
Wet Bar

Garage Features

Front Entry Garage
Oversized Garage
Tandem Garage

Entryway

Friend S Entry

Lot Characteristics

Suited For Corner Lot
Suited For Sloping Lot
Suited For View Lot

Outdoor Spaces

Covered Front Porch
Covered Rear Porch
Grill Deck Sundeck

More

Economical To Build
Suited For Vacation Home
Wheelchair Adaptable

Code Compliance

Irc 2006

Structural Information Provided

Foundation Drawing
Structural 1st Floor Framing
Structural Calculations
Structural Notes
Structural Roof Framing

Energy Efficient Features

Energy Efficient Design

What's included in this plan set


See a sample plan set

All plans are drawn at ¼” scale or larger and include :

  • Foundation Plan: This page shows all necessary notations and dimensions including support columns, walls, and excavated/unexcavated areas.
  • Exterior Elevations: Views of the home from all four sides showing exterior materials and measurements.
  • Floor Plan(s): Detailed plans for each level showing room dimensions, wall partitions, windows and doors, etc.
  • Cross Section: A slice of the home from roof to foundation, showing important details like stairs and wall construction.
  • Overhead Roof Plan(s): A view of the home from above showing roof pitch, peaks, valleys, and other details.
  • Construction Notes and Details: Shows the builder how things come together, like walls, the chimney, insulation, and more.
* See important information before purchasing

Pricing


Plan Options

PDF Set

Best Value!
$696.00
PDF plan sets are best for fast electronic delivery and inexpensive local printing.

Reproducible Set

$696.00
For inexpensive local printing / making minor adjustments by hand. 1 printed set, typically on Bond paper.

CAD Set

$1152.00
For use by design professionals to make substantial changes to your house plan and inexpensive local printing.

Single Set

$504.00
One printed set for bidding purposes only. Not a legal building set for construction.

Foundation Options

Pier

$0.00
Ideal for lot conditions where the home needs to be off the ground. A pier foundation consists of wood posts or concrete piers connected by beams to support the home. Some lots may require drilling deep into bedrock to support the posts.

Slab

$200.00
Ideal for level lot, single layer concrete poured directly on grade.

*Options with a fee may take time to prepare. Please call to confirm.

Additional Options

Right-Reading Reverse

$144.00
Choose this option to reverse your plans and to have the text and dimensions readable.

Audio Video Design

$80.00
Receive an overlay sheet with suggested placement of audio and video components.

Construction Guide

$31.20
Educate yourself about basic building ideas with these four detailed diagrams that discuss electrical, plumbing, mechanical, and structural topics.

Lighting Design

$80.00
Receive an overlay sheet with suggested placement of lighting fixtures.

*Options with a fee may take time to prepare. Please call to confirm.

Unless you buy an “unlimited” plan set or a multi-use license you may only build one home from a set of plans. Please call to verify if you intend to build more than once. Plan licenses are non-transferable and cannot be resold.

We offer a 90% credit when you upgrade from a set, that is not for construction, to a 5-Copy set (or greater).

Browse Similar Plans

Need help? Let our friendly experts help you find the perfect plan!

Contact us now for a free consultation.