Traditional Style House Plan - 3 Beds 3.5 Baths 2272 Sq/Ft Plan #51-1257 - Houseplans.com
Search
REGISTER LOGIN SAVED No Saved Plans CART  Cart Empty
Don't lose your saved plans! Create an account to access your saves whenever you want. See our Terms & Conditions and Privacy Policy.
OR
Home  >  Style  >  Traditional

Traditional House Plan 51-1257

Key Specs


Plan Sq Ft

2272
sq ft

Plan Bedrooms

3
Beds

Plan Bathrooms

3.5
Baths

Plan Floors

2
Floors

Plan Garages

2
Garages

Questions? Get Personalized Help
Select Plan Set Options
What's included?
$250.00
$165.00
$295.00
Subtotal
$2050.00
Best Price Guaranteed

Or order by phone: 1-800-913-2350
Questions? Get Personalized Help
 

 
Hours:
Ready for Your Call 7 Days a Week
Every Day 7 am - 8:30 pm Eastern

See Terms & Conditions and Privacy Policy.

Thanks for your question.

We will be in touch shortly.

Wow!
Cost to Build Reports
$1.99 with Code
CTB2026 (Limit 1)
Our Cost to Build Report gives you a personalized estimate for building your home, based on your location, plan, and materials.

Residential Construction Guide

Learn Building Basics

This downloadable, 26-page guide is full of diagrams and details about plumbing, electrical, and more.

Key Specs


Plan Sq Ft

2272
sq ft

Plan Bedrooms

3
Beds

Plan Bathrooms

3.5
Baths

Plan Floors

2
Floors

Plan Garages

2
Garages

Plan Description


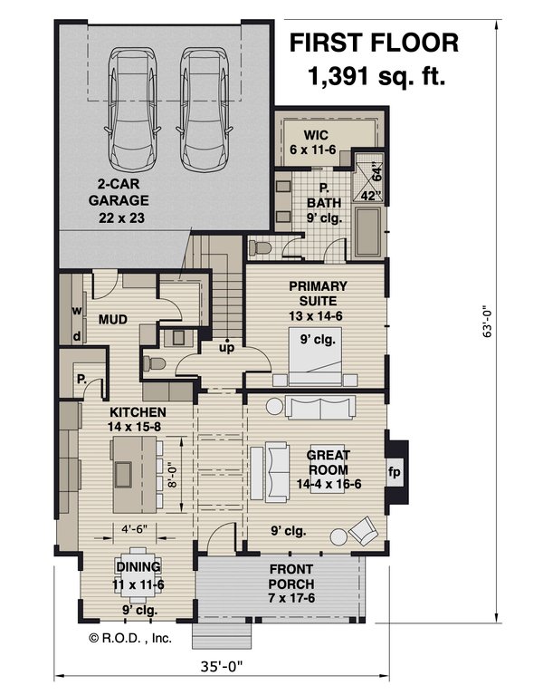
Experience the timeless allure of a traditional style home, boasting 2242 square feet of living space. This residence, featuring 3 bedrooms, 3 ½ bathrooms and a 2-car garage, harmoniously merges classic design with contemporary functionality. At the heart of this home, the expansive great room embraces you with its cozy fireplace, creating a central gathering area for relaxation and togetherness. The large kitchen island, seating 4, takes center stage, serving as the hub for culinary creativity and social interaction. A walk-in pantry and numerous cabinets fulfill your storage needs with grace and practicality. Adjacent to the kitchen, the dining area enjoys abundant natural light from windows on three sides, creating a picturesque setting for shared meals and cherished memories. The main level primary suite offers a haven of retreat, featuring a private bath and a spacious walk-in closet, ensuring both comfort and organization. Ascending to the upper level, two additional bedrooms each enjoy full private baths, guaranteeing convenience and personal space. A spacious loft offers versatility, serving as a relaxing oasis or flexible space. Supplementing the loft, the upper level provides additional bonus space, offering endless potential for customization. This traditional style home effortlessly weaves timeless elegance with contemporary comfort. Meticulously designed spaces enhance both usability and aesthetic, resulting in a house plan that embodies the essence of gracious living, while leaving room for personalization.

This plan can be customized!

Tell us about your desired changes so we can prepare an estimate for the design service. Click the button to submit your request for pricing, or call 1-800-913-2350.

Floor Plans


Floor Plan - Main Floor

Reverse
houseplans LOGO

BUILDER Advantage Program

PRO BUILDERS

Join the club and save 5% on your first order.
PLUS download exclusive discounts and more.

LEARN MORE

Floor Plan - Upper Floor

Reverse

Floor Plan - Main Floor

Reverse

Floor Plan - Upper Floor

Reverse

Full Specs & Features


Basic Features

Bedrooms : 3
Baths : 3.5
Stories: 2
Garages: 2

Dimension

Depth : 63'
Width : 35'

Area

Total : 2272 sq/ft
Bonus : 286 sq/ft
Garage : 536 sq/ft
Main Floor : 1391 sq/ft
Porch : 123 sq/ft
Upper Floor : 881 sq/ft
* Total Square Footage typically only includes conditioned space and does not include garages, porches, bonus rooms, or decks.

Ceiling

Main Ceiling : 9'
Upper Ceiling Ft : 8'

Roof

Roof Framing : Truss

Exterior Wall Framing

Framing : 2x6

Bedroom Features

Main Floor Master Bedroom
Upstairs Bedrooms
Walk In Closet

Kitchen Features

Kitchen Island
Walk In Pantry Cabinet Pantry

Additional Room Features

Great Room Living Room
Loft
Main Floor Laundry
Master Sitting Area
Mud Room
Unfinished Future Space

Garage Features

Rear Entry Garage

Lot Characteristics

Suited For Corner Lot
Suited For Narrow Lot
Suited For Sloping Lot
Suited For View Lot

Outdoor Spaces

Covered Front Porch

More

Additional Half Bath

What's included in this plan set


See a sample plan set
Plans are typically drawn to ¼” scale and include:
  • Foundation Plan(s): This page shows all necessary notations and dimensions including footings, support columns, walls, and excavated/unexcavated areas.
  • Floor Plan(s): Detailed plans, drawn to 1/4" scale for each level showing room dimensions, wall partitions, windows, etc.
  • Exterior Elevations: A blueprint picture of all four sides showing exterior materials and measurements. Drawn to 1/4" and 1/8" scale.
  • Overhead Roof Plan(s): A view of the home from above showing roof pitch, peaks, valleys, and other details.
  • Cross Section(s): A slice of the home from roof to foundation, showing relationships between floors, roof, and foundation.
  • Construction Notes / Detail(s): Shows basic parts and assemblies recommended for the home so the builder can see how things come together.
  • Other Note(s): This plan will not contain an electrical layout.
* See important information before purchasing

Pricing


Plan Options

PDF Set

Best Value!
$2050.00
PDF plan sets are best for fast electronic delivery and inexpensive local printing.

5 Copy Set

$2250.00
5 printed plan sets mailed to you.

5 Copy and PDF Set

$2350.00
5 printed plan sets mailed to you plus PDF plan sets are best for fast electronic delivery and inexpensive local printing.

8 Copy Set

$2350.00
8 printed plan sets mailed to you.

CAD Single Build

$2700.00
For use by design professionals to make substantial changes to your house plan and inexpensive local printing.

Foundation Options

Crawlspace

$0.00
Ideal for semi-sloped or level lot, home can be built off of grade, typically 18” - 48”.

Slab

$400.00
Ideal for level lot, single layer concrete poured directly on grade.

*Options with a fee may take time to prepare. Please call to confirm.

Framing Options

Wood 2x6

$0.00
Wood 2x6 Exterior Walls

Wood 2x4

$250.00
Wood 2x4 Exterior Walls

*Options with a fee may take time to prepare. Please call to confirm.

Additional Options

Right-Reading Reverse

$250.00
Choose this option to reverse your plans and to have the text and dimensions readable.

Audio Video Design

$165.00
Receive an overlay sheet with suggested placement of audio and video components.

Construction Guide

$295.00
Educate yourself about basic building ideas with these four detailed diagrams that discuss electrical, plumbing, mechanical, and structural topics.

*Options with a fee may take time to prepare. Please call to confirm.

Unless you buy an “unlimited” plan set or a multi-use license you may only build one home from a set of plans. Please call to verify if you intend to build more than once. Plan licenses are non-transferable and cannot be resold.

Other Plans By This Designer

See all plans by
this designer

Need help? Let our friendly experts help you find the perfect plan!

Contact us now for a free consultation.

Coupon Codes