Don't lose your saved plans! 
Create an account to access your saves whenever you want. See our Terms & Conditions and Privacy Policy.
OR

Colonial House Plan 927-923 4066 Sq Ft, 5 Bed, 4.5 Bath, 2 Floor, 3 Garage

Key Specs
  • 5
    Beds
  • 4.5
    Baths
  • 2
    Floors
  • 3
    Garages
  • 4066
    Square Feet
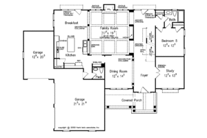
This a great home for a large, active family that is continually inviting friends over. Five bedrooms, four of them upstairs, offer lots of sleeping space. A large entertainment room is designed for games, music, and movies. On the main floor, a spacious family room with a fireplace and coffered ceiling and a formal dining room will provide many memorable get-togethers. The study offers a quiet retreat, and the nearby bedroom, which adjoins a full bath, works well as a guest room. The casual eating area flows into the kitchen, which is well-designed for effortless food preparation. Upstairs, the master suite occupies the left wing of the floor and features a large sitting area, huge dual walk-in closets, and a vaulted bathroom. The laundry room is conveniently located on this level, and closets everywhere keep everything organized. One family bedroom has a private bathroom, while two more share a full bath with dual vanities.


Special offer for builders! Select a CAD, PDF, or Reproducible format, and you will receive an unlimited use license at no additional cost. Build as many times as you like with no re-use fees! This offer only applies to plans bearing this note. Unless explicitly noted, a purchased plan may only be built once. An unlimited use license is not transferable.

Questions on this plan?

New to the process and looking for some help to kick things off? Let us know a bit about your plans and we’ll be happy to help.

Budget & Customization Tools

Modify icon
Customize this Plan
Tell us about your desired changes and we can prepare an estimate.
Cost to Build icon
Cost to Build Report
A personalized estimate based on your location, plan, & materials.
Cost to Build icon
Residential Construction Guide
This downloadable, 26-page guide is full of diagrams and details about plumbing, electrical, and more.

Full specs & Features

Basic Features

Bedrooms: 5
Baths: 4.5
Stories: 2
Garages: 3

Dimension

Depth: 54' 4"
Width: 69'

Area

Total: 4066 sq/ft
First Floor: 1773 sq/ft height 10'
Second Floor: 2293 sq/ft
* Total Square Footage typically only includes conditioned space and does not include garages, porches, bonus rooms, or decks.

Roof

Primary Pitch: 10:12
Roof Framing: Conventional
Roof Type: Shingle

Exterior Wall Framing

Exterior Wall Finish: Brick/Siding
Framing: Wood - 2x4

Bedroom Features

Fireplace
Formal Dining Room

Kitchen Features

Breakfast Nook
Kitchen Island

Additional Room Features

Den Office Study Computer
Family Room Keeping Room
Hobby Rec Room Game Room
Master Sitting Area
Upstairs Laundry

Outdoor Spaces

Covered Front Porch

Rooms

Bedroom 2:

153 sq/ft width 12' x depth 12' 10"

Bedroom 3:

183 sq/ft width 12' x depth 15' 4"

Bedroom 4:

140 sq/ft width 12' x depth 11' 8"

Dining Room:

174 sq/ft width 12' 4" x depth 14' 2"

Garage:

4699 sq/ft width 21' 5" x depth 219' 5"

Gathering Room:

323 sq/ft width 17' x depth 19'

Master Bedroom:

280 sq/ft width 14' 9" x depth 19'

Study:

162 sq/ft width 12' x depth 13' 6"

What's Included

Plans are typically drawn to ¼” scale and include:
  • Foundation Plan(s): Every plan is available with a walkout style basement (three masonry walls and one wood framed rear wall with windows and doors). The basement plans are a 1/4" or 3/16" scale layout of unfinished spaces showing only the necessary 2 x 6 wood framed load bearing walls. These plans are completed with dimensions, notes, and door/window sizes. Crawl space and/or slab on grade foundations are available for some plans. All foundation types are not available for all plans.
  • Floor Plan(s): Each plan consists of 1/4" or 3/16" scale floor layouts showing the location of 2x4 walls, doors, windows, plumbing fixtures, cabinetry, stairs and decorative ceilings. These plans are complete with dimensions, notes, door/window sizes and a schematic electrical layout.
  • Exterior Elevations: All plans include the front elevation at 1/4" or 3/16" and the sides and rear elevations at 1/8" scale or 3/32" scale, and the roof plan at 1/8" or 3/32" scale. These elevations show and note the exterior finished materials of the house.
  • Interior Elevations: Available for some plans. The kitchen and bath elevations show the arrangement and size of each cabinet and other fixtures in the room. These drawings give basic information that can be used to create customized layouts with a cabinet manufacturer. Details are included for many interior and exterior conditions to provide more specific information for their construction.
  • Overhead Roof Plan(s): A view of the home from above showing roof pitch, peaks, valleys, and other details.
  • Cross Section(s): The building sections are drawings which take vertical cuts through the house and the stairs showing floor, ceiling and roof height information.
  • Detail Sheet(s): Each plan order includes one set of typical detail sheets that show foundation details, typical wall sections and other framing details. Also included on the detail sheets are miscellaneous interior trim and fireplace details that can be used to customize the home.
  • Construction Notes / Detail(s): Shows basic parts and assemblies recommended for the home so the builder can see how things come together.
  • Framing Detail(s): Framing plans are not available for all home plans. If included, the framing layout is intended to be a suggested layout only. Design loads and weather conditions vary by region. As a result the size, spacing, and layout of all structural elements in this home design may need approval by a structural engineer or code official based on your specific site location. Each floor framing plan shows each floor joist indicating the size, spacing and length. All beams are labeled and sized. All of the joist are counted and coordinated with the material list (when available). Each framing plan sheet includes any framing details that are needed (tray details, connection details, etc.). All of the framing is designed using conventional 2 X 10 floor joist or wood I-Joist, depending on the span conditions of each home plan. The ceiling joist framing plan shows each ceiling joist indicating the size, spacing and length. All beams are labeled and sized. All of the joist are counted and coordinated with the material list (when available). The roof framing plan shows each rafter, valley, hip and ridge indicating the size, spacing and length. All beams are labeled and sized. All of the joist are counted and coordinated with the material list (when available).

FAQs

Are designs on Houseplans ready to submit to my building department for permitting?

It depends on where you're building. Our plans contain enough information for a professional builder to construct your home, but your local government may require additional information before permitting. We strongly advise that you talk with your builder before you get started. If you are building for yourself, we recommend visiting your local building department to start your diligence. Read more here.

Can I make changes to a plan?

Absolutely! Our modification service allows you to customize almost anything - whether it's adding an extra garage bay, adjusting square footage, changing the roof pitch, or more, the plan modification service is a great value and can be completed quickly. Additionally, if you purchase an electronic plan set (PDF or CAD), you may have the option to make changes locally. CAD files offer the most flexibility for custom edits. Just let us know what you're thinking, and we’ll provide an estimate and timeframe to get started. Learn more here.

How much does a house cost to build?

Find out! Build costs vary based on the size of the home, materials used, and local rates for goods and labor. Our Cost to Build report is a great way to get some basic costs dialed in before you order your plans. Just plug in your postal code, select your desired construction quality, and we'll calculate for you.

Learn more about Cost to Build reports here.

Can I trust Houseplans?

Founded in 2004, Houseplans works with hundreds of architects and designers to offer their plans at a fraction of the price of custom design. Houseplans has an "Excellent" rating on TrustPilot.

Read more about us here.

Does Houseplans offer live support?

Yes, Houseplans has a dedicated team of house plan advisors with decades of experience between them. You can reach them by calling, emailing, filling out a form on the page of a plan that you like, or going to the Contact Us page. We're available to talk every day, even on weekends.

Builder Advantage Home

Builder Advantage Program

Are you a Pro Builder? Join the club, save 5% on your first order, get exclusive discounts, and more.

Learn More

You may also like

Save Plan
Colonial

Plan 20-1220

$1255.00

beds3

bd

baths2.5

ba

stories2

stories

square feet1699

sq ft

Save Plan
Classical

Plan 20-2173

$7640.00

beds6

bd

baths6.5

ba

stories2

stories

square feet9360

sq ft

Save Plan
Traditional

Plan 20-2346

$1305.00

beds4

bd

baths2.5

ba

stories2

stories

square feet2257

sq ft

Recently viewed plans

Exterior - Front Elevation for Colonial House Plan #927-923 - 5 bed, 4.5 bath
Save Plan

Plan 927-923

$3145.00

beds5

bd

baths4.5

ba

stories2

stories

square feet4066

sq ft

Exterior - Front Elevation for Craftsman House Plan #56-685 - 3 bed, 2.5 bath
Save Plan

Plan 56-685

$1395.00

beds3

bd

baths2.5

ba

stories1

story

square feet2000

sq ft

Exterior - Front Elevation for Traditional House Plan #124-1343 - 2 bed, 2 bath
Save Plan

Plan 124-1343

$685.00

beds2

bd

baths2

ba

stories1

story

square feet800

sq ft