Cottage Style House Plan - 1 Beds 1 Baths 600 Sq/Ft Plan #917-10 - Houseplans.com
Search
REGISTER LOGIN SAVED No Saved Plans CART  Cart Empty
Don't lose your saved plans! Create an account to access your saves whenever you want. See our Terms & Conditions and Privacy Policy.
OR
FINAL HOURS: 15% OFF ENDS TONIGHT
Photographs may show modified designs.
Home  >  Style  >  Cottage

Cottage House Plan 917-10

Key Specs


Plan Sq Ft

600
sq ft

Plan Bedrooms

1
Beds

Plan Bathrooms

1
Baths

Plan Floors

2
Floors

Plan Garages

2
Garages

Questions? Get Personalized Help
Select Plan Set Options
What's included?
$85.00
$33.15
$85.00
$297.08
Subtotal
NOW $594.15
You save $104.85
(15% savings)
Sale ends soon!
Best Price Guaranteed

Or order by phone: 1-800-913-2350
Questions? Get Personalized Help
 

 
Hours:
Ready for Your Call 7 Days a Week
Every Day 7 am - 8:30 pm Eastern

See Terms & Conditions and Privacy Policy.

Thanks for your question.

We will be in touch shortly.

Wow!
Cost to Build Reports
$1.99 with Code
CTB2026 (Limit 1)
Our Cost to Build Report gives you a personalized estimate for building your home, based on your location, plan, and materials.

Residential Construction Guide

Learn Building Basics

This downloadable, 26-page guide is full of diagrams and details about plumbing, electrical, and more.

Key Specs


Plan Sq Ft

600
sq ft

Plan Bedrooms

1
Beds

Plan Bathrooms

1
Baths

Plan Floors

2
Floors

Plan Garages

2
Garages

Plan Description


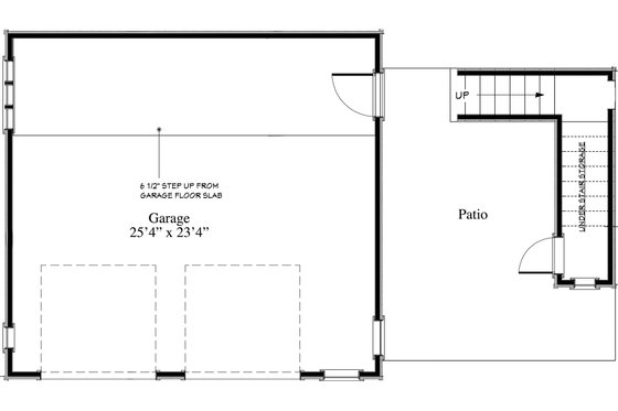
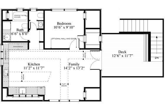
It’s a lot like its little brother, Plan # 917-8, but bigger and roomier, with 1 ½ baths, room for a king-size bed, and a 2-car garage. We don’t know about you, but we like the ability to keep two cars at our pied-a-terre. Features 24' wide x 26' deep. Generous space for 2 cars, plus work or storage space on a raised slab area. Lower patio, large upper deck, storage under stairs. 600-square-foot open plan with high vaulted ceilings and windows on all sides. Large kitchenette, full bath with washer/dryer, plus an additional half-bath. Living area with space for a queen-size sofa bed. Bedroom (or additional open area) with space for a king-size bed or sofa bed.

This plan can be customized!

Tell us about your desired changes so we can prepare an estimate for the design service. Click the button to submit your request for pricing, or call 1-800-913-2350.

Floor Plans


Floor Plan - Main Floor

houseplans LOGO

BUILDER Advantage Program

PRO BUILDERS

Join the club and save 5% on your first order.
PLUS download exclusive discounts and more.

LEARN MORE

Floor Plan - Upper Floor

Full Specs & Features


Basic Features

Bedrooms : 1
Baths : 1
Stories: 2
Garages: 2

Dimension

Depth : 24'
Height : 22' 5"
Width : 42' 4"

Area

Total : 600 sq/ft
Garage : 624 sq/ft
Upper Floor : 600 sq/ft
* Total Square Footage typically only includes conditioned space and does not include garages, porches, bonus rooms, or decks.

Ceiling

Garage Ceiling : 8'
Upper Ceiling Ft : 11'

Roof

Primary Pitch : 12:12
Roof Framing : Stick
Secondary Pitch : 4:12

Exterior Wall Framing

Exterior Wall Finish : Horizontal Lap Siding
Framing : 2x4

Bedroom Features

Upstairs Bedrooms
Walk In Closet

Additional Room Features

Storage Area

Garage Features

Front Entry Garage

Lot Characteristics

Suited For View Lot

Outdoor Spaces

Covered Front Porch
Grill Deck Sundeck

More

Suited For Vacation Home

What's included in this plan set


See a sample plan set
PDF Plan Sets - all printed in color on 11" x 17" paper. The designer says that this is cheaper to print/copy than larger format plan sets, easier to use on the job site, easier to use when shopping for tile, etc., and more convenient to archive after your house or accessory building is complete.
  • Cover Sheet: General notes, full-color exterior rendering of the garage/apartment
  • Foundation Plan(s): This page shows all necessary notations and dimensions including footings, support columns, walls, and excavated/unexcavated areas.
  • Floor Plan(s): Drawn to a scale of 1/4"=1'-0" (1/4 inch equals 1 foot; 1 inch equals 4 feet). Position and dimensions of doors, windows, interior walls, etc. are indicated.
  • Exterior Elevations: Drawn to 1/4-inch scale. Detailed drawings of all sides of the building. Suggested exterior materials, and critical vertical dimensions. Suggested window sizes and types.
  • Overhead Roof Plan(s): Dimensioned roof plan and roof framing plan. If included, the framing layout is intended to be a suggested layout only. Design loads and weather conditions vary by region. As a result the size, spacing, and layout of all structural elements in this home design may need approval by a structural engineer or code official based on your specific site location.
  • Cross Section(s): Building Section drawn to 3/8-inch scale. Includes wall and roof section, dimensions of wall plate heights from slab-on-grade, eave overhang dimension from exterior wall studs, and generic exterior wall details, not to scale.
  • Electrical Plan(s): Drawn to 1/4-inch scale. Shows suggested locations for electrical components lighting fixtures, switches, and outlets.
  • Construction Notes / Detail(s): Shows basic parts and assemblies recommended for the home so the builder can see how things come together.
* See important information before purchasing

Pricing


Plan Options

PDF Set

Best Value!
$594.15
PDF plan sets are best for fast electronic delivery and inexpensive local printing.

Foundation Options

Slab

$0.00
Ideal for level lot, single layer concrete poured directly on grade.

*Options with a fee may take time to prepare. Please call to confirm.

Additional Options

Audio Video Design

$85.00
Receive an overlay sheet with suggested placement of audio and video components.

Construction Guide

$33.15
Educate yourself about basic building ideas with these four detailed diagrams that discuss electrical, plumbing, mechanical, and structural topics.

Lighting Design

$85.00
Receive an overlay sheet with suggested placement of lighting fixtures.

Unlimited Use License

$297.08
Allows you to build this home as many times as you want.

*Options with a fee may take time to prepare. Please call to confirm.

Unless you buy an “unlimited” plan set or a multi-use license you may only build one home from a set of plans. Please call to verify if you intend to build more than once. Plan licenses are non-transferable and cannot be resold.

Meet the Designer

The Homestead Partners

The Homestead Partners - Houseplans.com
House plans for small, big, colonial, modern, and everything in between. You may insist on having more than one. We're Ron Sakal and Sallie Hood (sakal-hood.com), a husband-and-wife team of architects who've spent decades creating workable townscapes, rescuing city centers from random development, designing beautiful houses, and teaching bright young architecture students how to do the same. Along the way, we've become experts on the styles of American houses, ideas, designs, and materials that transform small and affordable spaces into wonderful places to live. Now we're offering those great American styles to everyone who yearns for something more interesting and more connected to the American culture. Look around our collection of houses and see what moves you. After that, our firm is just like that home of yours: small and affordable. Ron Sakal, formerly Executive Director and co-founder of the Center for Building Communities and Professor of the practice, University of Notre Dame School of Architecture. Sallie Hood, formerly director of designs and co-founder of the Center for Building Communities and Professor of the practice, University of Notre Dame School of Architecture. Introducing the "The California Collection" - Less than half the size of a doublewide. Six gorgeous little 400-square-foot houses, each with full kitchens and bathroom, private bedroom with space for at least a queen-size bed, living/dining/kitchen that opens to an outdoor dining patio or terrace, and plenty of storage. Big enough to have a friend over. Just make sure you're in love with them first. Santa Barbara (Plan # 917-3) Santa Cruz (Plan # 917-4) Rancho Mirage (Plan # 917-1) San Rafael (Plan # 917-2) Sonoma (Plan # 917-6) Silverlake (Plan # 917-5) Introducing the "Lake Cottage Collection" - Charming and cozy, but not too sweet. Inspired by the 1920s cottages on the eastern shore of Lake Michigan, here's a compound for your extended family. Or one house for you. There are five: two big, two medium, and one small, with two garages to mix and match. Union Pier (Plan # 917-13) Lakeside (Plan # 917-12) 2 Car Garage w/Studio (Plan # 917-10) 1 Car Garage w/Studio (Plan # 917-8) Studio (Plan # 917-11) 2 Car Garage (Plan # 917-9) 1 Car Garage (Plan # 917-7) Click the plan images below to explore these two great collections.

Other Plans By This Designer

See all plans by
The Homestead Partners

Browse Similar Plans

Need help? Let our friendly experts help you find the perfect plan!

Contact us now for a free consultation.