Floor
plans can be confusing at first glance so here are ten pointers to help
you understand what you’re seeing. This “study aid” should help you
identify features of a design that are important for the way you want to
live.
1. Find The Front Door. It’s often marked simply with door swings, or “Entry” ”Foyer," or even"Entry Gallery" -- as in Modern Farmhouse Plan 888-1 shown above. If the front door opens directly to the living or dining space there’s often no notation, just the door swing. Door swings trace the swing of the door in and out — good to keep in mind as you think about furniture placement. Sliding doors are noted not as swings but as thin lines parallel to — but thinner than — the line of the wall.
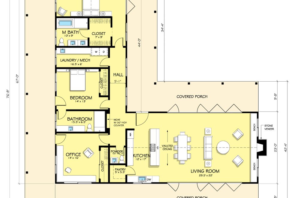
2. Mentally Walk Through The Plan. From the front door go to the kitchen, living room or great room and then to the bedrooms. Imagine opening all the doors on the plan. Is there a graceful easy, and efficient flow between rooms and spaces? Craftsman house plan 461-31 below is a good example -- the circulation has no dead-end spaces.

Furniture on the plan helps give scale to each space. Amenities are important but if the traffic flow is awkward the house will not live comfortably. Think about how the kitchen connects to the dining room or family room, where most people live.
3. Gauge The Garage Entry. Follow the path from garage to kitchen. Often you’ll pass a utility area, mud

room, or laundry, as here in Plan 449-8. This is the way most people enter a house; circulation should be clear and easy without tight corners so coming in with groceries or other items is as convenient as possible.
4. Note Room Dimensions. These are usually included in the floor plan but on Houseplans.com sometimes the measurements are listed on the Plan Detail Page under the tab “More Plan Information.” Compare the listed dimensions to your own experience of comfortable room sizes. Do this by measuring the width, length, and height of one or two of the rooms you’re living in now, or of rooms you like. Note: according to International Code Council R304 “Habitable rooms shall not be less than 7 feet in any horizontal dimension.” This is very small for a room — or large for a cage…After having participated in the design of many idea houses for Sunset magazine I think a 10-by-12-foot bedroom is too small. But you may disagree.
5. Smoke Out The Fireplace. Is there room for furniture around it? I like the way the great room fireplace in modern prairie style plan 48-255 is part of a wall with built-in storage for media and books.

A fireplace too close to a doorway is not very useful.
6. Search for Storage. Are the closets adequate and where they need to be? Ideally, storage areas should suit the type of object being stored: coats and boots in a mudroom; large shelves for CostCo supplies, etc.,

etc. In Plan 64-111 you’ll find a closet under the foyer stair, an ample pantry in the kitchen, and a storage area in the utility/laundry room.
7. Study The Stairway(s). Is there full height over it — creating an open feel — or does it just disappear into

the ceiling, which makes a room feel small and cramped. The stair in Plan 454-14 rises in what is, in effect, a large light well, brightening surrounding spaces.
8. Watch Window Placement. Windows on two sides of a room balance daylight and create a spacious feeling; windows on just one side of a room create a cave-like feeling and promote glare. Windows set high in a wall can provide daylight while preserving privacy; however a room with these high windows, often called clerestories, will feel tight and boxy if it does not also have lower windows on another wall for views.

A window wall that wraps around the end of a room, as in Plan 124-691, can be an especially dramatic way to celebrate a view -- as long as there is an overhang to protect from too much direct sunlight.
9. Patrol The Porch. Is it wide enough to really use? You need at least a six foot depth for sitting and 8 feet is preferable. For outdoor dining you need even more. Rustic farmhouse plan 17-2017 includes a useful front veranda and a “Grilling Porch” at the rear off the kitchen.

A well designed porch helps a house expand in good weather.
10. Connect House And Lot. This is extremely important. Think about your site and how the plan should be oriented on it to make the best use of outdoor space and sunshine/shade, which is what

contemporary Plan 552-2 does extremely well. It shows how the house wraps around the yard containing large deck and pool. You can see how the main living space and master suite connect to this outdoor space.
At Houseplans.com we believe every stock plan should be customized to fit you and your lot. For example, it’s easy to add doors for access to a yard – and windows for a visual connection to the site — these are the simplest ways to make a small house live large.
1. Find The Front Door. It’s often marked simply with door swings, or “Entry” ”Foyer," or even"Entry Gallery" -- as in Modern Farmhouse Plan 888-1 shown above. If the front door opens directly to the living or dining space there’s often no notation, just the door swing. Door swings trace the swing of the door in and out — good to keep in mind as you think about furniture placement. Sliding doors are noted not as swings but as thin lines parallel to — but thinner than — the line of the wall.
2. Mentally Walk Through The Plan. From the front door go to the kitchen, living room or great room and then to the bedrooms. Imagine opening all the doors on the plan. Is there a graceful easy, and efficient flow between rooms and spaces? Craftsman house plan 461-31 below is a good example -- the circulation has no dead-end spaces.

Furniture on the plan helps give scale to each space. Amenities are important but if the traffic flow is awkward the house will not live comfortably. Think about how the kitchen connects to the dining room or family room, where most people live.
3. Gauge The Garage Entry. Follow the path from garage to kitchen. Often you’ll pass a utility area, mud

room, or laundry, as here in Plan 449-8. This is the way most people enter a house; circulation should be clear and easy without tight corners so coming in with groceries or other items is as convenient as possible.
4. Note Room Dimensions. These are usually included in the floor plan but on Houseplans.com sometimes the measurements are listed on the Plan Detail Page under the tab “More Plan Information.” Compare the listed dimensions to your own experience of comfortable room sizes. Do this by measuring the width, length, and height of one or two of the rooms you’re living in now, or of rooms you like. Note: according to International Code Council R304 “Habitable rooms shall not be less than 7 feet in any horizontal dimension.” This is very small for a room — or large for a cage…After having participated in the design of many idea houses for Sunset magazine I think a 10-by-12-foot bedroom is too small. But you may disagree.
5. Smoke Out The Fireplace. Is there room for furniture around it? I like the way the great room fireplace in modern prairie style plan 48-255 is part of a wall with built-in storage for media and books.

A fireplace too close to a doorway is not very useful.
6. Search for Storage. Are the closets adequate and where they need to be? Ideally, storage areas should suit the type of object being stored: coats and boots in a mudroom; large shelves for CostCo supplies, etc.,

etc. In Plan 64-111 you’ll find a closet under the foyer stair, an ample pantry in the kitchen, and a storage area in the utility/laundry room.
7. Study The Stairway(s). Is there full height over it — creating an open feel — or does it just disappear into

the ceiling, which makes a room feel small and cramped. The stair in Plan 454-14 rises in what is, in effect, a large light well, brightening surrounding spaces.
8. Watch Window Placement. Windows on two sides of a room balance daylight and create a spacious feeling; windows on just one side of a room create a cave-like feeling and promote glare. Windows set high in a wall can provide daylight while preserving privacy; however a room with these high windows, often called clerestories, will feel tight and boxy if it does not also have lower windows on another wall for views.

A window wall that wraps around the end of a room, as in Plan 124-691, can be an especially dramatic way to celebrate a view -- as long as there is an overhang to protect from too much direct sunlight.
9. Patrol The Porch. Is it wide enough to really use? You need at least a six foot depth for sitting and 8 feet is preferable. For outdoor dining you need even more. Rustic farmhouse plan 17-2017 includes a useful front veranda and a “Grilling Porch” at the rear off the kitchen.

A well designed porch helps a house expand in good weather.
10. Connect House And Lot. This is extremely important. Think about your site and how the plan should be oriented on it to make the best use of outdoor space and sunshine/shade, which is what

contemporary Plan 552-2 does extremely well. It shows how the house wraps around the yard containing large deck and pool. You can see how the main living space and master suite connect to this outdoor space.
At Houseplans.com we believe every stock plan should be customized to fit you and your lot. For example, it’s easy to add doors for access to a yard – and windows for a visual connection to the site — these are the simplest ways to make a small house live large.