By Devin Uriarte
Looking for a home plan with enough room for your large family? Or maybe you just want a lot of space for working from home and hosting during the holidays. Boasting farmhouse charm, these six-bedroom plans offer elegant curb appeal with the farmhouse design details that are so popular and timeless.
Browse the farmhouse collection here.
Open-Concept Farmhouse
Open-Concept Farmhouse - Front Exterior
Open-Concept Farmhouse - Main Floor
Open-Concept Farmhouse - Upper Floor Plan
At first glance, you may not believe this is a farmhouse since it’s so modern. But this plan features exterior details like gables and board-and-batten siding. Inside there is a massive great room that flows into the kitchen that’s great for hosting. On the main floor there is a cozy bedroom very conveniently located next to the front entryway.
Upstairs there’s an impressive primary suite with a walk-in closet and luxurious bathroom. Four additional guest bedrooms are on the second floor, plenty of room to host friends and family.
Cozy Farmhouse
Cozy Farmhouse - Front Exterior
Cozy Farmhouse - Lower Level Plan
Although this farmhouse has lots of bedrooms (five plus an office), it remains cozy and charming. The front porch welcomes guests into the foyer with a thoughtful mudroom. The primary suite features a walk-in closet and is across the hall from a full bathroom.
The kitchen flows seamlessly into the living room and dining nook. A charming detail in the great room is the built-in bench by the window. Upstairs there are four guest bedrooms with a private living room to not disturb those downstairs.
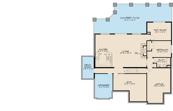
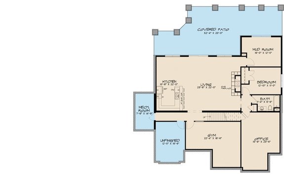
Farmhouse for Hillside
Farmhouse for Hillside - Front Exterior
Farmhouse for Hillside - Main Floor
Farmhouse for Hillside - Upper Floor Plan
Farmhouse for Hillside - Lower Floor Plan
This is an impressive six-bedroom farmhouse that would work well for a hillside property. The elegant vaulted entryway features a truss that adds to the farmhouse design. Through the foyer there’s a formal dining room for special occasions. Guests will be impressed with the indoor-outdoor flow from the large kitchen to the outdoor deck, as well as the special ceiling details.
On the main floor there’s a spacious guest bedroom and the luxurious primary suite. A jaw-dropping walk-in closet sits in the suite through the five-piece bathroom. Upstairs there are three guest bedrooms, each with its own walk-in closet for guests to enjoy. Downstairs is the sixth bedroom along with a gym, at-home office, and entertainment room.
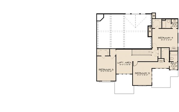
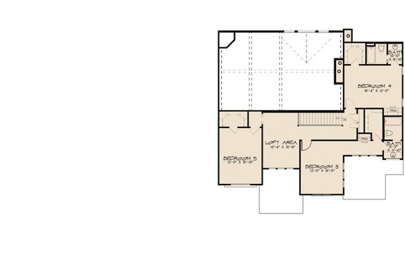
Farmhouse with Curb Appeal
Farmhouse with Curb Appeal - Front Exterior
Farmhouse with Curb Appeal - Main Floor
Farmhouse with Curb Appeal - Upper Floor
This classic farmhouse has major curb appeal. Since the three-car garage is at the rear of the house plan, all the focus can be on the front exterior and the charming wraparound porch. The layout of this farmhouse plan gives owners privacy and even a private entrance. On the main floor there’s a sizeable guest bedroom that connects to the front wraparound porch. Upstairs there are four guest bedrooms and a lovely loft area that looks down to the great room.
