Blog Home > Barndominium Floor Plans with Pictures

The Houseplans Blog

Barndominium Floor Plans with Pictures

Browse the photos of these barndominium house plans.

Hero Image

April 4, 2023

Livabl Brand

Can't find what you're looking for?

Give us a call below or reach out and we’ll make sure to be in contact!

Send Us a Message

By Devin Uriarte

When searching for your dream home, it is always helpful to see what your plan will look like once fully built. These barndominium house plans feature open layouts with charming curb appeal and photos to help you visualize. (Please note that photos may reflect modifications, so be sure to check the floor plans carefully.)

Check out more barndominium-style house plans here.

Barndominium Plan with Workshop Barndominium Plan with Workshop Barndominium Plan with Workshop - Front Exterior

Barndominium Plan with Workshop Barndominium Plan with Workshop - Main Floor

Look through the photos of this 1-story barndominium plan with living space. Wouldn't this make a great guest house, or a tiny home? The garage features tons of space that you could use for a workshop. Take a look at the open kitchen.

Barndominium Floor Plan with Impressive Windows Barndominium Floor Plan with Impressive Windows Barndominium Floor Plan with Impressive Windows - Front Exterior

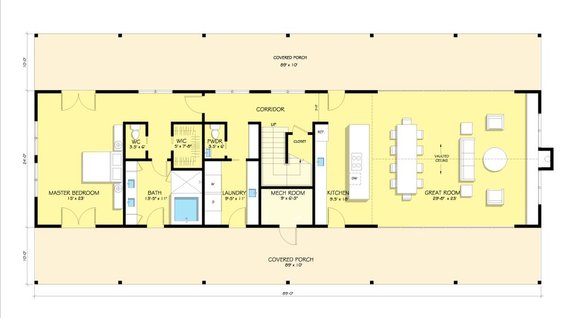
Barndominium Floor Plan with Impressive Windows Barndominium Floor Plan with Impressive Windows - Main Floor

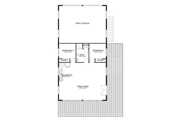
Barndominium Floor Plan with Impressive Windows Barndominium Floor Plan with Impressive Windows - Upper Floor

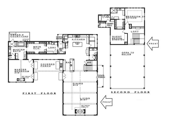
Soak in the beautiful natural light of this open barndominium house plan. Soaring windows bring light into the open concept floor plan to create an ideal space for entertaining. The kitchen looks out to the great room and features a prep island with lots of counter space. Down the corridor is the primary suite along with the walk-in laundry room. Owners can enjoy two sets of French doors out to the covered porches to let in a soothing breeze. In the private bathroom there’s a walk-in closet and a full bathroom.

Upstairs there’s an office space that looks to the great room below. The vaulted ceiling provides a visual connection to the second floor, where the guest bedroom and second primary suite are located. The second primary suite has a full bathroom and dual closets for additional storage.

Barndominium with Huge Garage Barndominium with Huge Garage Barndominium with Huge Garage- Front Exterior

Barndominium with Huge Garage Barndominium with Huge Garage- Main Floor

This barndo-style house plan is a great floor plan option for owners looking for additional storage in the garage. The impressive garage is deep enough to fit a workshop and has doors connecting to the covered porch and the main home. Walking into the home through the front door immediately puts you in the open living space. While preparing meals at the kitchen island, owners can look out to the open living room. Down the hallway is the primary suite with a walk-in closet and easy access to the garage.

Cozy Barndominium Plan Cozy Barndominium Plan Cozy Barndominium Plan - Front Exterior

Cozy Barndominium Plan Cozy Barndominium Plan - Main Floor

Cozy Barndominium Plan Cozy Barndominium Plan - Upper Floor

Don’t be fooled by the barn-like exterior: there is a spacious and cozy apartment plan in this barndominium. Most of the images for this plan are renderings, but they help you to get an idea of what it would be like to live here. The two large garage doors (modified to one in the version shown in the photo) open to the two-car garage where there’s tons of space. Upstairs, there’s an open living space with an L-shaped kitchenette, two bedrooms, and a bathroom with space for laundry.

Rustic Barndominium Style Plan Rustic Barndominium Style Plan Rustic Barndominium Style Plan - Front Exterior

Rustic Barndominium Style Plan Rustic Barndominium Style Plan - Main Floor and Upper Floor

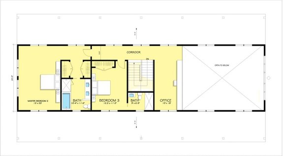
This rustic barndominium house plan has many luxurious features. The large floor-to-ceiling windows in the living room and primary suite along with the see-through fireplaces completely elevate the space. Owners can prepare meals in the luxe kitchen with a large island and a walk-in pantry while entertaining guests in the open concept living room. Serve guests drinks at the upscale bar and open the doors up to the covered porch for indoor-outdoor flow. Down the long hallway is the primary suite with an impressive walk-in closet, access to the laundry room, full bathroom, and private courtyard. Upstairs there’s a cozy loft along with the two guest bedrooms. Both guest bedrooms have walk-in closets and private bathrooms.

Two-Story Barndominium Two-Story Barndominium Two-Story Barndominium - Front Exterior

Two-Story Barndominium Two-Story Barndominium - Main Floor

Two-Story Barndominium Two-Story Barndominium - Upper Floor

The curb appeal of this two-story barndominium plan combines rustic farmhouse charm with modern style. In the vaulted great room, there’s a large window that looks out to the property. The open kitchen has a prep island in the middle and a cozy nook next to the covered patio. Owners can enjoy privacy and enjoy the luxe bathroom and walk-in closet. On the other side of the plan is the first guest bedroom with access to the bathroom. Upstairs, there’s a cozy loft overlooking the great room below, along with a second guest bedroom.

Barndominium Plan with Views Barndominium Plan with Views Barndominium Plan with Views - Front Exterior

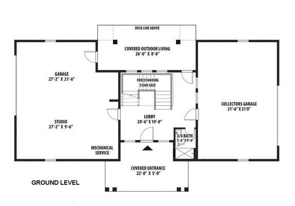
Barndominium Plan with Views Barndominium Plan with Views - Ground Floor

Barndominium Plan with Views Barndominium Plan with Views - Main Floor

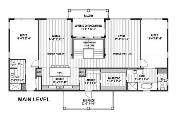
Enjoy the views from this rustic barndominium house plan. On the ground level there are two covered porches where owners can set up outdoor furniture and relax. Two large garages on the ground level can fit a car collection, or make part of one a studio space. Upstairs there’s a luxurious kitchen with a four-top island that opens to the dining room. Next to the dining room is the first suite that features a private bathroom. Down the hallway is the spacious living room and the primary suite. Owners can enjoy the private full bathroom and walk-in closet that is conveniently attached to the laundry room.

Check out more barndominium-style house plans here.

Get Our Newsletter

Be the first to see new plans, special offers, and more.

By signing up for our newsletter, you agree to our Terms & Conditions and Privacy Policy, for an account

Blog Subscribe Icon