Blog Home > Barndominium Floor Plans You’ve Never Seen Before

The Houseplans Blog

Barndominium Floor Plans You’ve Never Seen Before

These unique barndominium floor plans have our attention.

Hero Image

July 14, 2022

Livabl Brand

Can't find what you're looking for?

Give us a call below or reach out and we’ll make sure to be in contact!

Send Us a Message

By Cassie Apperloo

Known for, well… looking like barns, barndominiums have garnered lots of attention over the last few years.

While the term barndominium typically refers to metal structures, we define barndominiums as structures made from any material that fit the barn aesthetic. This expands the category to include wood-framed floor plans with the rustic look of pole barn designs.

Barndominium designers have gotten more creative with their layouts recently. From vast open floor plans with stylish features to cozy cottages, the modern barndominium has proven itself to be one of the most varied and exciting design categories of the year.

With such a wide range of features and specs within this design category, it might be hard to choose what’s right for you. Thankfully, we’re more than willing to let you in on which barndominium floor plans we already love.

Ready to discover the wonderful world of barndominium floor plans? Check out the full collection here.

Modest Barndominium Floor Plan Modest Barndominium Floor Plan Modest Barndominium Floor Plan - Front Exterior

Modest Barndominium Floor Plan Modest Barndominium Floor Plan - Main Floor Plan

Modest Barndominium Floor Plan Modest Barndominium Floor Plan - Upper Floor Plan

Love the look of a simple barndominium but want to save on space? This narrow two-story, three-level design can squeeze into just about any urban lot imaginable.

What’s unique about this barndominium floor plan is the high degree of separation between living and sleeping areas. With the living room located on the main floor and bedrooms located on the upper and foundation levels, this design is easily adaptable to fit many different lifestyles.

Contemporary Barndominium Floor Plan Contemporary Barndominium Floor Plan Contemporary Barndominium Floor Plan - Front Exterior

Contemporary Barndominium Floor Plan Contemporary Barndominium Floor Plan - Main Floor Plan

This rustic barndominium floor plan looks like it was taken straight out of a Western movie. The sloped extended roof and open layout is perfect for keeping cool in hot summer weather, making it an ideal weekend getaway home. The simplicity of the exterior may seem unassuming, but the inside is sure to impress.

Teeny-tiny cottage bedrooms, begone! This design boasts a generous primary bedroom suite, and the open living-dining area leaves plenty of room for lounging without feeling cramped. Great for anyone looking for more connectivity with nature, this barndominium floor plan boasts a wealth of gorgeous windows and sets of sliding doors to let the outside in.

Look carefully at this floor plan to find our favorite feature. A thoughtfully-placed daybed right off the kitchen provides the perfect space for lounging off a weekend food coma.

Barndominium Floor Plan with Covered Porch Barndominium Floor Plan with Covered Porch Barndominium Floor Plan with Covered Porch - Front Exterior

Barndominium Floor Plan with Covered Porch Barndominium Floor Plan with Covered Porch - Main Floor Plan

Barndominium Floor Plan with Covered Porch Barndominium Floor Plan with Covered Porch - Upper Floor Plan

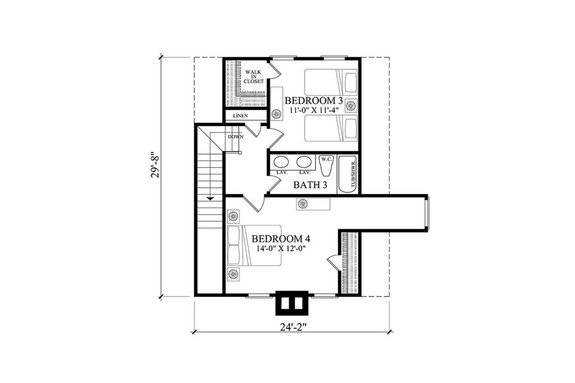
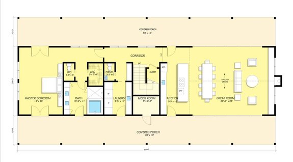
Meet a barndominium floor plan that knows how to make use of a large lot. Clocking in at 3,277 sq. ft., this five-bedroom, three-and-a-half-bathroom design is perfect for anyone who loves the look of barndominiums but wants to add a bit of luxury. Thoughtful features include a mudroom and an ensuite bathroom with two walk-in closets off the primary bedroom.

The spacious great room provides ample space for entertaining, lounging, and dining. Four extra adjacent bedrooms with a separate living room in the center provide extra space and privacy for guests or older children.

While counter space certainly won’t be an issue in the kitchen, you may find yourself too busy enjoying the view from that gorgeous bow window to actually cook dinner (but that's what delivery is for).

Tiny Barndominium Floor Plan Tiny Barndominium Floor Plan Tiny Barndominium Floor Plan - Front Exterior

Tiny Barndominium Floor Plan Tiny Barndominium Floor Plan - Main Floor Plan

This tiny barn-style floor plan makes a fantastic multi-purpose backyard addition. Use it as a pool house, a guest house or a bunkie for outdoor activities. The possibilities with this one are truly endless.

What’s a bunkie? Read more from House Beautiful here.

Charming and practical, this floor plan packs a lot of functionality into a mere 388 sq. ft. Boasting a generous bedroom, kitchenette space and two bathrooms with walk-in showers, this design provides all the amenities necessary for a comfortable stay.

Barndominium Floor Plan with Workshop Barndominium Floor Plan with Workshop Barndominium Floor Plan with Workshop - Front Exterior

Barndominium Floor Plan with Workshop Barndominium Floor Plan with Workshop - Main Floor Plan

Here’s a barndominium floor plan that has everything. No, really.

Perfect for any car enthusiast, this design boasts two garages, an RV bay, and a workshop. Family members won’t need to worry about hearing much noise from the workshop area, as the bedrooms, great room, and living room are located on the opposite end of the house. Feel free to get as messy as you want - washing up after a long day of work won’t be an issue thanks to the mud room with an attached laundry room.

Need to get a breath of fresh air? No problem. This floor plan includes two covered outdoor areas – one in the front, and another in the back. That gorgeous back patio leads to an all-season lanai, so you can enjoy the outdoors in any weather.

Barndominium Floor Plan with Loft Barndominium Floor Plan with Loft Barndominium Floor Plan with Loft - Front Exterior

Barndominium Floor Plan with Loft Barndominium Floor Plan with Loft - Main Floor Plan

Barndominium Floor Plan with Loft Barndominium Floor Plan with Loft - Upper Floor Plan

Here’s a more modern twist on the classic barndominium exterior.

This design doesn’t shy away from natural light. With large barn doors opening up from the great room and vaulted ceilings throughout the common areas, this home optimizes open space to look and feel much larger than it is.

The primary suite features a spacious walk-in closet and en-suite bathroom with a generous L-shaped shower. Go ahead, have a morning dance party in your shower. We won’t tell anyone.

Barndominium Floor Plan with Garage Apartment Barndominium Floor Plan with Garage Apartment Barndominium Floor Plan with Garage Apartment- Front Exterior

Barndominium Floor Plan with Garage Apartment Barndominium Floor Plan with Garage Apartment - Main Floor Plan

Barndominium Floor Plan with Garage Apartment Barndominium Floor Plan with Garage Apartment - Upper Floor Plan

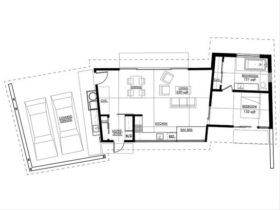
Perfect for crafters and makers, this two-story barndominium floor plan is a great example of how you can optimize 562 sq. ft.

This design would make a fantastic first home for someone who’s used to apartment living - whether that’s you or a family member - but wants extra space for creativity and work. The main level provides the perfect open area to use as a garage, studio or a workshop. Just upstairs lies the living space, complete with a kitchen, bedroom, banquette, and bathroom. Ample storage space throughout provides plenty of spots to put your stuff, so you can leave the days of one-closet apartments in the past.

Duplex Barndominium Floor Plan Duplex Barndominium Floor Plan Duplex Barndominium Floor Plan - Front Exterior

Duplex Barndominium Floor Plan Duplex Barndominium Floor Plan - Main Floor Plan

This barndominium floor plan features one of the most unique layouts we’ve seen so far. This one-story design separates two distinct living spaces by putting a garage in the center of the home.

This home has a kitchen, a bathroom, and sleeping and living spaces on either side of the home, perfect for multigenerational living situations or for giving houseguests a little extra privacy. But don’t worry – you won’t lose touch with your loved ones thanks to a gorgeous covered porch that connects the two living spaces.

Barndominium Floor Plan with Courtyard Barndominium Floor Plan with Courtyard Barndominium Floor Plan with Courtyard - Front Exterior

Barndominium Floor Plan with Courtyard Barndominium Floor Plan with Courtyard - Main and Upper Floor Plans

This luxurious barndominium floor plan is the stuff dreams are made of. Soaring vaulted ceilings, floor-to-ceiling windows, an owner’s courtyard, and two see-through fireplaces make this home one of the most luxurious on our list.

One of the most unique features in this design is the bar area. If you’re the type of person who prefers a more casual dining experience, this thoughtfully-placed bar is the perfect spot to entertain guests.

If your guests decide to stick around for the night, no sweat. Just upstairs in the loft are two extra bedroom suites. This multi-purpose area could easily double as a home office or private area for family members who need their own space.

Breezy Barndominium Floor Plan Breezy Barndominium Floor Plan Breezy Barndominium Floor Plan - Front Exterior

Breezy Barndominium Floor Plan Breezy Barndominium Floor Plan - Main Floor Plan

Breezy Barndominium Floor Plan Breezy Barndominium Floor Plan - Upper Floor Plan

The homes on this list wouldn’t be called barndominiums if they didn’t look at least a little like barns. However, this one-bedroom floor plan takes the cake for staying true to the barn aesthetic.

While this design may look like your average barn, this floor plan offers a unique connectivity with nature. Large barn doors on either side of the home open up the entire living space to the outdoors. Refreshing summer breezes are guaranteed to reach every corner of the house thanks to this thoughtful feature. On cooler nights, make use of the balcony just off the upper loft.

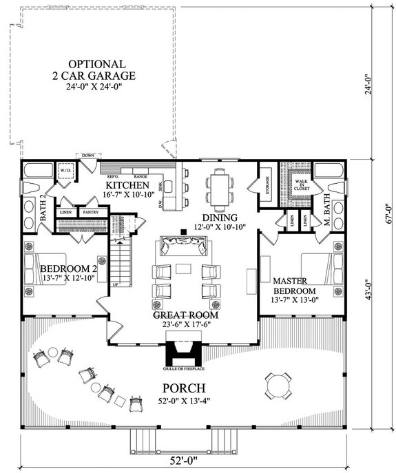
Barndominium Floor Plan with Outdoor Space Barndominium Floor Plan with Outdoor Space Barndominium Floor Plan with Outdoor Space - Front Exterior

Barndominium Floor Plan with Outdoor Space Barndominium Floor Plan with Outdoor Space - Main Floor Plan

Barndominium Floor Plan with Outdoor Space Barndominium Floor Plan with Outdoor Space - Upper Floor Plan

This unique design brings classic covered porches to a whole new level. This stylish outdoor space serves as an extension of the great room with a fireplace in the center for keeping warm on cooler nights.

With the primary and guest suites on either side of this floor plan, this design was made for bringing people together at the heart of the home.

Guests and family members who need a little extra privacy can enjoy two separate bedrooms on the upper level, one of which features a cozy extended nook that would make the perfect spot for a window seat or small reading corner.

Barndominium Floor Plan with Open Layout Barndominium Floor Plan with Open Layout Barndominium Floor Plan with Open Layout - Front Exterior

Barndominium Floor Plan with Open Layout Barndominium Floor Plan with Open Layout - Main Floor Plan

Barndominium Floor Plan with Open Layout Barndominium Floor Plan with Open Layout - Upper Floor Plan

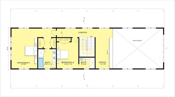
Last but not least, this two-story barndominium floor plan boasts a modern design that keeps things sleek, clean, and simple.

The soaring ceilings in the great room and massive covered porches on either side are definitely the eye-catching features of this floor plan. But look a little closer and you’ll discover how thoughtfully-placed every element of this home truly is.

Thanks to the office space that overlooks the open great room, you’ll never miss a “dinner’s ready!” call from below. Doors from every main-floor room create easy access to those long porches, giving you the flexibility to catch a breath of fresh air on your way to the kitchen or laundry room.

Browse more barndominium floor plans here.

Get Our Newsletter

Be the first to see new plans, special offers, and more.

By signing up for our newsletter, you agree to our Terms & Conditions and Privacy Policy, for an account

Blog Subscribe Icon