Blog Home > Barndominium House Plans with Shops

The Houseplans Blog

Barndominium House Plans with Shops

Check out these barndominium plans with shops.

Hero Image

August 31, 2023

Livabl Brand

Can't find what you're looking for?

Give us a call below or reach out and we’ll make sure to be in contact!

Send Us a Message

By Devin Uriarte

One of the great features presented in many of our barndominium house plans are the large, attached garages. These barndominium plans may be attractive to owners that are “do-it-yourselfers” or simply just want more storage space. Inside the attached garages are shops where owners can have a dedicated place to work on projects. Take a look at some of our favorite plans with shops in the barndominium collection. And if you really love a workshop, check out our Shouse (that is, Shop-house) plan collection.

Browse more barndominium style house plans here.

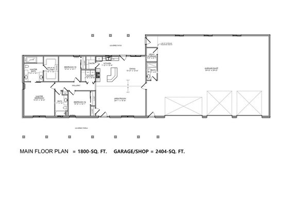
Traditional Barndominium with Shop Traditional Barndominium with Shop Traditional Barndominium with Shop - Front Exterior

Traditional Barndominium with Shop Traditional Barndominium with Shop - Main Floor

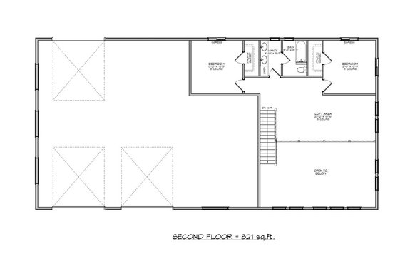
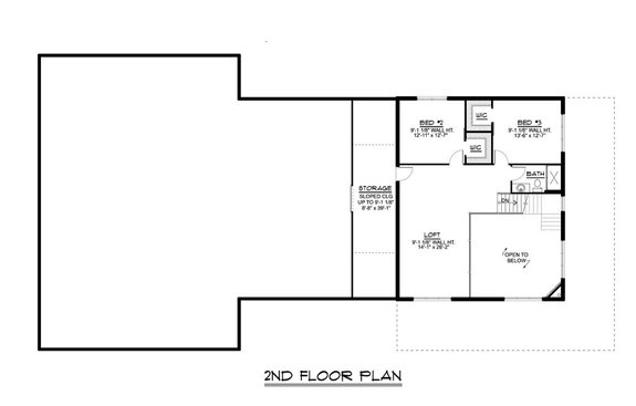
Traditional Barndominium with Shop Traditional Barndominium with Shop - Second Floor

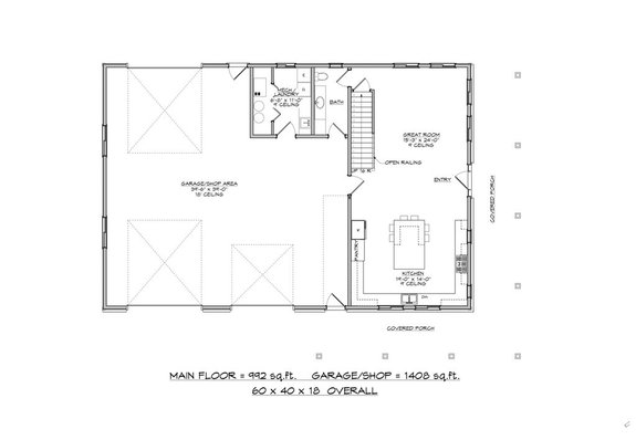
Here is a classic barndominium plan with charming siding and a lovely wraparound porch. The curb appeal of this home really embodies farmhouse charm. There is a drive-through garage with a high ceiling, allowing owners to store a large recreational vehicle. Owners can take full advantage of the spacious two-car garage with additional space for a workshop. The impressive kitchen island is surrounded by counter space and looks out to the open living room, making it an ideal location to entertain.

Barndominium with Wraparound Porch and Shop Barndominium with Wraparound Porch and Shop Barndominium with Wraparound Porch and Shop - Front Exterior

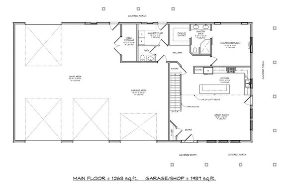
Barndominium with Wraparound Porch and Shop Barndominium with Wraparound Porch and Shop - Main Floor

This attractive barndominium house plan has unique curb appeal that blends modern design with farmhouse charm. The attached two-car garage has easy entry into the main home and features a workshop. Inside this single-story barndominium is an open living space that feels relaxed and spacious. Unwind after a long day on the wrapround front porch with a crisp glass of wine and soak in the views.

Charming Barndominium with Workshop Charming Barndominium with Workshop Charming Barndominium with Workshop - Front Exterior

Charming Barndominium with Workshop Charming Barndominium with Workshop - Main Floor

The curb appeal of this house plan boasts quintessential barndominium style. Attractive garage doors open to the three-car garage with room for a convenient workshop. To avoid mess and clutter, a mudroom connects the garage to the main home. Inside, there is a seamless flow from the kitchen to the living room and there’s a set of French doors that open to the rear porch, which creates great indoor-outdoor flow.

Small Barndominium with Shop Small Barndominium with Shop Small Barndominium with Shop - Front Exterior

Small Barndominium with Shop Small Barndominium with Shop - Main Floor

Small Barndominium with Shop Small Barndominium with Shop - Second Floor

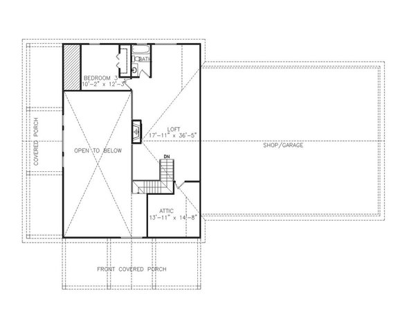
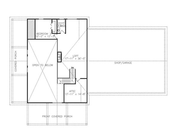
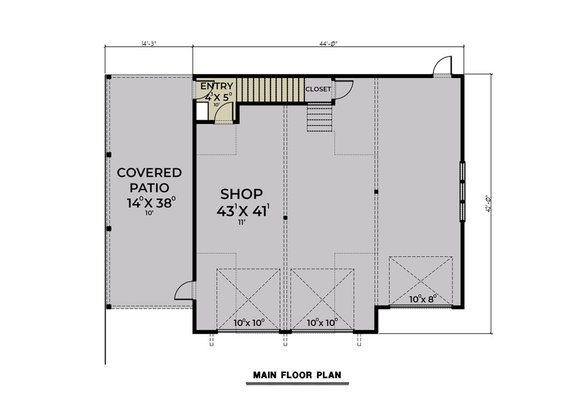
Even in this small barndominium house plan, owners can enjoy having a three-car garage with space for a workshop. To maximize the space of this 959 sq. ft. barndominium, the cozy living space sits on the second floor. Before heading upstairs, there’s a covered porch that adds to the overall farmhouse style. The space itself has an open layout with natural lighting and great amenities such as a kitchen island.

Barndominium with Shop and Three-Car Garage Barndominium with Shop and Three-Car Garage Barndominium with Shop and Three-Car Garage - Front Exterior

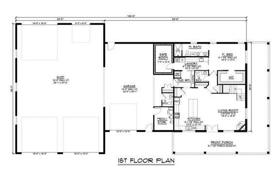
Barndominium with Shop and Three-Car Garage Barndominium with Shop and Three-Car Garage - Main Floor

Barndominium with Shop and Three-Car Garage Barndominium with Shop and Three-Car Garage - Second Floor

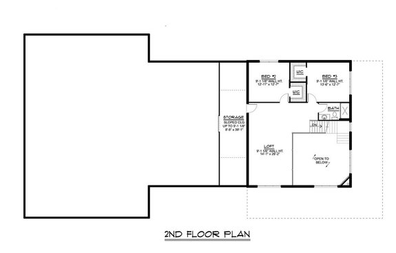
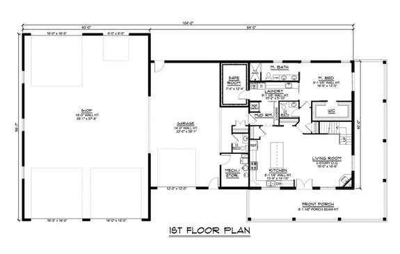
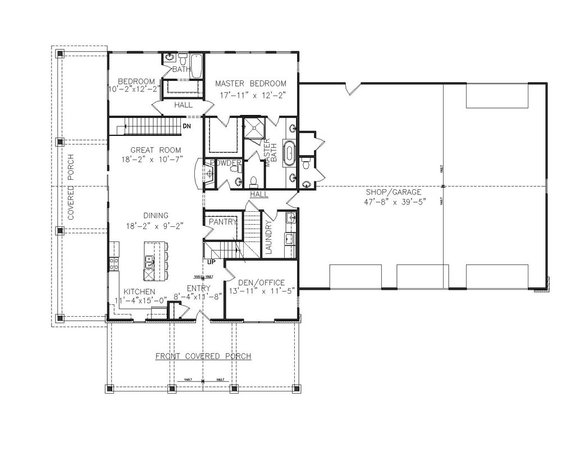
Check out another classic barndominium plan designed for traditional framing. The eighteen-foot ceiling in the garage is ideal for storing an RV. On the first floor, there is an open living space that is great for hosting and entertaining. A large island in the kitchen separates the two spaces while simultaneously bringing them together. The luxe primary suite sits on the main floor along with the walk-in laundry room. Upstairs there are two guest bedrooms and a cozy loft area.

Country Style Barndominium Country Style Barndominium Country Style Barndominium - Front Exterior

Country Style Barndominium Country Style Barndominium - Main Floor

Country style Barndominium Country Style Barndominium - Second Floor

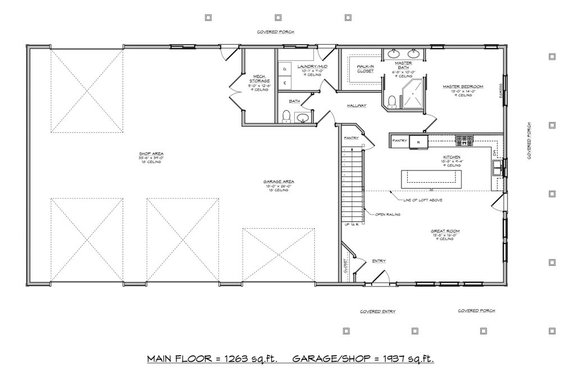
All eyes will be on this country style barndominium plan; the garage space alone is enough to make the neighbors' heads turn. This barndominium features a four-car garage with front and rear access. There’s also space for a workshop and a convenient half bathroom. Entering the main home there is a mudroom with built-in lockers and a dog wash. A unique feature of this barndominium is the safe room.

Barndominium House Plan with Spacious Shop Barndominium House Plan with Spacious Shop Barndominium House Plan with Spacious Shop - Front Exterior

Barndominium House Plan with Spacious Shop Barndominium House Plan with Spacious Shop - Main Floor

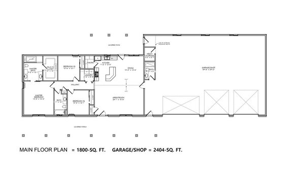
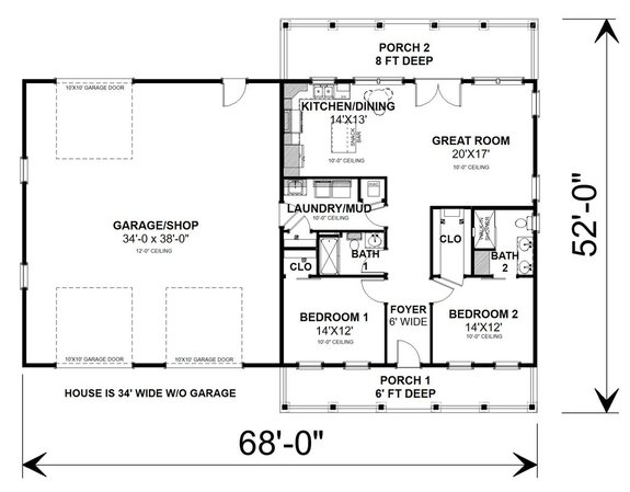
This barndominium house plan is a great option for those wanting a single-story home design. The four-car garage gives you tons of storage and parking space. There’s even a convenient bathroom in the garage. Inside the home there’s an open living space with a vaulted ceiling. There’s an angled kitchen island for meal prep with a built-in bar top. The open floor plan is great for entertaining and opens to the front and rear covered porches.

Craftsman Style Barndominium Plan Craftsman Style Barndominium Plan Craftsman Style Barndominium Plan - Front Exterior

Craftsman Style Barndominium Plan Craftsman Style Barndominium Plan - Main Floor

Craftsman Style Barndominium Plan Craftsman Style Barndominium Plan - Second Floor

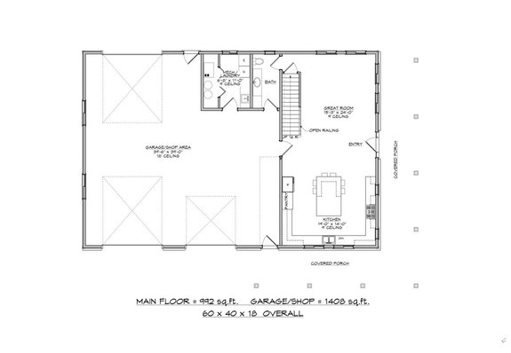
The curb appeal of this barndominium is unique compared to the very traditional barndo style. The entryway especially shows off its Craftsman style and charm. A fireplace in the living room adds to the cozy vibe. A great feature of this barndominium is the three-car, drive-through garage. Check out the covered porches.

Browse more barndominium style house plans here.

Get Our Newsletter

Be the first to see new plans, special offers, and more.

By signing up for our newsletter, you agree to our Terms & Conditions and Privacy Policy, for an account

Blog Subscribe Icon