Blog Home > Farmhouse Style House Plans with Carports

The Houseplans Blog

Farmhouse Style House Plans with Carports

These farmhouse style plans feature convenient carports.

Hero Image

June 29, 2023

Livabl Brand

Can't find what you're looking for?

Give us a call below or reach out and we’ll make sure to be in contact!

Send Us a Message

By Devin Uriarte

House plans with carports give you a budget-friendly way of adding parking or storage space without the full expense of a garage. Carports are extremely versatile and are a great alternative to constructing a full garage, which could alter your home’s curb appeal. Here, we've compiled some of our favorite house plans with farmhouse style.

Check out more house plans with carports.

Cozy Cottage with Carport Cozy Cottage with Carport Cozy Cottage with Carport - Front Exterior

Cozy Cottage with Carport Cozy Cottage with Carport - Main Floor

Cozy Cottage with Carport Cozy Cottage with Carport - Upper Floor

The front porch of this house plan adds a level of charm and coziness to the overall curb appeal. A carport is conveniently attached to the wraparound front porch. There’s a double set of French doors that open to the living room and add indoor/outdoor flow. A sizeable kitchen island overlooks the living room, with a walk-in pantry nearby for additional storage. The fireplace in the living room creates a cozy vibe throughout the main living space. Upstairs there are two guest bedrooms and a bonus room that can be utilized as a private office. The primary suite sits on the main level and features an impressive bathroom and walk-in closet.

Barndominium Plan with Detached Carport Barndominium Plan with Detached Carport Barndominium Plan with Detached Carport - Front Exterior

Barndominium Plan with Detached Carport Barndominium Plan with Detached Carport - Main Floor

This barndominium house plan has a simple open floor plan along with a detached carport. The carport is in a spot that doesn’t obscure the view from the wraparound porch. Inside, there is an impressive open concept living space with a large kitchen and walk-in pantry. Down the hall is where you can find the two guest bedrooms and primary suite. The simple layout makes this house plan ideal for first time builders or buyers.

Ranch Style Plan with Carport Ranch Style Plan with Carport Ranch Style Plan with Carport - Front Exterior

Ranch Style Plan with Carport Ranch Style Plan with Carport - Main Floor

Here is a ranch style home with a laid-back floor plan. The front porch is incredibly charming and welcomes guests into the open living room. There’s an attached carport on the side of the home that leads into the convenient mudroom. A charming feature of this ranch plan is all the pocket doors that allow for openness or privacy as you wish.

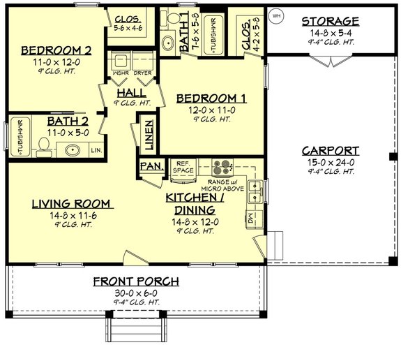
Tiny House Plan with Carport Tiny House Plan with Carport Tiny House Plan with Carport - Front Exterior

Tiny House Plan with Carport Tiny House Plan with Carport - Main Floor

This 900 sq. ft. house plan has a simple layout and classic curb appeal. Attached to this tiny house plan is a convenient carport with a storage closet. Inside, the kitchen flows seamlessly into the living room which helps the space feel more open. Both bedrooms feature walk-in closets that add a level of luxury to the small home.

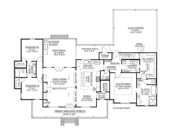
Barndominium Style House Plan Barndominium Style House Plan Barndominium Style House Plan - Front Exterior

Barndominium Style House Plan Barndominium Style House Plan - Main Floor

Barndominium Style House Plan Barndominium Style House Plan - Upper Floor

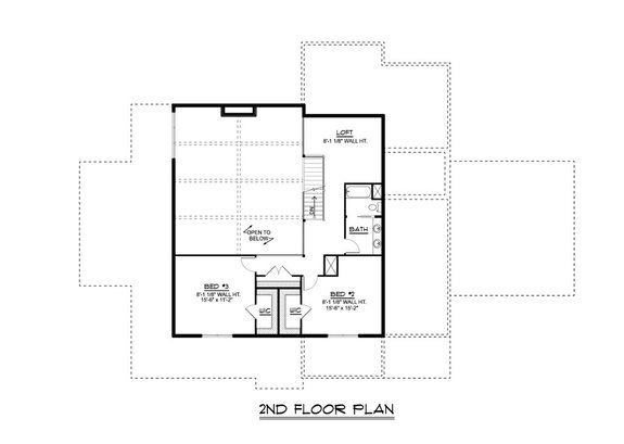
The wraparound porch of this barndominum style house plan is very impressive and creates an ideal spot for hosting friends and family. French doors connect the porch to the open living space, creating indoor-outdoor flow that’s perfect for summer entertaining. On the opposite side of the house plan is the large, covered carport with a second porch and patio. The kitchen features an island for additional prep space and a walk-in pantry for additional storage. A unique feature of this barndominium must be the safe room. The primary suite sits on the main floor along with a flex room and sewing room. Upstairs there are two guest bedrooms and a cozy loft space.

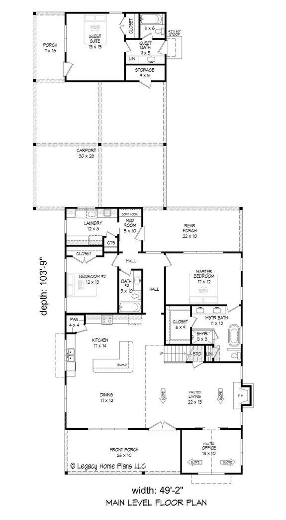
Farmhouse with Carport and Guest Suite Farmhouse with Carport and Guest Suite Farmhouse with Carport and Guest Suite - Front Exterior

Farmhouse with Carport and Guest Suite Farmhouse with Carport and Guest Suite - Main Floor Plan

Farmhouse with Carport and Guest Suite Farmhouse with Carport and Guest Suite - Upper Floor Plan

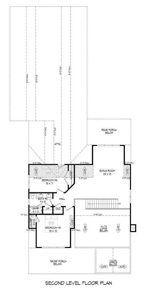
This traditional farmhouse plan is a great home for those looking to expand and have more space for family and friends. Next to the attached carport is a private guest suite with its own front porch. Heading into the home from the carport there is a mudroom and laundry room with lots of built-in storage. There is a guest bedroom on the main floor along with the primary suite and a private office. The bonus room on the second floor can be enjoyed by guests without disturbing those on the main floor. Two sizeable guest bedrooms are also on the second floor.

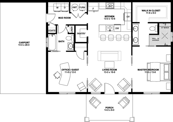
Simple Plan with Rear Carport Simple Plan with Rear Carport Simple Plan with Rear Carport - Front Exterior

Simple Plan with Rear Carport Simple Plan with Rear Carport - Main Floor Plan

The layout of this cozy cottage is simple yet spacious. A quaint covered porch welcomes guests into the open living room, which leads into the eat-in kitchen. There is a fireplace in the living room that adds to the overall cozy vibe and creates ambiance during the colder months. The second covered porch is just outside of the kitchen to create indoor-outdoor flow. The closeness of the two-car carport makes bringing in groceries a breeze.

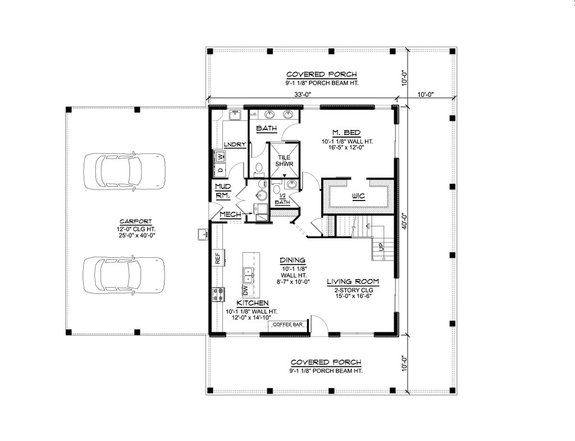
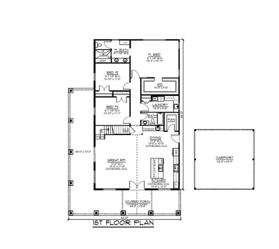
Farmhouse with Rear Carport Farmhouse with Rear Carport Farmhouse with Rear Carport - Front Exterior

Farmhouse with Rear Carport Farmhouse with Rear Carport - Main Floor Plan

This modern farmhouse boasts attractive curb appeal. Having the two-car carport located in the rear of this plan allows the front façade to shine. A wraparound porch adds to the farmhouse design and double doors open to the spacious living space. The vaulted great room flows into the kitchen, where owners can prepare meals at the prep island while hosting guests seated at the bar top. There’s a set of French doors that lead out to the rear porch and create stunning indoor-outdoor flow, perfect for summer entertaining.

Owners will enjoy relaxing in the luxurious primary suite with its massive walk-in closet and full bathroom. There are two guest bedrooms located on the opposite side of the house plan, each with a walk-in closet.

Barndominium with Two-Car Carport Barndominium with Two-Car Carport Barndominium with Two-Car Carport - Front Exterior

Barndominium with Two-Car Carport Barndominium with Two-Car Carport - Main Floor Plan

Barndominium with Two-Car Carport Barndominium with Two-Car Carport - Upper Floor Plan

Check out this simple barndominium house plan with a wraparound porch and a two-car carport. The open layout of this barndominium makes this a great plan to host friends and family. A spacious kitchen flows into the dining and living room and even features a charming coffee bar. The primary suite sits on the main floor and features an impressive walk-in closet. More bedrooms reside upstairs including two guest bedrooms and a private office. There’s also a cozy loft upstairs with views of the plan below.

Check out more house plans with carports.

Get Our Newsletter

Be the first to see new plans, special offers, and more.

By signing up for our newsletter, you agree to our Terms & Conditions and Privacy Policy, for an account

Blog Subscribe Icon