Blog Home > Farmhouses with Open-Concept Floor Plans

The Houseplans Blog

Farmhouses with Open-Concept Floor Plans

Check out these farmhouse plans with open-concept floor plans.

Hero Image

February 6, 2023

Livabl Brand

Can't find what you're looking for?

Give us a call below or reach out and we’ll make sure to be in contact!

Send Us a Message

By Devin Uriarte

Modern farmhouse plans celebrate the traditional style of country farmhouses while also tying in modern living with their open-concept floor plans. These spaces are great for hosting friends and family in the open living rooms and kitchens. Our favorite modern farmhouses with open concept floor plans feature great outdoor living spaces as we look ahead to warm summer nights.

Check out more open floor plans here.

Modern Farmhouse Plan Modern Farmhouse Plan Modern Farmhouse Plan - Exterior

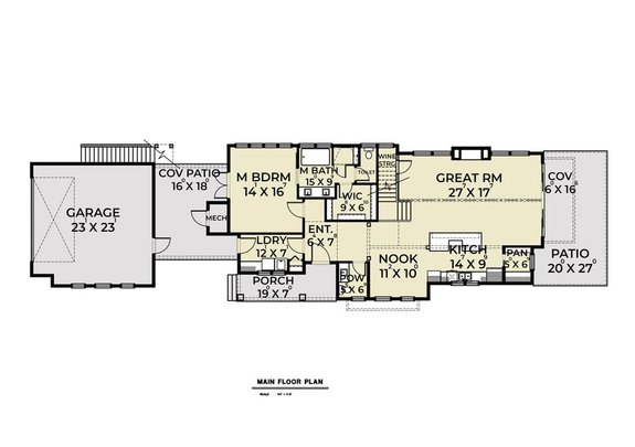
Modern Farmhouse Plan Modern Farmhouse Plan - Main Floor Plan

Step inside this traditional farmhouse plan and soak in all the natural light. A combination of the large windows and open-concept floor plan makes the living spaces feel incredibly airy. The kitchen island looks out to the great room, creating a seamless flow between the two rooms and allows owners to entertain guests while prepping. There’s plenty of storage space in the kitchen, especially with the walk-in pantry. Indoor/outdoor flow is achieved with the impressive sliding glass doors that open wide.

To the left of the foyer, there’s a private office with charming built-ins for those who work from home. Friends and family can feel right at home in one of the three bedrooms, each with its own closet. There’s an additional fourth bedroom that can be utilized as a cozy media room for guests to enjoy and not disturb the rest of the house. Unwind in the primary suite, which features a spacious bathroom and walk-in closet. The laundry room is conveniently located next to the suite and near the entryway from the three-car garage.

Farmhouse Plan with Spacious Loft Farmhouse Plan with Spacious Loft Farmhouse Plan with Spacious Loft - Exterior

Farmhouse Plan with Spacious Loft Farmhouse Plan with Spacious Loft - Main Floor Plan

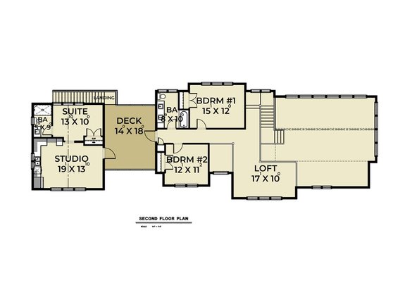
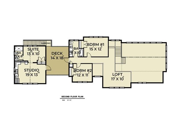
Farmhouse Plan with Spacious Loft Farmhouse Plan with Spacious Loft - Upper Floor Plan

This charming two-story farmhouse presents classic curb appeal with a modern open-concept floor plan indoors. A gas fireplace in the living room adds a cozy vibe to the open floor plan and the island transitions nicely into the kitchen. There’s a private office to the left of the foyer that features a walk-in closet for additional storage.

The long hallway leading to the primary suite adds an elegant touch to the house plan. Relax in the tub in the spacious bathroom and enjoy the big walk-in closet. A door from the bathroom leads to the laundry room and mudroom where you can find an adorable seat with cubbies. There’s a loft upstairs for guests to enjoy, along with three bedrooms with their own walk-in closets.

Modern Farmhouse with Open Floor Plan Modern Farmhouse with Open Floor Plan Modern Farmhouse with Open Floor Plan - Exterior

Modern Farmhouse with Open Floor Plan Modern Farmhouse with Open Floor Plan - Main Floor Plan

Modern Farmhouse with Open Floor Plan Modern Farmhouse with Open Floor Plan - Lower Level Plan

Modern meets farmhouse in this open-concept floor plan. The unique curb appeal boasts modern style while also evoking farmhouse design. This modern farmhouse really celebrates the outdoors with its stunning windows in the living room, bedrooms, and even bathrooms. Immediately as you enter the home through the foyer, there is a large window that overlooks the garden and patio. Sliding glass doors in the living room open to the sunroom that looks out to the patio and allow lots of natural light to stream into the space. The kitchen counter allows you to continue hosting those who are seated in the living room.

The primary suite is on the main level for easy access and features a walk-in closet, a shower, and a double vanity. There’s another bedroom on the main floor that would make a great at-home office. Downstairs, guests can enjoy a second living room in addition to a rec room with a built-in bar. There are two reasonably sized bedrooms, each with its own walk-in closet.

Farmhouse with Curb Appeal Farmhouse with Curb Appeal Farmhouse with Curb Appeal - Exterior

Farmhouse with Curb Appeal Farmhouse with Curb Appeal - Main Floor Plan

The archway on the front stoop adds an elegant touch to the overall curb appeal of this farmhouse. To the right of the foyer, there is a dining room for more formal occasions and to the left, there is a flex room that can be utilized as an at-home office. The archway detail is brought inside in the foyer, which opens to the spacious living area. Natural light streams into the great room. A unique element to this open floor plan is the keeping room next to the kitchen. This space can really be used for anything but would make a functional breakfast nook. Owners can enjoy the island in the kitchen with a built-in eating bar for guests and a full butlers pantry leading into the formal dining room.

Another arched opening leads to the homeowner's wing, where the primary suite and laundry room are located. The primary suite features a full bathroom with a freestanding tub and two walk-in closets. Two guest bedrooms are on the opposite side of the home with their own walk-in closets and bathrooms. Back in the laundry room, you'll appreciate the incredibly functional space with a walk-in closet for additional storage. Down the hall from the laundry room is the three car-garage, which also has an open storage space.

Contemporary Farmhouse with In-Law Suite Contemporary Farmhouse with In-Law Suite Contemporary Farmhouse with In-Law Suite - Exterior

Contemporary Farmhouse with In-Law Suite Contemporary Farmhouse with In-Law Suite - Main Floor Plan

Contemporary Farmhouse with In-Law Suite Contemporary Farmhouse with In-Law Suite - Upper Floor Plan

Contemporary design meets farmhouse charm in this house plan with an open concept living space. The curb appeal is incredibly unique as it brings together that welcoming vibe you get from traditional farmhouses and the clean and sleek contemporary style. Inside, the main floor features an open living space that is ideal for hosting as it creates a seamless flow. The kitchen island looks out to the great room and has a convenient walk-in pantry at arm's distance to make meal prep a breeze. Large sliding glass doors in the great room open to the semi covered patio and also bring in lots of natural light. There’s a cozy breakfast nook past the kitchen where owners and guests can enjoy a casual meal.

French doors in the primary suite add a touch of farmhouse charm to the space. The primary suite sits on the main level and features a walk-in closet and a full bathroom. A walk-in laundry room is adjacent to the suite and can also be accessed from the patio, which then leads to the two-car garage. Upstairs, there are two guest bedrooms and a spacious loft area. A door on the second floor opens to the deck that separates the main house plan from the in-law suite. Above the two-car garage is a cozy studio space that would make a great in-law suite or a more private room for guests.

Check out more open floor plans here.

Get Our Newsletter

Be the first to see new plans, special offers, and more.

By signing up for our newsletter, you agree to our Terms & Conditions and Privacy Policy, for an account

Blog Subscribe Icon