Blog Home > Modern Farmhouse Plans with Basements

The Houseplans Blog

Modern Farmhouse Plans with Basements

Explore these modern farmhouse plans with basements.

Hero Image

February 17, 2023

Livabl Brand

Can't find what you're looking for?

Give us a call below or reach out and we’ll make sure to be in contact!

Send Us a Message

By Devin Uriarte

When searching for your dream house plan, the thought of needing extra storage may come up. A great way to add extra space to your home is by incorporating a basement. Basements provide more space for belongings or create another living area for entertaining. We have chosen some great modern farmhouse plans with optional basements.

Check out more styles of house plans with basements.

Farmhouse with Optional Basement Farmhouse with Optional Basement Farmhouse with Optional Basement - Exterior

Farmhouse with Optional Basement Farmhouse with Optional Basement - Main Floor Plan

Farmhouse with Optional Basement Farmhouse with Optional Basement - Alternate Floor Plan

Enjoy the simple yet striking curb appeal of this modern farmhouse plan. The front porch welcomes guests into the open floor plan with a dedicated dining room to the left of the formal foyer. Prepare meals in the spacious kitchen while entertaining guests. Host guests outside on the rear porch and when weather permits, cook up meals at the outdoor kitchen. Before entering the primary suite, there is a convenient mudroom and laundry room. In the primary suite, a barn door opens to the full bathroom. All three secondary bedrooms sit on the opposite side of the farmhouse plan. For additional space and storage, this house plan has an optional basement.

Country Style Plan with Basement Country Style Plan with Basement Country Style Plan with Basement - Exterior

Country Style Plan with Basement Country Style Plan with Basement - Main Floor Plan

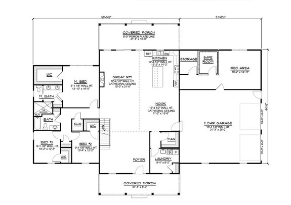
Country Style Plan with Basement Country Style Plan with Basement - Optional Basement Plan

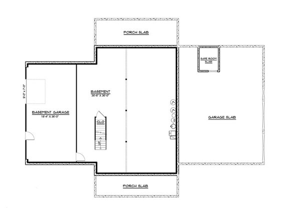
This country style house plan has a welcoming covered front porch that leads into an open concept living space. The L-shaped kitchen has an island that looks out to the living room and breakfast nook. Two guest bedrooms feature walk-in closets and sit across from the primary suite. Check out the big shower in your private bathroom. There is a two-car garage on the opposite side of the home with a door that leads to a rec area, a safe room, and a storage closet. A spacious basement is down the stairs on the lower floor plan.

Modern Farmhouse with Vaulted Ceiling Modern Farmhouse with Vaulted Ceiling Modern Farmhouse with Vaulted Ceiling - Exterior

Modern Farmhouse with Vaulted Ceiling Modern Farmhouse with Vaulted Ceiling - Main Floor Plan

Modern Farmhouse with Vaulted Ceiling Modern Farmhouse with Vaulted Ceiling - Alternate Floor Plan

The vaulted ceiling in this modern farmhouse's main living area showcases an exposed beam that gives the space a rustic vibe. You'll also find a cathedral ceiling in the primary bedroom and a decorative ceiling treatment in the dining room. The kitchen island can seat four guests for casual dining. Past the kitchen there’s a convenient pantry before entering the homeowners’ suite. Enjoy a lovely full bathroom with an impressive walk-in closet. Three guest bedrooms sit on the opposite side of the home for additional privacy.

In nice weather, host friends and family out on the rear porch with a woodburning fireplace and an outdoor kitchen. If additional storage is needed, this house plan has an optional basement space.

Open Concept Farmhouse Plan Open Concept Farmhouse Plan Open Concept Farmhouse Plan - Exterior

Open Concept Farmhouse Plan Open Concept Farmhouse Plan - Main Floor Plan

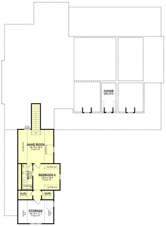
Open Concept Farmhouse Plan Open Concept Farmhouse Plan - Upper Floor Plan

The open concept floor plan of this farmhouse makes it an ideal space for hosting guests. An impressive kitchen island breaks up the space and incorporates a five-person bar top. There’s a convenient walk-in pantry next to the kitchen for easy reach. Large windows in the dining room add to the elevated experience. A vaulted ceiling in the primary suite adds an elegant touch to the space along with a freestanding tub in the bathroom and a walk-in closet. Two guest bedrooms are on the opposite end of the home along with a flex bedroom or office.

Luxe Modern Farmhouse Plan Luxe Modern Farmhouse Plan Luxe Modern Farmhouse Plan - Exterior

Luxe Modern Farmhouse Plan Luxe Modern Farmhouse Plan - Main Floor Plan

Luxe Modern Farmhouse Plan Luxe Modern Farmhouse Plan - Alternate Floor Plan

This attractive modern farmhouse features luxurious details throughout the home plan. An elegant foyer welcomes guests into the open space with a formal dining area to the right. Create a seamless indoor-outdoor flow by opening the French doors in the living room to the back porch. The fireplace in the living room adds a touch of coziness to the open floor plan. In the kitchen, there’s an impressive island with an eating bar and a walk-in pantry for additional storage. For a more casual dining experience, there is a bright breakfast nook which looks out to the backyard.

A long hallway leads to the primary suite where you can enjoy the full bathroom with tons of counter space. Double doors open to the huge walk-in closet with an island in the middle. A laundry room is conveniently attached to the walk-in closet. All three guest bedrooms sit on the opposite side of the home, giving homeowners additional privacy.

Cozy Farmhouse Plan Cozy Farmhouse Plan Cozy Farmhouse Plan - Exterior

Cozy Farmhouse Plan Cozy Farmhouse Plan - Main Floor Plan

Cozy Farmhouse Plan Cozy Farmhouse Plan - Alternate Floor Plan

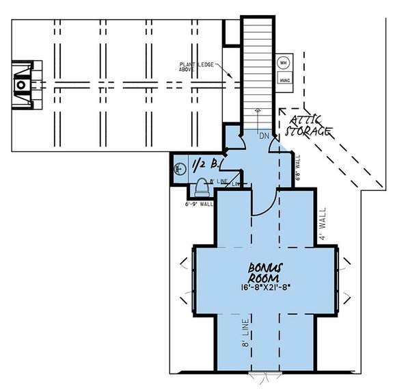
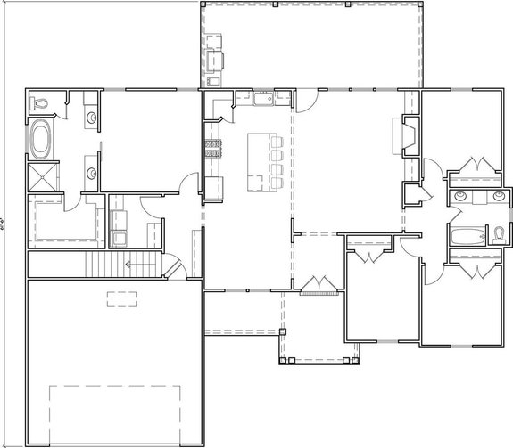
If you’re searching for a cozy modern farmhouse plan, then this home is a great option. The open floor plan feels fresh and modern. The L-shaped kitchen opens to the great room for seamless flow. Tucked away behind the door is the bedroom with an impressive walk-in closet for storage and a bathroom with room for a stacked washer and dryer. This farmhouse plan can be ordered with an optional basement for additional storage. A small hallway with a closet would be placed in front of the door that would lead down to the basement.

Modern Farmhouse Plan with Optional Basement Modern Farmhouse Plan with Optional Basement Modern Farmhouse Plan with Optional Basement - Exterior

Modern Farmhouse Plan with Optional Basement Modern Farmhouse Plan with Optional Basement - Main Floor Plan

Modern Farmhouse Plan with Optional Basement Modern Farmhouse Plan with Optional Basement - Alternate Floor Plan

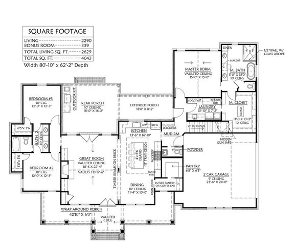
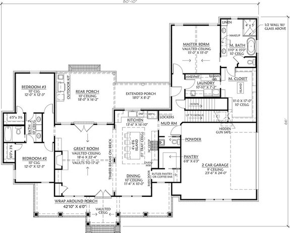
This modern farmhouse plan has a charming wraparound porch that adds to the overall farmhouse curb appeal. The kitchen island creates nice definition between the living and dining rooms. A unique touch to this plan is the barn door that leads to the butler's pantry or coffee bar. To create an indoor/outdoor flow, open the French doors to the back porch where there’s an outdoor kitchen. There’s a mudroom with lockers where the optional staircase can lead to the basement.

Spacious Modern Farmhouse Spacious Modern Farmhouse Spacious Modern Farmhouse - Exterior

Spacious Modern Farmhouse Spacious Modern Farmhouse - Main Floor Plan

Spacious Modern Farmhouse Spacious Modern Farmhouse - Upper Floor Plan

Spacious Modern Farmhouse Spacious Modern Farmhouse - Alternate Floor Plan

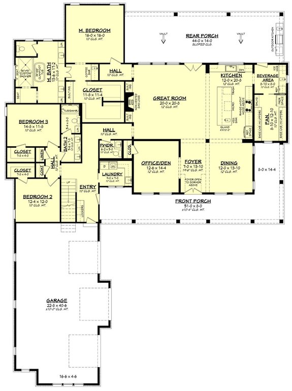
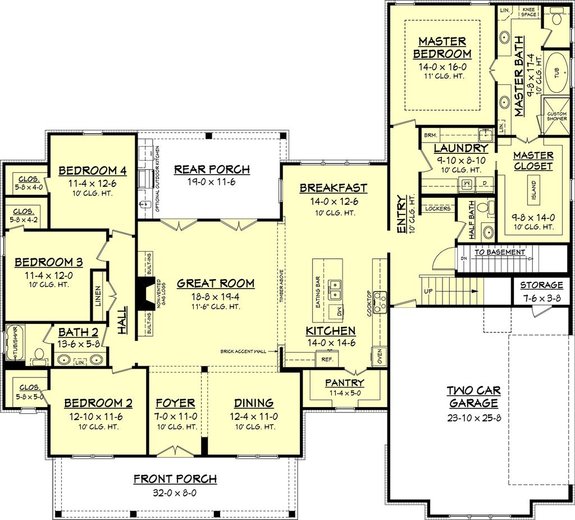
Step inside this luxurious modern farmhouse plan that gives you almost 3,900 sq. ft. of living space. Through the front porch is the elegant foyer with formal dining room to the right and an office to the left. A luxurious feature in this farmhouse is the beverage area tucked between the kitchen and impressive walk-in pantry. Create drinks here and bring them directly out to guests on the back porch. A hallway leads to the primary suite, which features a huge, two-part closet. French doors in the suite open to the full bathroom with double vanities and an incredible shower.

Check out more house plans with basements.

Get Our Newsletter

Be the first to see new plans, special offers, and more.

By signing up for our newsletter, you agree to our Terms & Conditions and Privacy Policy, for an account

Blog Subscribe Icon