Blog Home > New Garage Apartment Plans

The Houseplans Blog

New Garage Apartment Plans

Browse through the newest garage apartment plans.

Hero Image

November 23, 2022

Livabl Brand

Can't find what you're looking for?

Give us a call below or reach out and we’ll make sure to be in contact!

Send Us a Message

By Devin Uriarte

The newest garage apartment plans in our collection feature some great amenities on top of the additional space they provide. There are so many versatile things that you can do with the space above the garage plans. Whether you’re looking for some extra income by renting out the space or are wanting to have a private space for when family and guests come to visit, these plans are all great options. The options are endless with these standout garage apartment plans.

Browse the full collection of garage apartment plans.

Garage with Studio Apartment Garage with Studio Apartment Garage with Studio Apartment - Exterior

Garage with Studio Apartment Garage with Studio Apartment - Main Floor Plan

Garage with Studio Apartment Garage with Studio Apartment - Upper Floor Plan

This simple garage plan is a great option for those looking for an additional living space with more privacy. A two-car garage sits on the main level where there is a workshop area and bench. Heading upstairs you’ll find the open apartment plan. The open living area leads into the dining area and there is a convenient kitchenette. At the top of the stairs is the private bathroom.

Traditional Garage Plan Traditional Garage Plan Traditional Garage Plan - Exterior

Traditional Garage Plan Traditional Garage Plan - Main Floor Plan

Traditional Garage Plan Traditional Garage Plan - Upper Floor Plan

The double car garage on the main level has a storage area and closet under the stairs for additional space. Upstairs on the second floor is the game room. There is a bathroom and an impressive walk-in closet for the cozy space. Check out the attic/storage.

Two Bedroom Garage Plan Two Bedroom Garage Plan Two Bedroom Garage Plan - Exterior

[ Two Bedroom Garage Plan(plan:932-670) Two Bedroom Garage Plan - Main Floor Plan

Two Bedroom Garage Plan Two Bedroom Garage Plan - Upper Floor Plan

If you’re looking for a large garage plan that also has a comfortably sized apartment, then this plan is a great option. This contemporary style house plan has lots of space on the main floor, enough for three cars and a recreational vehicle. In addition to the spaces for vehicles, there is also a large storage area and a half bathroom. Upstairs on the second floor is the two-bedroom apartment with the open living area. There’s a spacious L-shaped kitchen with a walk-in pantry close by to make meal prep more efficient.

Contemporary Style Garage Apartment Plan Contemporary Style Garage Apartment Plan Contemporary Style Garage Apartment Plan - Exterior

Contemporary Style Garage Apartment Plan Contemporary Style Garage Apartment Plan - Main Floor Plan

Contemporary Style Garage Apartment Plan Contemporary Style Garage Apartment Plan - Upper Floor Plan

Light streams into this contemporary style garage apartment plan. Drive up on the main level into the garage and head upstairs to the studio. The studio has an open concept floor plan that leads out to the balcony. The large windows bring lots of natural light into the small space, creating a cozier vibe. Prepare simple meals in the mini kitchen and enjoy in the living space or relax outside on the balcony.

Narrow Garage Apartment Plan Narrow Garage Apartment Plan Narrow Garage Apartment Plan - Exterior

Narrow Garage Apartment Plan Narrow Garage Apartment Plan - Main Floor Plan

Narrow Garage Apartment Plan Narrow Garage Apartment Plan - Upper Floor Plan

Looking to build on a narrow lot? This narrow garage apartment plan would be a great addition to a smaller property. To maximize the full space, the garage is tandem and fits two cars. There is a bathroom on the garage level with a shower. Upstairs there is a single bedroom apartment with access to a balcony.

This apartment plan is all about maximizing the space, and the L-shaped kitchen allows for more room for entertaining. With entertainment in mind, there’s an island in the kitchen where you can prepare meals and engage in conversation with guests. Enjoy the walk-in closet in the bedroom, a bathroom, and space for a stacked washer and dryer.

Garage Apartment Plan with Balcony Garage Apartment Plan with Balcony Garage Apartment Plan with Balcony - Exterior

Garage Apartment Plan with Balcony Garage Apartment Plan with Balcony - Main Floor Plan

Garage Apartment Plan with Balcony Garage Apartment Plan with Balcony - Upper Floor Plan

The front porch and entryway give this traditional garage plan a more home-like feeling. A two-car garage is on the main level with a mud bathroom. Upstairs you will find two bedrooms, each with its own closet. Just outside of the bathroom is a storage closet. The eating bar creates a nice flow into the living room. Sliding glass doors lead out to the covered balcony, where you can take in the views of the property and enjoy the outdoors.

Craftsman Style Garage Plan Craftsman Style Garage Plan Craftsman Style Garage Plan - Exterior

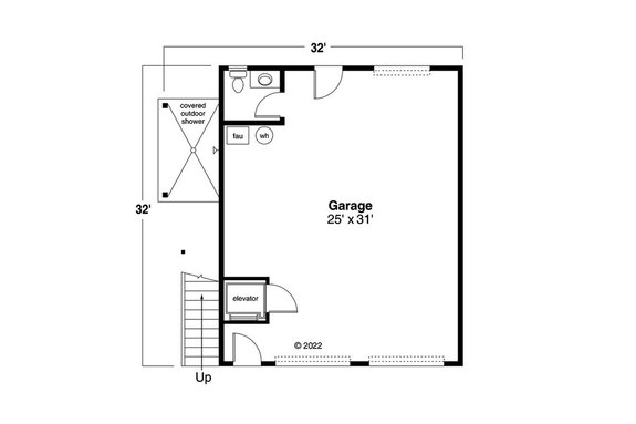
Craftsman Style Garage Plan Craftsman Style Garage Plan - Main Floor Plan

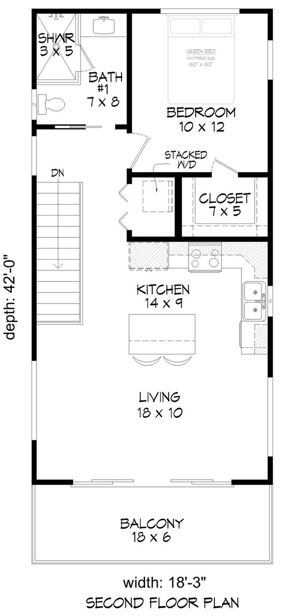
Craftsman Style Garage Plan Craftsman Style Garage Plan - Upper Floor Plan

This Craftsman style garage plan has some great curb appeal and would be a great addition to any property. On the same level as the garage, there is a half bathroom and even a covered outdoor shower. One unique feature of this garage apartment plan is the elevator that leads you up to the second floor. Upstairs is the studio apartment with a cozy kitchen and prep island.

Four Bed Garage Apartment Plan Four Bed Garage Apartment Plan Four Bed Garage Apartment Plan - Exterior

Four Bed Garage Apartment Plan Four Bed Garage Apartment Plan - Main Floor Plan

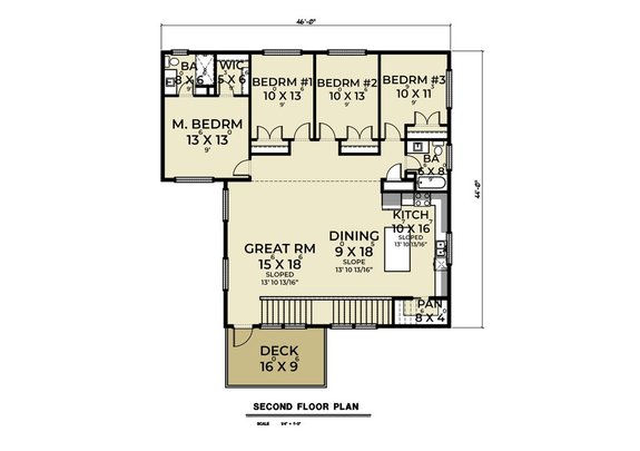
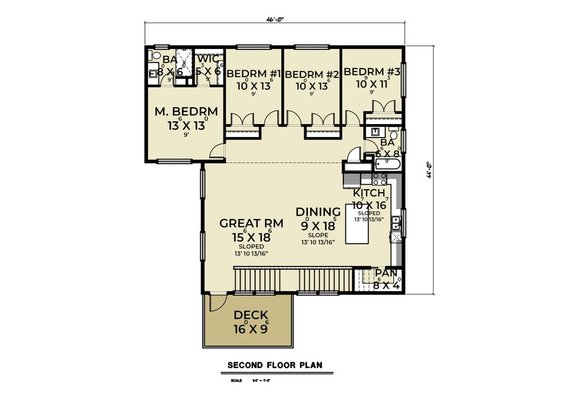
Four Bed Garage Apartment Plan Four Bed Garage Apartment Plan - Upper Floor Plan

This large garage apartment includes a full living space on top of an impressive garage and storage area. Up the stairs to the main floor is the luxurious open-concept apartment. The kitchen flows into the living room with the help of the island. For additional storage, there is a pantry nearby. Families or roommates will appreciate the four bedrooms and two bathrooms.

Craftsman Style Apartment Plan Craftsman Style Apartment Plan Craftsman Style Apartment Plan - Exterior

Craftsman Style Apartment Plan Craftsman Style Apartment Plan - Main and Upper Floor Plan

Inside this eye-catching garage plan is a lovely single bedroom apartment. The main floor has two bays. Upstairs in the apartment is an open concept living space that flows into the kitchen. The L-shaped kitchen provides a bar top where you can enjoy your meals. In the bedroom there’s an impressive walk-in closet. Click through to see more images.

Three-Car Garage Apartment Plan Three-Car Garage Apartment Plan Three-Car Garage Apartment Plan - Exterior

Three-Car Garage Apartment Plan Three-Car Garage Apartment Plan - Main Floor Plan

Three-Car Garage Apartment Plan Three-Car Garage Apartment Plan - Upper Floor Plan

This country style garage plan boasts some handsome curb appeal. The garage can fit three cars and under the stairs is some additional storage. Upstairs in the apartment you’ll be able to enjoy the open living space brought together by the island in the kitchen. French doors in the dining area lead out to the balcony area. Down the hall is a bathroom, a stacked washer and dryer, and a linen closet.

There’s a bedroom on the left and further down the hall is the primary suite with an impressive walk-in closet and a private bathroom.

Browse the full collection of garage apartment plans.

Get Our Newsletter

Be the first to see new plans, special offers, and more.

By signing up for our newsletter, you agree to our Terms & Conditions and Privacy Policy, for an account

Blog Subscribe Icon