By Devin Uriarte
Modern farmhouse has become an incredibly well-known design style, and with good reason. Charming curb appeal mixed with open and modern interiors make for a wildly popular style. We have chosen some of our favorite new modern farmhouse plans all with thoughtful amenities, cozy add-ons, and open floor plans.
See our collection of modern farmhouse plans
Modern Farmhouse with Covered Porches
 Modern Farmhouse with Covered Porches - Exterior
Modern Farmhouse with Covered Porches - Exterior
 Modern Farmhouse with Covered Porches - Main Floor Plan
Modern Farmhouse with Covered Porches - Main Floor Plan
Here’s an attractive farmhouse plan with a traditional exterior. Warm-toned beams on the covered front porch add a rustic vibe. Inside, there is easygoing flow from the great room to the kitchen. Prepare meals in the kitchen that features a great island and a convenient walk-in pantry. A long hallway leads you down to the bedrooms and out to the back porch. The primary suite has an impressive walk-in closet and a spa-like bathroom with lots of storage.
Rear Porch with Wood Burning Fireplace
 Rear Porch with Wood Burning Fireplace - Exterior
Rear Porch with Wood Burning Fireplace - Exterior
 Rear Porch with Wood Burning Fireplace - Main Floor Plan
Rear Porch with Wood Burning Fireplace - Main Floor Plan
Cozy up on the rear porch of this modern farmhouse plan. The wood burning fireplace on the back porch makes for a great spot to unwind after a long day or a place to host guests. That same cozy vibe continues indoors in the vaulted great room with the gas fireplace. On one side of this farmhouse plan are three bedrooms and on the other side of the home is the primary suite. The primary suite has a walk-in closet that’s conveniently connected to the laundry and mudroom.
Farmhouse with Curb Appeal
 Farmhouse with Curb Appeal - Exterior
Farmhouse with Curb Appeal - Exterior
  Farmhouse with Curb Appeal - Main Floor Plan
Farmhouse with Curb Appeal - Main Floor Plan
This charming modern farmhouse plan has stunning curb appeal. The large window and vaulted ceiling provide lots of natural sunlight and create a more open feeling throughout the space. Entertain guests with ease at the spacious kitchen island and enjoy the storage close by with the pantry. Take guests to the back porch on those warmer nights and keep the party going. Each bedroom has its own private closet, and the primary suite has a walk-in with built-in storage. The primary suite’s bathroom feels luxurious with its freestanding tub and tile shower.
Single-Story Ranch
 Single-Story Ranch - Exterior
Single-Story Ranch - Exterior
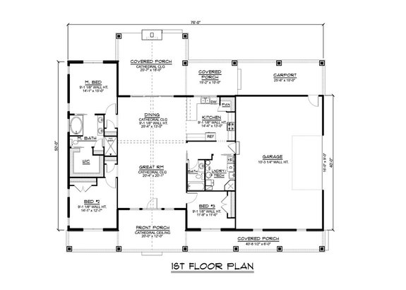
  Single-Story Ranch - Main Floor Plan
Single-Story Ranch - Main Floor Plan
Looking for a single-story farmhouse plan with lots of outdoor entertainment space? This ranch-style farmhouse has a large covered back porch with a cathedral ceiling and an outdoor fireplace, making it a great place to host guests. In addition to the two-car garage, there is also a single carport. From the garage, you walk in and have the laundry room to the left and the kitchen to the right. Great storage and additional counter space is featured in the kitchen. The kitchen flows into the open dining and great rooms for a modern style.
Cozy Farmhouse Plan
 Cozy Farmhouse Plan - Exterior
Cozy Farmhouse Plan - Exterior
  Cozy Farmhouse Plan - Main Floor Plan
Cozy Farmhouse Plan - Main Floor Plan
Look to this cozy farmhouse plan if you’re in search of an open layout to build on a narrow lot. The foyer leads down the main hallway, which opens to the living area and kitchen. There’s a fireplace in the great room for a touch of coziness to the very open space. Having an island with an eating bar makes entertaining a breeze, especially if you enjoy preparing meals. Out on the porch there’s another fireplace for some extra-cozy vibes.
Duplex Farmhouse
 Duplex Farmhouse - Exterior
Duplex Farmhouse - Exterior
  Duplex Farmhouse - Main Floor Plan
Duplex Farmhouse - Main Floor Plan
Duplex home plans are a great option for anyone looking to house multiple families or renters. The two units mirror each other, with you entering into the home through the front porch and into the open living area. The kitchen has great counter and storage space including an island with a built-in bar top. Both bedrooms have access to the bathrooms. At the end of the hall there is a laundry room with a back-door exit. For additional storage, both units have attic access.
Modern Farmhouse Under 1,500 Sq. Ft.
 Modern Farmhouse Under 1,500 Sq. Ft. - Exterior
Modern Farmhouse Under 1,500 Sq. Ft. - Exterior
  Modern Farmhouse Under 1,500 Sq. Ft. - Main Floor Plan
Modern Farmhouse Under 1,500 Sq. Ft. - Main Floor Plan
Check out this smallish farmhouse plan with 1,446 sq. ft. and great amenities like a laundry room and a third bedroom that can be used as an at-home office. Step outside to the back porch from the living room or from the primary suite. In the primary suite, there is a double-sink vanity and a walk-in closet.
Country Style Farmhouse
 Country Style Farmhouse - Exterior
Country Style Farmhouse - Exterior
  Country Style Farmhouse - Main Floor Plan
Country Style Farmhouse - Main Floor Plan
  Country Style Farmhouse - Upper Floor Plan
Country Style Farmhouse - Upper Floor Plan
Discover this new modern barndominium-style farmhouse plan with great flair. The covered wraparound porch creates an overall welcoming sense. There is seamless flow from the open living area into the kitchen. The kitchen has great counter space and even a coffee bar for those early mornings. From the two-car carport you enter the mudroom with an adjacent laundry room. The primary suite sits on the first floor with a bath and an impressive walk-in closet.
On the second floor, there are two additional bedrooms plus an at-home office. The cozy loft space can be used as a media space for guests.
Modern Farmhouse Plan
 Modern Farmhouse Plan - Exterior
Modern Farmhouse Plan - Exterior
  Modern Farmhouse Plan - Main Floor Plan
Modern Farmhouse Plan - Main Floor Plan
This new modern farmhouse plan has an open concept living space that is great for entertaining. Serve up your guests from the kitchen island and continue the flow of conversation from the dining room out to the covered back porch. There are two bedrooms for guests and a lovely primary suite. Double doors swing open to the double vanity in the bathroom, where you'll also find a walk-in closet with built-in shelves.
Modern Farmhouse Duplex Plan
 Modern Farmhouse Duplex Plan - Exterior
Modern Farmhouse Duplex Plan - Exterior
  Modern Farmhouse Duplex Plan - Main Floor Plan
Modern Farmhouse Duplex Plan - Main Floor Plan
Here's a duplex that shows how stylish they can be. Each side gets a garage, a welcoming front porch, and an open layout with three bedrooms. Highlights include the primary suite's surprisingly spacious bathroom (check out the double-sink vanity and walk-in closet), lockers in the mudroom, and a rear porch.
 
         
                   
                   
                   
                   
                  