Blog Home > Single-Story House Plans with Basements

The Houseplans Blog

Single-Story House Plans with Basements

Single-story house plans with optional basements.

Hero Image

May 7, 2024

Livabl Brand

Can't find what you're looking for?

Give us a call below or reach out and we’ll make sure to be in contact!

Send Us a Message

By Devin Uriarte

Explore the charm and versatility of these single-story house plans with basement foundations (some optional, others included). These plans cater to a wide range of lifestyles and preferences, but what they all have in common is the convenience of single-level living.

Discover more house plans with basements here.

Farmhouse with Curb Appeal Farmhouse with Curb Appeal Farmhouse with Curb Appeal - Front Exterior

Farmhouse with Curb Appeal Farmhouse with Curb Appeal - Main Floor Plan

Farmhouse with Curb Appeal Farmhouse with Curb Appeal - Alternate Main Floor Plan Showing Basement Stairs

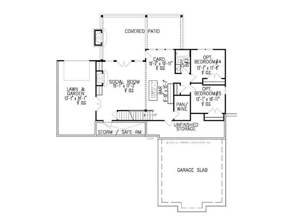
A welcoming front porch with classic farmhouse details gives this house plan great curb appeal. Through the front porch is a foyer that leads to the spacious open floor plan. The kitchen features an island that overlooks the dining nook and living room. In the owner’s suite there is a full bathroom and walk-in closet, plus it sits on the opposite side of the plan from the two guest rooms for privacy. The entrance to the optional basement would be located immediately next to the two-car garage.

Farmhouse with Basement Plan Farmhouse with Basement Plan Farmhouse with Basement Plan - Front Exterior

Farmhouse with Basement Plan Farmhouse with Basement Plan - Main Floor Plan

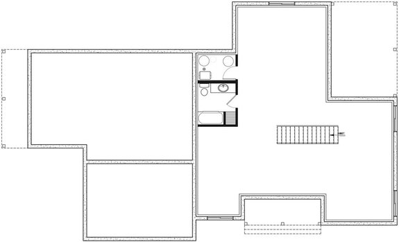
Farmhouse with Basement Plan Farmhouse with Basement Plan - Alternate Main Floor Plan Showing Basement Stairs

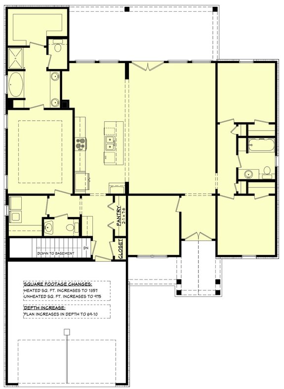
The exterior of this modern farmhouse shows off a classic front porch. Inside there is a seamless flow from the great room into the kitchen and out to the rear porch. Enjoy cooking with plenty of counter and storage space from the walk-in pantry and prep island. Next to the two-car garage would be the optional basement entrance. Also next to the garage is a convenient mudroom, bench, and powder room.

A door connects the walk-in laundry room to the main bedroom’s walk-in closet. Because the main bedroom is on the opposite side of the plan from the other bedrooms, owners have more privacy.

Unique and Stylish Farmhouse Unique and Stylish Farmhouse Unique and Stylish Farmhouse - Front Exterior

Unique and Stylish Farmhouse Unique and Stylish Farmhouse - Main Floor Plan

Unique and Stylish Farmhouse Unique and Stylish Farmhouse - Basement Floor Plan

The exterior of this farmhouse is quite stylish with the board and batten siding. Inside you will find a unique floor plan that would be most ideal for live-in in-laws. Connected to the main house plan is a cozy apartment style plan with its own covered porch. On the apartment side, there is a full kitchen with a pantry, a sizeable bathroom, and a bedroom with sliding glass doors. In the main floor plan, there is a luxe primary suite with a walk-in closet and full bathroom. Across from the half bath is the stairwell to the basement.

Classic Farmhouse with Basement Classic Farmhouse with Basement Classic Farmhouse with Basement - Front Exterior

Classic Farmhouse with Basement Classic Farmhouse with Basement - Main Floor Plan

Classic Farmhouse with Basement Classic Farmhouse with Basement - Basement Floor Plan

What immediately catches our eye about this floor plan is the vaulted covered porch in back. Double sliding glass doors in the living room open to the porch, creating great indoor-outdoor flow. There’s a cozy breakfast nook that looks out to the open deck for casual dining and in the kitchen, there’s a walk-in pantry for additional storage. The primary suite has a vaulted ceiling for that luxurious feeling and the large bathroom and walk-in closet really elevate the space.

Discover more house plans with basements here.

Get Our Newsletter

Be the first to see new plans, special offers, and more.

By signing up for our newsletter, you agree to our Terms & Conditions and Privacy Policy, for an account

Blog Subscribe Icon