Blog Home > Small Modern Farmhouse Plans

The Houseplans Blog

Small Modern Farmhouse Plans

Explore these modern farmhouse plans!

Hero Image

December 3, 2021

Livabl Brand

Can't find what you're looking for?

Give us a call below or reach out and we’ll make sure to be in contact!

Send Us a Message

By Gabby Torrenti

This collection of plans features one of our most popular home styles- modern farmhouses! Perfectly combining classic style with modern flair, these homes fit nicely into virtually any neighborhood. This selection includes plans under 2,500 square feet, making them ideal for smaller-lot building projects, too! Browse some of our favorite small modern farmhouses and find the perfect plan for you and your family.

Want to see all of our small modern farmhouse plans? View the full collection here.

Modern Farmhouse with Tons of Photos Exterior - Front Elevation for Farmhouse House Plan #430-164 - 3 bed, 2 bath Modern Farmhouse with Photos 430-164 - Front Exterior Small Modern Farmhouse Plans Modern Farmhouse with Photos 430-164 - Main Floor Plan Small Modern Farmhouse Plans Modern Farmhouse with Photos 430-164 - Bonus Floor Plan

With lots of curb appeal and a wide-open floor plan, this 2,077-square-foot home stuns at first glance. Brick accents inside and modern finishes make this home feel both chic and cozy, while three bedrooms provide plenty of space for everyone to enjoy. Beyond the front porch, the home opens with a foyer, which is flanked by a guest bedroom and formal dining room. Straight ahead, it’s simple to envision yourself relaxing in the great room, which is surrounded by a kitchen with a center island, dual hallways that lead toward the home’s guest bedrooms, and a rear porch for outdoor entertaining.

At the end of the day, retire to either wing of this home to catch some much-needed z’s. On the right side, two bedrooms meet in the middle with a bath that offers two sinks. Across the home, the primary suite features its own entryway, leading into a sizable bedroom with a bathroom with double vanities and a walk-in closet. A laundry room in this wing makes keeping your space neat a breeze, too. Upstairs, a bonus room and full bathroom unlock lots of potential for hosting guests or creating the ultimate lounge space in your home.

Contemporary Two-Story Farmhouse Exterior - Front Elevation for Country House Plan #1070-33 - 3 bed, 2.5 bath Contemporary Two-Story Farmhouse 1070-33 - Front Exterior Small Modern Farmhouse Plans Contemporary Two-Story Farmhouse 1070-33 - Main Floor Plan Small Modern Farmhouse Plans Contemporary Two-Story Farmhouse 1070-33 - Upper Floor Plan

This two-story modern farmhouse fits lots of luxe features in 2,490 square feet, including a modern open layout and bonus space for relaxing or entertaining. Beyond the front porch, the home opens to the great room with a fourteen-foot ceiling, making the space feel effortlessly grand. To the right, the kitchen with a center island creates a hub for entertaining, with a dining space and walk-in pantry close by for optimal convenience. A mudroom and laundry room in this wing helps keep your home neat and tidy, too. Across the home, the primary suite includes a large bedroom with a bathroom with two sinks that connects the bedroom to the walk-in closet. Step outside to enjoy the covered patio, which makes outdoor entertaining easy.

Upstairs, two additional bedrooms make the perfect spaces for children or guests, with a shared hall bathroom. A closet in each bedroom makes storage simple, while a bonus room is ideal for relaxing as a family.

Looking for inspiration to decorate the modern farmhouse of your dreams? Check out these ideas from Homes and Gardens.

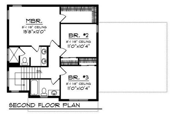
Modern Farmhouse with Classic Details Exterior - Front Elevation for Farmhouse House Plan #119-433 - 3 bed, 3.5 bath Modern Farmhouse with Classic Details 119-433 - Front Exterior Small Modern Farmhouse Plans Modern Farmhouse with Classic Details 119-433 - Main Floor Plan Small Modern Farmhouse Plans Modern Farmhouse with Classic Details 119-433 - Upper Floor Plan

Coming in at just under 2,000 square feet, this two-story modern farmhouse feels luxe with the additions of vaulted ceilings and thoughtful details throughout. Through the front door, the foyer is surrounded by the primary suite and a formal dining room. The main suite includes a large bedroom, a walk-in closet with tons of space, and a bathroom with double sinks, giving the homeowners their own space to unwind. Across the foyer, the great room flows effortlessly into the kitchen, making this home perfect for hosting holiday gatherings. At the rear of the home, a covered porch wraps around to the left side, giving you plenty of space to relax outdoors. A mudroom, pantry, and powder room are just a few additional details that make this house feel like home.

Upstairs, two more bedrooms with their own bathrooms and walk-in closets are ideal for hosting guests or giving kids their own spaces. An unfinished bonus room allows you to customize your space to best fit your family’s needs, too. The second level also comes equipped an additional linen closet to keep your home organized.

Need more space? Finish the basement level, which can hold many different spaces for relaxing or entertaining. At the bottom of the stairs, a recreation room greets you, bordered by a media room and access to the covered lower-level patio. A playroom and gym make the basement the perfect hub for partaking in your favorite hobbies, too. Storage space throughout this level rounds out the home and helps keep your space effortlessly organized.

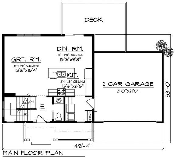
Classic Farmhouse Exterior - Front Elevation for Farmhouse House Plan #70-1454 - 3 bed, 2.5 bath Classic Farmhouse 70-1454 - Front Exterior Small Modern Farmhouse Plans Classic Farmhouse 70-1454 - Main Floor Plan Small Modern Farmhouse Plans Classic Farmhouse 70-1454 - Upper Floor Plan

This 1,495-square-foot home includes lots of open living space, spread across two relaxed stories. Off the front porch, the great room opens the home, with the dining room and kitchen located to the right. At the rear of the home, a deck is perfect for relaxing outdoors, while a two-car garage offers storage and has direct access to the laundry room.

Upstairs, the primary bedroom sits at the left of the home and includes a full bathroom with two sinks and a large closet. Two more bedrooms on this level come equipped with their own closets and a shared bathroom, making these rooms perfect for children to enjoy.

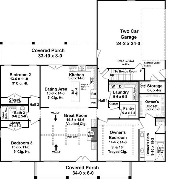
Traditional Farmhouse Ranch Exterior - Front Elevation for Farmhouse House Plan #21-461 - 3 bed, 2 bath Traditional Farmhouse Ranch 21-461 - Front Exterior Small Modern Farmhouse Plans Traditional Farmhouse Ranch 21-461 - Main Floor Plan Small Modern Farmhouse Plans Traditional Farmhouse Ranch 21-461 - Bonus Floor Plan

At 1,817 square feet, this ranch-style farmhouse charms from the street with a country-style front porch, leading into the vaulted great room. At the rear of the great room, the kitchen and eating area flow together, with access to the covered porch for dining alfresco. Back inside, the owners’ suite comprises the right side of the main level and includes a bathroom with double sinks, a walk-in closet, and good proximity to the laundry room. Don't miss the spacious pantry for storing groceries. Across the home, two more bedrooms are perfect for housing guests and share a full bathroom.

An additional bonus room above the garage adds extra versatility and possibilities.

Want to see more? View our full collection of small modern farmhouse plans here.

Get Our Newsletter

Be the first to see new plans, special offers, and more.

By signing up for our newsletter, you agree to our Terms & Conditions and Privacy Policy, for an account

Blog Subscribe Icon