Looking for a house plan that’s simple and easy to love? We’ve got you covered. These 40 x 40 house designs keep things uncomplicated without sacrificing style.
Each plan highlights open, practical layouts that make everyday living effortless. With well-planned spaces that maximize every square foot, these designs prove that you don’t need a sprawling floor plan to live comfortably.
From airy living areas and functional kitchens to smart storage solutions and breezy outdoor spaces, these 40 x 40 house designs are crafted to balance convenience with character.
Want more? Explore simple house plans collection here.
Charming Cottage Plan
Charming Cottage Plan - Front Exterior
Charming Cottage Plan - Main Level
Looking for a compact 40 x 40 floor plan? This charming cottage design delivers style and efficiency. The exterior features a deep front porch and board-and-batten siding for standout curb appeal.
Inside, the living room/dining area flows seamlessly into the open kitchen. On the right side of the layout, two bedrooms share a hall bath, which features a custom shower. The laundry room sits conveniently close by. Don’t miss the spacious rear porch.
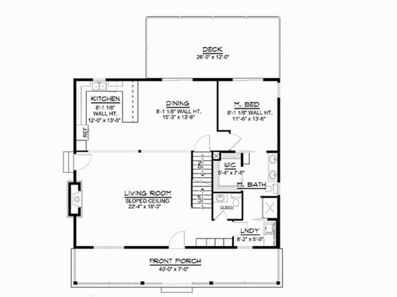
Cabin Plan with Loft
Cabin Plan with Loft - Front Exterior
Cabin Plan with Loft - Main Level
Cabin Plan with Loft - Upper Level
Cabin Plan with Loft - Lower Level
This cabin house plan emphasizes easy living with a modern layout and thoughtful features. We love the spacious deck. Expansive windows fill the interior with natural light, while the U-shaped kitchen boasts a central island perfect for meal prep and relaxed hangouts.
The breakfast nook flows nicely into the great room, creating an inviting atmosphere. The main-level primary suite includes access to the laundry room. Two bedrooms (each with a walk-in closet) share a hall bath on the second level. Note the versatile loft. On the lower level, a basement opens up all kinds of possibilities.
Tiny ADU Plan
Tiny ADU Plan - Front Exterior
In the market for an accessory dwelling unit? Here you go! The interior features an L-shaped kitchen, a bedroom, and a bathroom.
A generous porch extends the living space and offers outdoor living. You’ll find ample room for storage in the two-car garage. The simple 40 x 40 footprint makes this a budget-friendly option.
40 x 40 Country Plan
40 x 40 Country Plan - Front Exterior
40 x 40 Country Plan - Main Level
40 x 40 Country Plan - Upper Level
A covered front porch welcomes you to this 40 x 40 country house plan. Inside, a fireplace warms the open living room. Serve up snacks at the eating bar in the L-shaped kitchen.
Here’s a fun detail: the first-floor primary suite gives you direct access to the laundry room. A rear deck offers even more outdoor living. Two additional bedrooms and a full bath complete the second level.
Versatile Log Cabin Plan
Versatile Log Cabin Plan - Front Exterior
Versatile Log Cabin Plan - Main Level
Versatile Log Cabin Plan - Upper Level
Check out this relaxing (and affordable!) log cabin house plan. The uncomplicated layout feels breezy and bright. The wraparound patio is great for grilling when the weather is favorable.
Versatile features include a generous loft and a flexible study. The two-story great room opens to the dining area and the kitchen, where an island seats up to six. Great for aging in place, the main-level primary suite impresses with an extra-big walk-in closet.
Split-Bedroom Design
Split-Bedroom Design - Front Exterior
Split-Bedroom Design - Main Level
This cozy farmhouse-style house plan offers 1,360 square feet of easy living with three beds and two baths. The super-open layout creates a bright, welcoming space. The U-shaped kitchen features a snack bar that overlooks the vaulted living room and the dining area.
The primary suite enjoys privacy on the right side of the plan (note the large roll-in shower and the optional laundry chute). Two more bedrooms share a hall bath on the opposite side. The handy mudroom includes an appliance bar and a coat closet.
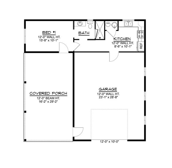
Country Garage Apartment Plan
Country Garage Apartment Plan - Front Exterior
Country Garage Apartment Plan - Main Level
Country Garage Apartment Plan - Upper Level
Here’s a two-bedroom garage apartment plan that turns heads with country curb appeal. The garage gives you room to store up to two vehicles. Don’t miss the cool workbenches.
Inside, the open layout boasts a kitchen and a living/dining area. Three sets of French doors open to a patio for easy indoor/outdoor living. Two bedrooms, a full bath, and half bath reside on the left side of the plan. The storage loft is a welcome detail.
One-Bedroom Cottage Design
One-Bedroom Cottage Design - Front Exterior
One-Bedroom Cottage Design - Main Level
A four-corner footprint makes this cottage house plan a builder-friendly option. We are swooning over the metal roof and the wide front porch. Inside, the open floor plan makes the plan feel bigger than it is.
Other highlights include a custom shower, a spacious closet, and a covered back porch.
