Need a little (or a lot) of space to grow? We’ve got you covered with this selection of 6 bedroom house plans. Whether you’re looking for space for children, live-in relatives, or parents moving in, a 6 bedroom home plan might be just what you need. With 6 bedrooms, you’ll be able to accommodate almost any living situation, and still leave room to grow if you need it. We’ve included all kinds of styles in this list, so no matter what your preference, you’re sure to find a home that’s just what you’re looking for.
Check out our collection of 6 bedroom house plans here
6 Bedroom Home Plan with Modern Style
6 Bedroom House Plan 1066-109 - Front Exterior
This eye-catching plan is sure to turn heads. When you make your way through the front door, you’ll find space for a den/home office and a powder room. Make you way back and you’ll find yourself in the spacious and open dining area, which moves seamlessly into the great room. The nearby kitchen includes a generous kitchen island, and access to the covered deck.
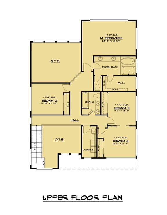
The master suite is on the second level, and includes a walk-in closet, luxe bathroom with two sinks, separate tub and shower, and toilet compartment. There are three additional bedrooms, one full bathroom, and laundry space on this floor.
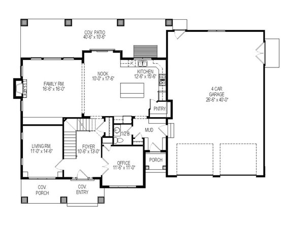
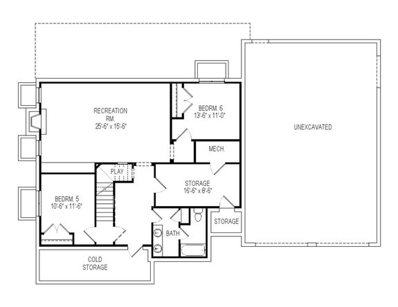
The lower level features two bedrooms, a study, one full bathroom, a rec room, and a mudroom with access to the garage.
Check out these basement rec room ideas from HGTV
Craftsman House Plan with Relaxing Master Suite
Plan 920-36
Here's a lovely Craftsman style house plan with 6 bedrooms, a relaxing master suite, and an open floor plan. Highlights include the versatile home office space and the extra-spacious laundry room. The kitchen's massive island makes it easy to prep meals. Don't miss the walk-in pantry. Need to stay organized? Everything has a place in the handy mudroom.
Farmhouse Plan with Two Master Suites
Plan 923-22
This farmhouse style home plan that features a relaxing wrap around porch. When you enter, you’ll find yourself in the large great room (with a built-in fireplace) that flows into the open dining area and kitchen space. The kitchen features a large island, a walk-in pantry, and a breakfast nook with views of the outdoor porch. The master suite is towards the front of this plan and gives you dual walk-in closets and a spacious bath with a seated shower and two sinks. There are three additional bedrooms towards the rear of the home and a full bathroom.
This house design features a connected in-laws suite, which includes a great room, a kitchen, a breakfast space, a bedroom, and a full bathroom. The second master suite includes a walk-in closet, dual sinks, and a laundry area nearby.
Take a look at these wrap around porch ideas from Shelterness
Craftsman Style 6 Bedroom Spacious Home Design
Plan 920-24
If your favorite style is the classic Craftsman, then this two-story 6 bedroom house design might be just what you’re looking for. When you enter through the foyer you’ll notice the welcoming living room off to one side, and a cozy study/den on the other side. The open family room easily transitions into the dining area and kitchen, which features a large kitchen island, a walk-in pantry, plenty of cabinet space, and access to the outdoor covered deck. The master suite includes a walk-in closet, a soaking tub, a separate shower, and dual sinks.
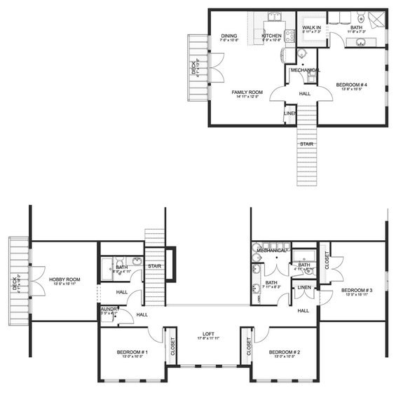
The second level features three bedrooms, two full bathrooms, and a bonus room. But that’s not all, because on the lower level you find two additional bedrooms, a large rec room (with snack bar), two full bathrooms, an exercise room, a media room, a rec room, and space for cold storage. This level also includes an outdoor patio and a sports court.
Farmhouse Style House Design with Big Front Porch
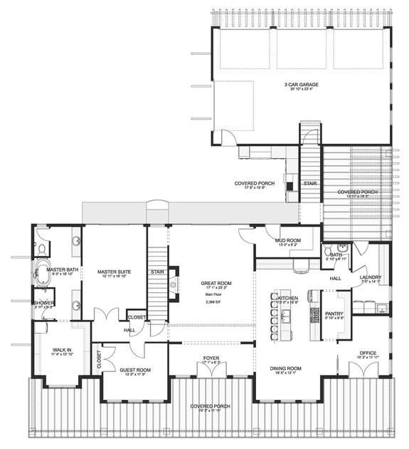
The wide covered porch is a welcoming addition to this farmhouse style home plan. Make your way through the foyer and you’ll be greeted with the spacious and airy great room, which includes a built-in fireplace. One wing of the house plan includes a large, modern kitchen equipped with a large island, a walk-through pantry, and a dining space. Further back and you’ll find a half bathroom, laundry area, and space for a home office. The opposite side of this level features one guest room and the master suite that includes a generous walk-in closet, spacious bathroom with dual sinks, soaking tub, shower, and toilet compartment.
The second level features three bedrooms, two full bathrooms, a hobby/rec room (with access to the second floor deck), and a loft space. Additionally, above the three car garage is a guest suite, which features a bedroom, walk-in closet, bathroom, family room, dining room, kitchen, and access to a private deck.
Country Style Home Design that Includes 6 Bedrooms
Plan 932-66
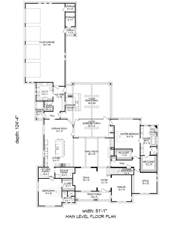
This 6 bedroom house plan gives you country curb appeal. The expansive family room offers access to the outdoor screened porch, large rear porch, and outdoor kitchen. The well-equipped kitchen features a walk-in pantry, a butler’s pantry, a morning room, and an island for casual dining. Towards the front of the house there is one bedroom with a walk-in closet and a private bathroom. On the opposite side of this level is the master suite, which features two walk-in closets, a luxurious bathroom with two sinks, a separate shower and tub, and a toilet compartment. A home office is just steps away across the hall.
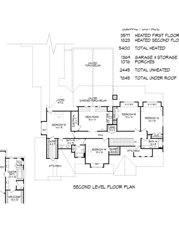
The second level boasts four bedrooms, two full bathrooms, and a media room complete with a convenient wet bar.
Appealing 6 Bedroom House Design
Plan 923-134
Prepare to cozy up in style with this timeless country style design. You’ll love the large and welcoming front porch. When you walk through the foyer, you’ll find a convenient study or parlor room just before you walk through to the kitchen. You’ll notice this kitchen comes equipped with an island (with a farm sink), a walk-in pantry, and a dining space for gathering. Beyond that is the great room, which includes access to the outdoor rear grilling porch. On this floor you’ll find a guest bedroom with a private bathroom, in addition to the master suite (which features a walk-in closet, luxe bathroom with dual sinks, a free-standing tub, easy access to the laundry, and a private covered porch).
The second level includes four bedrooms, two bathrooms, and a spacious loft/rec area.
Cottage Style Duplex House Plan
Plan 120-267
If you like the idea of convenient duplex living, then this arrangement could be just what you need. These side by side two-story units have separate entrances and 6 bedrooms between them. On the first floor you’ll find a living room, dining area, and U-shaped kitchen. Further back is the master suite with a walk-in closet, private bath, and space for the washer/dryer and powder room nearby.
The second level features two bedrooms (each with a walk-in closet), one bathroom, and a spacious den.
These house plans all feature the space you need to accommodate 6 bedrooms. No matter what style you choose, they’re all sure to be a spacious, eye-catching design!


















