Blog Home > Create or Buy Plans

The Houseplans Blog

Create or Buy Plans

Building from a ready-made plan lets you jumpstart the process -

Hero Image

July 12, 2013

Livabl Brand

Can't find what you're looking for?

Give us a call below or reach out and we’ll make sure to be in contact!

Send Us a Message
Getting the House You Want

Now that you know your wish-list, budget and zoning requirements it’s time to design! If you have the resources it is a great idea to hire a qualified local architect who is trained and talented in mapping your needs to the unique realities of your site. Site-specific views, wind, sun orientation, grade changes and landscape features can be so important that they define the building. In almost every case, site characteristics influence the layout of rooms, windows and more.

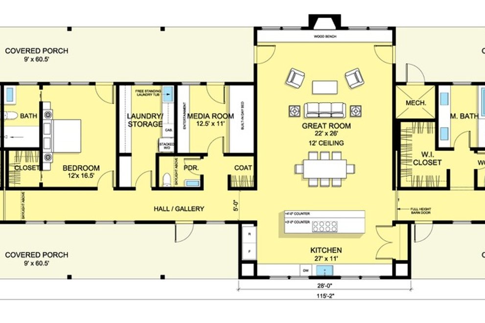
When the budget does not allow for a talented architect to create a plan just for you, starting with an existing plan is a great option. When you start with an existing plan – like Plan 888-8 shown above — your additional design dollars are applied to tailoring the plan to your unique needs and desires and the requirements of your site.

Resources:

Get Our Newsletter

Be the first to see new plans, special offers, and more.

By signing up for our newsletter, you agree to our Terms & Conditions and Privacy Policy, for an account

Blog Subscribe Icon