Blog Home > New House Plans

The Houseplans Blog

New House Plans

See our favorite new house plans.

Hero Image

February 24, 2023

Livabl Brand

Can't find what you're looking for?

Give us a call below or reach out and we’ll make sure to be in contact!

Send Us a Message

By Devin Uriarte

We're constantly adding new house plans. Enjoy fresh ideas that vary in style and size. We’ve chosen a few standout plans here that all feature lovely curb appeal and modern interiors.

See more of our newest house plans.

New Modern Farmhouse New Modern Farmhouse New Modern Farmhouse - Exterior

New Modern Farmhouse New Modern Farmhouse - Main Floor Plan

New Modern Farmhouse New Modern Farmhouse - Other Floor Plan

This classic modern farmhouse has an open concept floor plan that is essential for hosting. Through the formal foyer is the open living space with sliding glass doors that lead to the rear porch. The rear porch features a wood burning fireplace and an outdoor kitchen, perfect for those warmer nights. Prepare meals at the impressive kitchen island and enjoy the walk-in pantry, coffee bar, and butler’s pantry. Past the kitchen is the luxurious owner’s suite wing. Double doors open to a hallway with the walk-in closet to the left and the bathroom to the right. The three additional bedrooms with walk-in closets are on the opposite side of the home.

New Open-Concept House Plan New Open-Concept House Plan New Open-Concept House Plan - Exterior

New Open-Concept House Plan New Open-Concept House Plan - Main Floor Plan

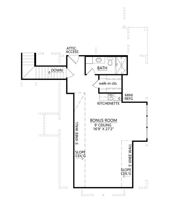
New Open-Concept House Plan New Open-Concept House Plan - Upper Floor Plan

A metal roof and vertical siding give this modern farmhouse curb appeal. Double French doors open to the veranda, where you can barbecue. An impressive island in the kitchen breaks up the rooms while also providing a nice flow when entertaining. A unique walk-through pantry sits behind the kitchen for additional storage. Down the hall is the primary suite, which features a full bathroom and a walk-in closet.

Back in the living room there is a formal dining room next to the foyer for more elevated occasions. In the guest wing, there are two hall closets plus linen storage. Both bedrooms have walk-in closets and share a Jack and Jill bathroom. Upstairs, there is a bonus cozy loft space that can be utilized as an entertainment area.

New Modern House Plan New Modern House Plan New Modern House Plan - Exterior

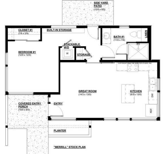
New Modern House Plan New Modern House Plan - Main Floor Plan

This small modern house plan shows off big curb appeal. Although this plan is just over 700 sq. ft., owners can enjoy the open concept floor plan. The covered front porch opens to the living room, which flows into the kitchen where an island breaks up the area. The bedroom suite has built-in storage, a closet, and a place for a stacked washer and dryer. There’s a side yard patio that can be accessed through the owner’s suite to enjoy the outdoors.

New Ranch Style House Plan New Ranch Style House Plan New Ranch Style House Plan - Exterior

New Ranch Style House Plan New Ranch Style House Plan - Main Floor Plan

This new ranch house plan boasts simple and clean lines. The single-story floor plan makes it easy to get around. Through the foyer, there is a private office to the left before entering the open living room. In the kitchen there’s an island that’s great for meal prep with a walk-in pantry close by. Next to the kitchen is the primary suite, which features an impressive walk-in closet and a private bathroom with a double vanity. Two guest bedrooms sit on the opposite side of the home, giving owners privacy.

New Single-Story Ranch New Single-Story Ranch New Single-Story Ranch - Exterior

New Single-Story Ranch New Single-Story Ranch - Main Floor Plan

This new single-story ranch has an open concept floor plan that focuses on the expansive outdoor living areas. Take guests out to the screened porch for dinner and drinks, or prepare snacks at the kitchen island while visitors hang out in the open living room. Behind the kitchen is the main suite, which features a lovely bathroom and walk-in closet with a sun tunnel. On the other side of the house plan there are two guest bedrooms with a third flex room that can be utilized as an office.

New Prairie Style Plan New Prairie Style Plan New Prairie Style Plan - Exterior

New Prairie Style Plan New Prairie Style Plan - Main Floor Plan

New Prairie Style Plan New Prairie Style Plan - Upper Floor Plan

Enjoy all the luxuries of this new Prairie style house plan. A series of glass doors in the living room look out to the covered patio. Prepare meals at the impressive kitchen island while entertaining guests in the dining and living rooms. The sleek, modern primary suite has a study next door for working from home. Upstairs, guests can relax in the loft and feel right at home in the two bedrooms.

See more of our newest house plans.

Get Our Newsletter

Be the first to see new plans, special offers, and more.

By signing up for our newsletter, you agree to our Terms & Conditions and Privacy Policy, for an account

Blog Subscribe Icon