Blog Home > 10 House Plans with Three-Car Garages

The Houseplans Blog

10 House Plans with Three-Car Garages

Get storage and more with these house plans with garages

Hero Image

September 12, 2022

Livabl Brand

Can't find what you're looking for?

Give us a call below or reach out and we’ll make sure to be in contact!

Send Us a Message

By Devin Uriarte

If you are looking for a home with more storage, then look at these ten house plans with three-car garages. Having a three-car garage allows you to keep your cars out of the weather and provides extra storage for personal items. No matter your design style, these house plans will give you the space you need.

Explore our collection of house plans with three-car garages.

Modern Drive Under House Plan Modern Drive Under House Plan Modern Drive Under House Plan - Exterior

Modern Drive Under House Plan Modern Drive Under House Plan - Main Floor Plan

Modern Drive Under House Plan Modern Drive Under House Plan - Upper Floor Plan

On the lower level of this modern house plan is the three-car garage, a woodworking room, and a craft room. Heading upstairs to the main living area, you’re greeted by beaming natural light from the large windows. Take in the view of your property preparing meals in the kitchen or sitting at the three-top eating bar. Two spacious bedrooms are located on the main floor, along with a walk-in laundry room for easy access.

Single-Story Home with Three-Car Garage Single-Story Home with Three-Car Garage Single-Story Home with Three-Car Garage - Exterior

Single-Story Home with Three-Car Garage Single-Story Home with Three-Car Garage - Main Floor Plan

Enjoy a timeless design with an open and modern layout. This house plan is sprawling with storage. The one-car garage leads to an open storage are that is connected to the two-car garage. Keep your home organized by storing away items in the attic, which can be accessed in the two-car garage. A hallway from the garage leads you to the main living area. Prepare meals with ease at the kitchen island and keep those counters clear by storing everything in the walk-in pantry with built-in shelves.

Traditional House Plan Traditional House Plan Traditional House Plan - Exterior

Traditional House Plan Traditional House Plan - Main Floor Plan

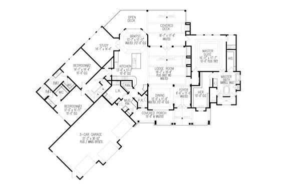
The covered porch leading into this traditional home is a wonderful way to welcome guests. You can access the home through the three-car garage after walking through the mud room. Having a walk-in laundry room and pantry so close to the garage makes unwinding after a long day effortless. There is a sense of connection from the kitchen to the breakfast nook provided by the spacious island. The open layout continues to the living room and dining room, even leading out to the covered deck.

European Style House Plan with Connecting Garage European Style House Plan with Connecting Garage European Style House Plan with Connecting Garage - Exterior

European Style House Plan with Connecting Garage European Style House Plan with Connecting Garage - Main Floor Plan

Over 4,000 square feet of living space waits for you in this single-story European style home. One of the garages fits two vehicles and the other fits a one singular vehicle. The single-car garage can be accessed by walking through the spacious laundry room. Pass by the laundry room to the entrance of the two-car garage. There are two primary suites amongst the four bedrooms in this house plan.

Three-Car Garage with Open Deck Three-Car Garage with Open Deck - Exterior

Three-Car Garage with Open Deck Three-Car Garage with Open Deck - Main Floor Plan

This two-story contemporary house plan features an open deck that sits on top of the three-car garage. Access the deck from the recreation room on the second floor. Through the garage is the spacious mud room where you can manage clutter and store belongings. The first bedroom with a walk-in closet and a spacious office space reside on the first floor. Upstairs is the luxe primary suite and two other bedrooms, each with their own private bathrooms and walk-in closets.

Modern Farmhouse Plan with Bonus Room Modern Farmhouse Plan with Bonus Room Modern Farmhouse Plan with Bonus Room - Exterior

Modern Farmhouse Plan with Bonus Room Modern Farmhouse Plan with Bonus Room - Main Floor Plan

Above the three-car garage of this modern farmhouse plan is a bonus room. Through the garage is the mudroom and continuing down the hall is the walk-in laundry room and pantry. The hallway from the garage leads to the spacious kitchen and open concept living room.

Contemporary Drive Under House Plan Contemporary Drive Under House Plan Contemporary Drive Under House Plan - Exterior

Contemporary Drive Under House Plan Contemporary Drive Under House Plan - Main Floor Plan

Contemporary Drive Under House Plan Contemporary Drive Under House Plan - Basement Plan

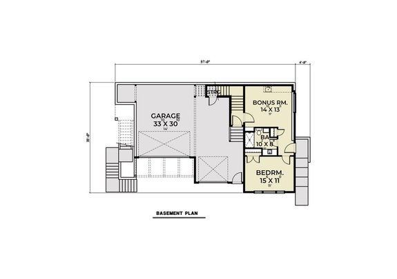
Drive up to the three-car garage of this contemporary hillside house plan. On the same level as the garage, you'll find a bonus room, a bedroom, and a bathroom. Upstairs on the main level are the great room, kitchen, and dining room. The open layout and large windows allow natural light to stream inside. Three additional bedrooms, including the primary suite, are on the second floor. Open the doors to a quaint Juliette balcony in the primary suite and enjoy the view.

Modern Farmhouse with Three-Car Garage Modern Farmhouse with Three-Car Garage Modern Farmhouse with Three-Car Garage - Exterior

Modern Farmhouse with Three-Car Garage Modern Farmhouse with Three-Car Garage - Main Floor Plan

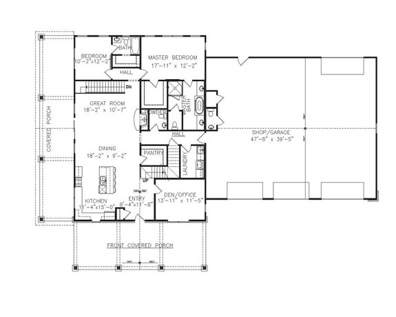
The three-car garage entrance is located on the side of the home, so it does not distract from the farmhouse curb appeal. Entering the home through the garage, you will find the mud room with built-in lockers. The spacious laundry room is directly across the mud room to keep the area clean. There is a private entrance to the laundry room from the walk-in closet in the primary suite. The main living area has a modern layout including vaulted ceilings that make the space feel airy. A rear porch with a wood burning fireplace and outdoor kitchen make this an ideal location for entertaining.

Craftsman House Plan with Garage Craftsman House Plan with Garage Craftsman House Plan with Garage - Exterior

Craftsman House Plan with Garage Craftsman House Plan with Garage - Main Floor Plan

The three-car garage in this Craftsman style house plan includes a huge bay, great for storing an RV or other large items. A hallway leads you from the garage to the main living area of the home. The large front porch welcomes you into the home. The kitchen flows into the dining room and then to the living room area. Continue the flow from the living room to the outdoor covered porch on those warm summer nights. A private primary suite with a spacious walk-in closet is on the main level. A hallway from the primary suite leads you to the second bedroom. Upstairs is the loft area, a third bedroom, and the attic.

Classic Farmhouse Plan Classic Farmhouse Plan Classic Farmhouse Plan - Exterior

Classic Farmhouse Plan Classic Farmhouse Plan - Main Floor Plan

This 4,103-square-foot farmhouse plan will be the location for all outdoor entertaining. Guests will walk up the classic wrap around front porch and enter through the foyer. Those entering the home through the three-car garage will enter the mud room, then will be welcomed into the main living area. An impressive kitchen island looks out to the casual dining area and great room. Using the accordion doors, you can open the space to the grand rear porch. Prepare a meal in the outdoor kitchen and entertain guests as they sit at the bar top. End the night and relax in front of the outdoor fireplace.

Browse our collection of house plans with three-car garages.

Get Our Newsletter

Be the first to see new plans, special offers, and more.

By signing up for our newsletter, you agree to our Terms & Conditions and Privacy Policy, for an account

Blog Subscribe Icon