Blog Home > 15 Luxury House Plans that Wow

The Houseplans Blog

15 Luxury House Plans that Wow

Check out these luxury plans of all sizes!

Hero Image

April 4, 2022

Livabl Brand

Can't find what you're looking for?

Give us a call below or reach out and we’ll make sure to be in contact!

Send Us a Message

By Gabby Torrenti

These plans prove that a luxury house plan doesn’t always mean a mansion, but certainly can if you’re looking for one! From smaller luxury homes to large spaces that are sure to impress, you’re sure to find a luxury plan that will make the perfect forever home. Luxe amenities like private primary suites, outdoor living spaces, and ample bonus space to relax make these homes feel ultra-luxurious, regardless of their square footage.

Want to see all of our luxury house plans? Check out the full collection here.

Contemporary Mediterranean Home Contemporary Mediterranean Home Contemporary Mediterranean Home 930-477 - Front Exterior 15 Luxury House Plans that Wow Contemporary Mediterranean Home 930-477 - Main Floor Plan

This 3,718-square-foot home plan certainly sits on the larger side of this selection of plans, but is chock-full of impressive features. Four bedrooms, a main suite with dual walk-in closets, and private bathrooms for all three guest rooms are just the beginning of this home’s luxe additions. A study with lanai access creates a picturesque place to work from home, while a three-car garage provides lots of space for storage.

Luxe Traditional Farmhouse Exterior - Front Elevation for Traditional House Plan #406-9664 - 4 bed, 3 bath Luxe Traditional Farmhouse 406-9664 - Front Exterior 15 Luxury House Plans that Wow Luxe Traditional Farmhouse 406-9664 - Main Floor Plan
15 Luxury House Plans that Wow Luxe Traditional Farmhouse 406-9664 - Upper Floor Plan

With an impressive porch to welcome guests inside, this home opens with direct access to the living space. Four bedrooms, including a primary suite with its own private hallway, create lots of space for your family, while an outdoor kitchen and living space is perfect for nights spent alfresco with friends. Upstairs, the bonus space offers tons more space to finish as you choose.

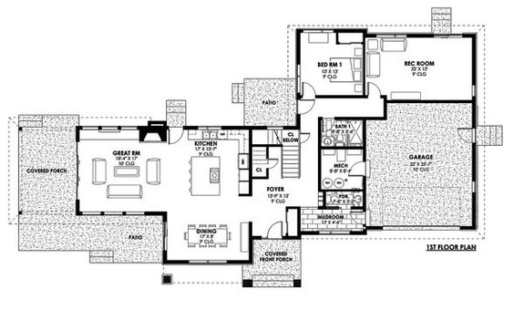
Modern Farmhouse with Lots of Luxurious Features Exterior - Front Elevation for Farmhouse House Plan #51-1160 - 4 bed, 4 bath Modern Farmhouse with Lots of Luxurious Features 51-1160 - Front Exterior 15 Luxury House Plans that Wow Modern Farmhouse with Lots of Luxurious Features 51-1160 - Main Floor Plan
15 Luxury House Plans that Wow Modern Farmhouse with Lots of Luxurious Features 51-1160 - Upper Floor Plan

This modern farmhouse is one of our favorite plans, including four bedrooms and nearly 4,000 square feet of living space. The main level showcases the kitchen, dining room, and great room, as well as a private lounge that invites you to enjoy an after-dinner drink in a cozy setting. The primary suite sits on the left side of the space and includes a full bathroom, while a prep kitchen and pocket office sit on the opposite side of the home. Three bedrooms, a loft, and a media room occupy the second level. The plan is made complete with a rear porch with a fireplace and a three-car garage.

Craftsman Home with Instant Curb Appeal Exterior - Front Elevation for Craftsman House Plan #929-1040 - 3 bed, 2 bath Craftsman Home with Instant Curb Appeal 929-1040 - Front Exterior 15 Luxury House Plans that Wow Craftsman Home with Instant Curb Appeal 929-1040 - Main Floor Plan
15 Luxury House Plans that Wow Craftsman Home with Instant Curb Appeal 929-1040 - Bonus Floor Plan

Immediately impressive from the street with stonework and a large porch, this 2,025-square-foot home offers three bedrooms, an upstairs bonus room, and a screened porch that allows you to relax outdoors regardless of the weather. Other luxe features include a walk-in closet and five-piece bathroom in the primary bedroom, a walk-in pantry, and cathedral ceilings.

Luxury Barn with Country Charm Exterior - Front Elevation for Barndominium House Plan #923-97 - 3 bed, 3.5 bath Luxury Barn with Country Charm 923-97 - Front Exterior 15 Luxury House Plans that Wow Luxury Barn with Country Charm 923-97 - Main Floor Plan
15 Luxury House Plans that Wow Luxury Barn with Country Charm 923-97 - Upper Floor Plan

With over 4,000 square feet of interior living space, this impressive barn stands out. The foyer opens to an inviting great room, while includes a breakfast nook and gas fireplace that’s perfect to cozy up by on chilly nights. The primary suite occupies the rear side of this home, including a full bathroom and walk-in closet, as well as covered porch access. The second level is largely open to below, while the two additional bedrooms and their shared bathroom sit along the rear perimeter of this level. This layout allows for seamless visual flow between floors, making this home feel effortlessly grand.

Clean Contemporary Home Exterior - Front Elevation for Contemporary House Plan #1042-19 - 4 bed, 3.5 bath Clean Contemporary Home 1042-19 - Front Exterior 15 Luxury House Plans that Wow Clean Contemporary Home 1042-19 - Main Floor Plan
15 Luxury House Plans that Wow Clean Contemporary Home 1042-19 - Upper Floor Plan

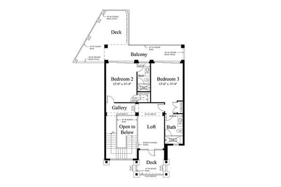
Sleek lines provide instant curb appeal, while this 3,334-square-foot home impresses even more from inside. The main living space includes a kitchen, dining room, and great room, while a guest room and recreation room sit across the space. Upstairs, enjoy your own space in the primary bedroom, which features a walk-in closet and bathroom with dual sinks. Two more bedrooms and another full bathroom sit across this level, with a study in the middle that’s perfect for working from home or simply relaxing. A balcony completes this level, providing a view of your property and complementing the main-level covered porch.

Luxe Modern Farmhouse Exterior - Front Elevation for Farmhouse House Plan #51-1145 - 4 bed, 3.5 bath Luxe Modern Farmhouse 51-1145 - Front Exterior 15 Luxury House Plans that Wow Luxe Modern Farmhouse 51-1145 - Main Floor Plan
15 Luxury House Plans that Wow Luxe Modern Farmhouse 51-1145 - Upper Floor Plan

This space instantly impresses with a front-porch entrance and a three-car garage, the latter leading into the mudroom that sits adjacent to the primary suite. This suite includes a bathroom with a freestanding tub and double sinks, as well as a walk-in closet and simple laundry room access. The rest of this level holds the great room, kitchen and a convenient office, while a rear porch provides a locale to relax with guests. Upstairs, three guest bedrooms and a loft create plenty of space to host visitors, or simply house a large family. Plus, two more bathrooms provide ample space to get ready for the day.

Modern Mediterranean Home Exterior - Front Elevation for Contemporary House Plan #930-20 - 3 bed, 4 bath Modern Mediterranean Home 930-20 - Front Exterior 15 Luxury House Plans that Wow Modern Mediterranean Home 930-20 - Main Floor Plan
15 Luxury House Plans that Wow Modern Mediterranean Home 930-20 - Upper Floor Plan

This contemporary three-bedroom, four-bathroom home offers 3,507 square feet of living space that opens with a luxe foyer. The main level includes a primary suite along the right side that flows onto the rear veranda to create seamless, resort-like indoor/outdoor living. Two walk-in closets and a spa-like bathroom round out this space. The second level features two more bedrooms with their own bathrooms and a relaxing loft, as well as a balcony and two decks. Additional outdoor living space can be found on the main level, thanks to the outdoor kitchen that’s perfect for hosting summer dinner parties.

Modern Mansion Exterior - Front Elevation for Contemporary House Plan #1066-135 - 5 bed, 6.5 bath Modern Mansion 1066-135 - Front Exterior 15 Luxury House Plans that Wow Modern Mansion 1066-135 - Main Floor Plan
15 Luxury House Plans that Wow Modern Mansion 1066-135 - Upper Floor Plan
15 Luxury House Plans that Wow Modern Mansion 1066-135 - Lower Floor Plan

If ‘mansion’ is the first word that pops into your head when you think of a luxury house plan, this is the home for you. Coming in at 6,792 square feet, this home includes five bedrooms and six bathrooms (plus two half baths), ensuring that both your family and close friends can find themselves right at home. The main level includes a great room that borders the kitchen and dining room, a prep kitchen and storage pantry, and access to both a covered and uncovered deck. A suite and office on this level are perfect for hosting guests and working from home, just steps from the main living space. Upstairs, the primary suite sits in its own private wing and includes a five-piece bathroom and a walk-in closet fit for two wardrobes. Across this level, two more bedrooms with their own bathrooms are perfect for kids or visitors, while a bonus space and deck give you lots of room to relax. The basement level is designed with guests in mind, including a suite with its own bathroom, a recreation room, a home gym, and a theater that lets you stream your favorite movie or series with all of your closest friends. When the weather is nice, unwind on the basement-level covered patio, too.

Luxurious Rustic Space Exterior - Front Elevation for Modern House Plan #132-221 - 4 bed, 4.5 bath Luxurious Rustic Space 132-221 - Front Exterior 15 Luxury House Plans that Wow Luxurious Rustic Space 132-221 - Main Floor Plan
15 Luxury House Plans that Wow Luxurious Rustic Space 132-221 - Upper Floor Plan

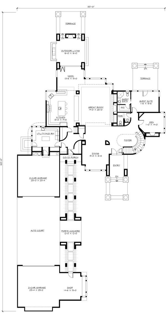
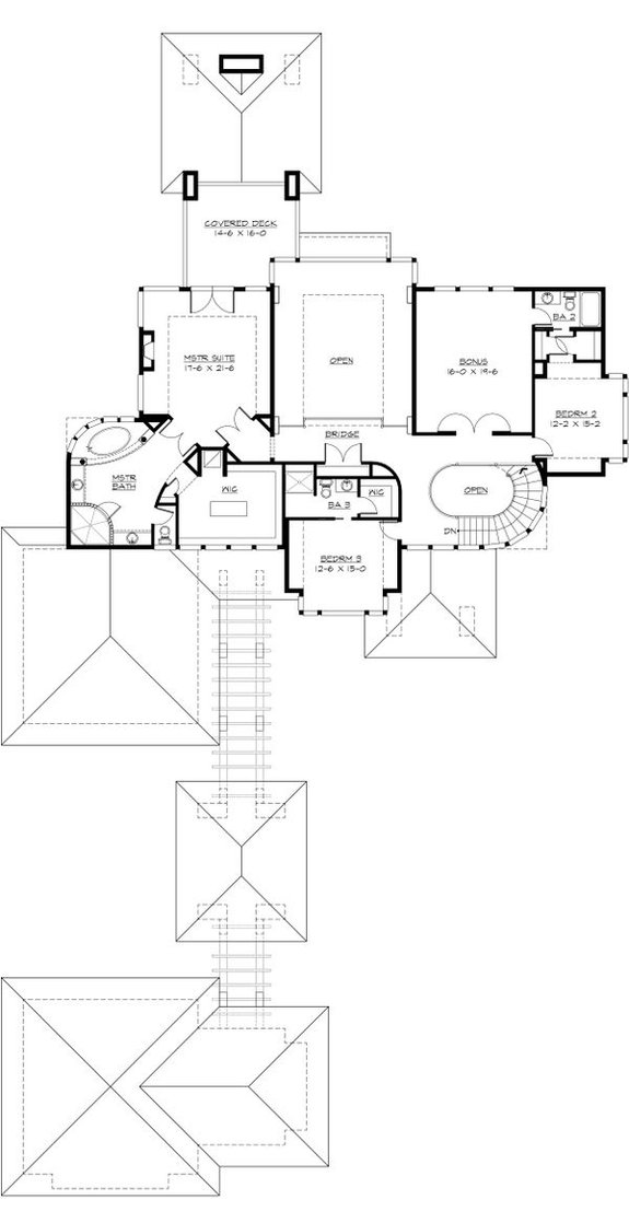
This 4,750-square-foot home opens with a foyer with a grand curving staircase, instantly creating visual appeal. A den and guest suite with its own bathroom sit to the right, while the great room, kitchen, breakfast nook, and outdoor living are located to the left. Upstairs, two more bedrooms and a primary suite surround the center of the level, which is open to below to provide visual flow between floors. A covered deck and bonus room provide more space to relax, allowing you to unwind at the end of a long day.

Sports Court Downstairs Exterior - Front Elevation for Craftsman House Plan #920-24 - 6 bed, 5.5 bath Six-Bedroom Craftsman Home 920-24 - Front Exterior 15 Luxury House Plans that Wow Six-Bedroom Craftsman Home 920-24 - Main Floor Plan
15 Luxury House Plans that Wow Six-Bedroom Craftsman Home 920-24 - Upper Floor Plan
15 Luxury House Plans that Wow Six-Bedroom Craftsman Home 920-24 - Lower Floor Plan

With six bedrooms, two floors, and over 6,600 square feet of living space, this home is sure to offer all of the details you could possibly desire. The main floor features a family room, living room, dining space off the kitchen, and the primary suite, plus a covered deck. The suite on this level includes a walk-in closet and sizable bathroom, creating a luxe escape for homeowners. Upstairs, three more bedrooms, a bonus room, and loft create lots of room for guests to enjoy, while the basement offers two more bedrooms and an impressive array of recreation areas. Check out the sports court!

Contemporary Home with Rustic Details Exterior - Front Elevation for Contemporary House Plan #935-5 - 4 bed, 4 bath Contemporary Home with Rustic Details 935-5 - Front Exterior 15 Luxury House Plans that Wow Contemporary Home with Rustic Details 935-5 - Main Floor Plan
15 Luxury House Plans that Wow Contemporary Home with Rustic Details 935-5 - Upper Floor Plan

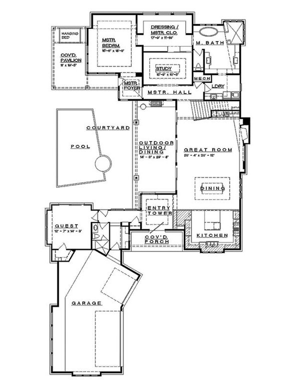
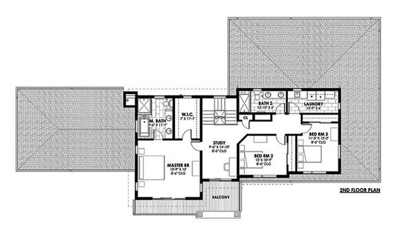
This 4,237-square-foot home offers four bedrooms, four bathrooms, and a convenient three-car garage, creating a spacious family home. On the main floor, you’ll find a great room bordered by the kitchen and primary suite, as well as a study and guest bedroom. Upstairs, two bedroom suites and a loft and media room create the perfect haven for guests or kids to unwind. Take a look at the unique footprint of the home, which wraps around a courtyard to give you private outdoor living space.

Modern Coastal Home Exterior - Front Elevation for Contemporary House Plan #548-25 - 5 bed, 6.5 bath Modern Coastal Home 548-25 - Front Exterior 15 Luxury House Plans that Wow Modern Coastal Home 548-25 - Main Floor Plan
15 Luxury House Plans that Wow Modern Coastal Home 548-25 - Upper Floor Plan

This stunning modern space features just over 6,000 square feet of living space, five bedrooms, and many spaces for relaxing outside. The main level features a great room, kitchen, and dining room, with an expansive primary suite toward the rear. This suite includes two walk-in closets and a luxurious bathroom, as well as access to the outdoor living area. Upstairs, four guest suites create plenty of room for guests, with variety of balconies for relaxing outside.

Craftsman-Style Luxury Home Exterior - Front Elevation for Craftsman House Plan #430-179 - 5 bed, 3.5 bath Craftsman-Style Luxury Home 430-179 - Front Exterior 15 Luxury House Plans that Wow Craftsman-Style Luxury Home 430-179 - Main Floor Plan

With 3,311 square feet of interior living space across one convenient level, this space can easily accommodate a busy family while also creating plenty of room to host guests. Through the foyer, the home opens with a great room that’s bordered by the kitchen and dining room, while also offering access to the rear porch with an outdoor kitchen. The primary suite is located back inside, featuring a bathroom with two vanities and a walk-in closet, while the home’s remaining four bedrooms are located across the home.

Chic, Contemporary Home Exterior - Front Elevation for Contemporary House Plan #892-10 - 4 bed, 3.5 bath Chic, Contemporary Home 892-10 - Front Exterior 15 Luxury House Plans that Wow Chic, Contemporary Home 892-10 - Main Floor Plan
15 Luxury House Plans that Wow Chic, Contemporary Home 892-10 - Upper Floor Plan

This contemporary home opens with a great room, which is flanked by two guest bedrooms and the primary suite to the left and a dining room, kitchen, and flexible activity space to the right. Check out the huge terrace. Upstairs, a den/studio space borders an additional guest room.

Interested in exploring more of our luxury house plans? Check out more of the collection here.

Get Our Newsletter

Be the first to see new plans, special offers, and more.

By signing up for our newsletter, you agree to our Terms & Conditions and Privacy Policy, for an account

Blog Subscribe Icon