By Courtney Pittman
Timeless and modern, barn house designs with open floor plans exude charm, smart amenities, and rustic curb appeal. These on-trend house plans boast open floor plans, large kitchens, contemporary master suites, and much more. Check out some of our most popular barn house designs with open floor plans below.
Browse our collection of barn house designs
Modern Farmhouse with Barn Style
Watch the seasons change on the wraparound porch
Plan 888-13
This modern farmhouse plan is reminiscent of a dairy barn and employs a mix of traditional and modern elements (take a look at these farmhouse decor ideas from Country Living). You’ll love the board-and-batten siding and metal roof. A generous veranda/lanai wraps around the great room to allow for easy indoor-outdoor living. The kitchen gives you a large island that flows directly into the main living areas. Cuddle up next to the warm fireplace in the great room. Work from home? A cool loft on the second level could serve as a home office.
Modern House Design Meets Barn Style
Check out the cool silo on the exterior
Plan 120-268
Classic meets modern house design in this barn house plan. With an open floor plan between the main living spaces, the smart layout was designed for everyday comfort and casual living. Like to relax after a long day of work? A rear lanai boasts plenty of room to stretch out for post-work hangs. The large family room features a cozy fireplace and easy connections to the rear porch via sliding glass doors.
The main-level master suite gives you a spacious walk-in closet, dual sinks, a soaking tub, a walk-in shower, and access to the outdoor living space (read more about main-level master suites in this article from Builder Online). Upstairs, two bedrooms share a Jack-and-Jill bath, while a bonus space can be used in a variety of ways (like a home office or game room).
Country House Design with an Open Floor Plan
Keep things organized in the big mudroom
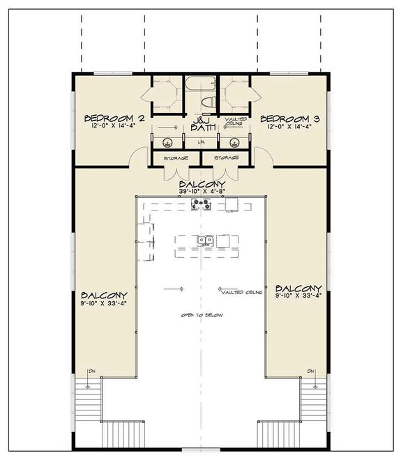
Plan 923-97
This cool house plan delivers tons of country charm with its barn-like appearance. The high ceilings of the open floor plan create an expansive living space and a great gathering place for the family. You’ll love the generous mud/laundry room (complete with commode and shower). The spacious pantry features access to the wraparound porch – making it the perfect place to prepare refreshments when the weather is nice. Head upstairs and you’ll find two additional bedrooms that share a Jack-and-Jill bath and a large balcony that overlooks the main living areas below.
Barn House Design with Large Porches
Warm up next to the fireplace in the great room
Plan 888-15
Clean and open, this 3,374-square-foot barn house design feels modern and fresh. The efficient floor plan gives you a large kitchen island that opens to the great room and dining area, while tons of cabinets keep things organized and tidy.
Nice weather? Deep porches run the length of the house on two sides for easy indoor-outdoor living. Don’t miss the loft-office over the kitchen island.
Thoughtful Touches Throughout
There’s no shortage of indoor-outdoor living with this barn house design
Plan 935-17
This gorgeous, barn house design shows off an open floor plan and a luxurious master suite. Unique and thoughtful details include see-through fireplaces in both the living room and the master suite, a private "owner's courtyard," and a bar. Work from home in the loft on the second level. Check out the wall of windows in the living room.
Barn House Design with a Mudroom
This house plan gives you a bright sunroom
Plan 70-1419
This modern farmhouse plan gives you a wide front porch and big windows. Inside, a central fireplace in the great room draws you into the home, while an open floor plan makes it easy to hang out and relax. Need to stay organized? The large mudroom (with lockers) gives you plenty of room to store items. Upstairs, a third bedroom could be used as a guest suite or a private home office.
Modern and Simple House Plan
Gather around the large kitchen island
Plan 895-108
Simple house plans make it easy to stay within budget. This 1,639-square-foot barn house design keeps things modern and simple, with a big open living area that flows nicely into the kitchen, where everyone will gather around the island. The master suite invites you to unwind in your big shower or pick out an outfit in the large walk-in closet. Check out the generous mudroom just off the two-car garage.
Two-Story House Plan with In-Law Suite
Unwind next to the two-sided fireplace
Plan 70-1488
An in-law suite adds impressive versatility to this elegant barn house design. Because it’s on the main floor, this spacious suite is easy to reach for guests or live-in relatives (like an elderly parent). Other highlights include a two-sided fireplace between the great room and family room (much like these two-sided fireplaces from Homedit), a large island in the kitchen, and a spa-like suite for the master suite upstairs. The wraparound front porch contributes huge curb appeal.
House Design with Modern Must-Haves
Work from home in the private loft
Plan 70-1478
This barn house design showcases plenty of modern must-haves. Lockers and a bench keep things tidy on the way in from the three-car garage, while a kitchen island adds prep space and overlooks the vaulted great room. A loft on the second level provides a private place to work from home if needed.
Country House Plan with Three Bedrooms
Don’t miss the fireplace-warmed porch
Plan 923-130
This modern farmhouse plan features a contemporary open floor plan, with the kitchen at the heart of it all (and featuring a large island). The grilling porch gives you lots of space for sitting outside and watching the seasons change. Here’s a nice detail: the walk-in closet in the master opens directly to the laundry room.


















