Ranch Style House Plan - 3 Beds 2 Baths 2534 Sq/Ft Plan #938-131 - Houseplans.com
Search
REGISTER LOGIN SAVED No Saved Plans CART  Cart Empty
Don't lose your saved plans! Create an account to access your saves whenever you want. See our Terms & Conditions and Privacy Policy.
OR
15% OFF THIS PLAN TODAY
Plan 938-131
Photographs may show modified designs.
Home  >  Style  >  Ranch

Ranch House Plan 938-131

Key Specs


Plan Sq Ft

2534
sq ft

Plan Bedrooms

3
Beds

Plan Bathrooms

2
Baths

Plan Floors

1
Floors

Plan Garages

3
Garages

Questions? Get Personalized Help
Select Plan Set Options
What's included?
$250.75
$33.15
Subtotal
NOW $1508.75
You save $266.25
(15% savings)
Sale ends soon!
Best Price Guaranteed

Or order by phone: 1-800-913-2350
Questions? Get Personalized Help
 

 
Hours:
Ready for Your Call 7 Days a Week
Every Day 7 am - 8:30 pm Eastern

See Terms & Conditions and Privacy Policy.

Thanks for your question.

We will be in touch shortly.

Wow!
Cost to Build Reports
$1.99 with Code
CTB2026 (Limit 1)
Our Cost to Build Report gives you a personalized estimate for building your home, based on your location, plan, and materials.

Residential Construction Guide

Learn Building Basics

This downloadable, 26-page guide is full of diagrams and details about plumbing, electrical, and more.

Key Specs


Plan Sq Ft

2534
sq ft

Plan Bedrooms

3
Beds

Plan Bathrooms

2
Baths

Plan Floors

1
Floors

Plan Garages

3
Garages

Plan Description


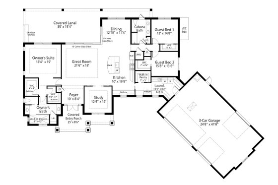
This house plan offers a Craftsman-style elevation that greets you with overlapping gables that stretch the full distance of the front porch. The main entry is supported by Craftsman-style columns resting on a stone water table. The relaxed and warm feeling continues with mixed siding and a standing seam metal roof. This open concept plan is quickly revealed upon walking through the front foyer. Barn doors open to the study, just beyond are the great room, kitchen, and dining areas that are wide open — providing easy living and dining access. The rear glass sliding doors open to a generous covered lanai with an outdoor kitchen, making this area perfect for entertaining. The kitchen provides an eat-at island and convenient access to the dining room, with its corner sliders that completely open up to the outdoors. The refrigerator and freezer frame the front wall with a long counter and cabinets below. A walk-in pantry and laundry room with garage access are all nearby. Two guest bedrooms share a cabana bath, both with walk-in closets. Access the superb main suite through a private entrance. It’s secluded to the other side of the home. Dual walk-in closets provide access to an elegant main bath with large walk-in shower and dual vanities. The angled 3-car garage offers plenty of room for sports vehicles, patio furniture, and more. This space is perfect for the active lifestyle.

This plan can be customized!

Tell us about your desired changes so we can prepare an estimate for the design service. Click the button to submit your request for pricing, or call 1-800-913-2350.

Floor Plans


Floor Plan - Main Floor

houseplans LOGO

BUILDER Advantage Program

PRO BUILDERS

Join the club and save 5% on your first order.
PLUS download exclusive discounts and more.

LEARN MORE

Full Specs & Features


Basic Features

Bedrooms : 3
Baths : 2
Stories: 1
Garages: 3

Dimension

Depth : 77' 1"
Height : 21' 9"
Width : 109' 4"

Area

Total : 2534 sq/ft
Garage : 663 sq/ft
Main Floor : 2534 sq/ft
Patios : 631 sq/ft
Porch : 195 sq/ft
* Total Square Footage typically only includes conditioned space and does not include garages, porches, bonus rooms, or decks.

Ceiling

Main Ceiling : 10'

Roof

Primary Pitch : 6/12
Roof Framing : Truss
Roof Type : hip

Exterior Wall Framing

Framing : 2x6

Bedroom Features

Main Floor Bedrooms
Main Floor Master Bedroom
Split Bedrooms
Walk In Closet

Kitchen Features

Eating Bar
Kitchen Island
Walk In Pantry Cabinet Pantry

Additional Room Features

Den Office Study Computer
Great Room Living Room
Main Floor Laundry

Garage Features

Oversized Garage
Rear Garage
Side Entry Garage
Tandem Garage

Lot Characteristics

Suited For Corner Lot
Suited For View Lot

Outdoor Spaces

Courtyard
Covered Front Porch
Covered Rear Porch
Outdoor Kitchen Grill
Screened Porch

More

Empty Nester
Suited For Vacation Home
Unusual Shape

Energy Efficient Features

Energy Efficient Design

What's included in this plan set


See a sample plan set
Plans are typically drawn to ¼” scale, or smaller for larger homes (3/16" scale to fit on 30 x 42 sheets), and include:
  • Cover Sheet: The cover sheet contains an index of the sheets that will follow in the design development set of plans. It will also include a gray scale elevation or rendering depicting the look of the front of the home, and overall roof plan.
  • Foundation Plan(s): This sheet shows the home’s foundation layout depicting plumbing, footing, support walls, columns, etc., calling out the necessary notes, dimensions and details.
  • Floor Plan(s): Shows a detailed layout of the floor plans with dimensions, notes, call outs and keys relating to sheets with sections and details needed by your builder for construction. These plans will include window and door sizes and locations, and will also show the location of bathroom fixtures.
  • Exterior Elevations: This sheet depicts elevations for all sides of the home, showing dimensions and material notes and exterior detailing where needed.
  • Interior Elevations: This sheet shows conceptual interior wall elevations for the kitchen, bathrooms, utility room as well as built-ins, fireplaces and other unique interior features as per design
  • Overhead Roof Plan(s): The Roof Plan sheet is a general layout of the home’s roof. It is meant as general information for the truss manufacturer and framing contractor. This sheet also contains the location and size of the dropped soffits housing the forced-air chases.
  • Cross Section(s): The Cross Section sheet depicts a section through the home revealing floor, ceiling and roof heights at a strategic location.
  • Electrical Plan(s): The Electrical Plan sheet shows suggested wiring and location of fixtures (lighting, ceiling fans, etc.), switches and outlets. This plan does not contain diagrams detailing how all wiring should be run, or how circuits should be engineered. Your electrician should work out these details.
  • Construction Notes / Detail(s): Shows basic parts and assemblies recommended for the home so the builder can see how things come together.
  • Framing Detail(s): The Second Floor Framing sheet shows important locations of beams and load-bearing conditions, as well as the floor truss spacing and direction. The Second Floor Framing Plan is meant as general information for the truss manufacturer. If included, the framing layout is intended to be a suggested layout only. Design loads and weather conditions vary by region. As a result the size, spacing, and layout of all structural elements in this home design may need approval by a structural engineer or code official based on your specific site location.
  • Wall Section(s): The Wall Section sheet depicts one or more sections of the home’s exterior walls from the foundation to the roof, calling out all materials and construction specifics.
Also included:
(Ducts in Conditioned Space DICS) This designer offers this information for those seeking truly high-performance homes.

The reflected ceiling plan shows all ceiling heights, treatments, and details including necessary notes.
* See important information before purchasing

Pricing


Plan Options

PDF Set

Best Value!
$1508.75
PDF plan sets are best for fast electronic delivery and inexpensive local printing.

CAD Set

$1912.50
For use by design professionals to make substantial changes to your house plan and inexpensive local printing.

Foundation Options

Crawlspace

$0.00
Ideal for semi-sloped or level lot, home can be built off of grade, typically 18” - 48”.

*Options with a fee may take time to prepare. Please call to confirm.

Framing Options

Wood 2x6

$0.00
Wood 2x6 Exterior Walls

*Options with a fee may take time to prepare. Please call to confirm.

Additional Options

Comprehensive Material List

$250.75
A complete list of building supplies needed to construct the infrastructure of your new house, plus an overlay of materials shown directly on your PDF (foundation to rooftop with interior and exterior materials), and a detailed, itemized door and window schedule showing all sizes and types. Please allow 5-7 Business Days for completion. Note, the Comprehensive list is only available with a PDF purchase. The Comprehensive list can be ordered no matter what additional plan options you have selected.

Construction Guide

$33.15
Educate yourself about basic building ideas with these four detailed diagrams that discuss electrical, plumbing, mechanical, and structural topics.

*Options with a fee may take time to prepare. Please call to confirm.

Unless you buy an “unlimited” plan set or a multi-use license you may only build one home from a set of plans. Please call to verify if you intend to build more than once. Plan licenses are non-transferable and cannot be resold.

Other Plans By This Designer

See all plans by
this designer

Need help? Let our friendly experts help you find the perfect plan!

Contact us now for a free consultation.