Prairie Style House Plan - 5 Beds 4 Baths 6734 Sq/Ft Plan #454-10 - Houseplans.com
Search
REGISTER LOGIN SAVED No Saved Plans CART  Cart Empty
Don't lose your saved plans! Create an account to access your saves whenever you want. See our Terms & Conditions and Privacy Policy.
OR
15% OFF FOR THE FIRST 25 CUSTOMERS
Home  >  Style  >  Prairie

Prairie House Plan 454-10

Key Specs


Plan Sq Ft

6734
sq ft

Plan Bedrooms

5
Beds

Plan Bathrooms

4
Baths

Plan Floors

2
Floors

Plan Garages

2
Garages

Questions? Get Personalized Help
Select Plan Set Options
What's included?
$85.00
$33.15
Subtotal
NOW $5950.00
You save $1050.00
(15% savings)
Sale ends soon!
Best Price Guaranteed

Or order by phone: 1-800-913-2350
Questions? Get Personalized Help
 

 
Hours:
Ready for Your Call 7 Days a Week
Every Day 7 am - 8:30 pm Eastern

See Terms & Conditions and Privacy Policy.

Thanks for your question.

We will be in touch shortly.

Wow!
Cost to Build Reports
$1.99 with Code
CTB2026 (Limit 1)
Our Cost to Build Report gives you a personalized estimate for building your home, based on your location, plan, and materials.

Residential Construction Guide

Learn Building Basics

This downloadable, 26-page guide is full of diagrams and details about plumbing, electrical, and more.

Key Specs


Plan Sq Ft

6734
sq ft

Plan Bedrooms

5
Beds

Plan Bathrooms

4
Baths

Plan Floors

2
Floors

Plan Garages

2
Garages

Plan Description


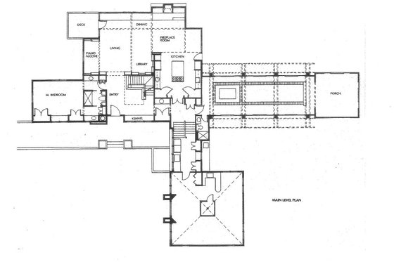
Breezeway This prairie style home designed by Sarah Susanka projects horizontal, clean lined elevations that mimic a prairie landscape. The home features voluminous light filled spaces and rich exposed beam woodwork that reflect craftsman influences and draw you in, while letting you glimpse into one area from another at all times. The openness and clean architectural lines characterize Susanka’s designs, providing volume and light plus intimacy all at the same time. Living room, dining room and kitchen areas blend together and feed into each other. The kitchen has a large center island with cooktop, book shelves, and two pantries. There are abundant cupboards and lots of counter space. Designed with aging in place in mind, the master bedroom suite is on the main floor of the house. There is a private four-season porch/sunroom with sliding doors which can be opened to create a breezeway. Connecting the sunroom porch to the house is a beautiful indoor spa and pool, a retreat which can be enjoyed year-round while watching the seasons change. The lower level is a walkout, and includes three bedrooms, two baths and an exercise room. Upstairs, an open loft with family room and study overlooks the main floor. The entire house has many decks which provide indoor/outdoor living experiences. There is an attached garage, providing easy access to the kitchen and utility areas, and above it is a wonderful live-in apartment. PHOTOGRAPHS BY Doug Evans, Obeo Inc.

This plan can be customized!

Tell us about your desired changes so we can prepare an estimate for the design service. Click the button to submit your request for pricing, or call 1-800-913-2350.

Floor Plans


Floor Plan - Lower Floor

houseplans LOGO

BUILDER Advantage Program

PRO BUILDERS

Join the club and save 5% on your first order.
PLUS download exclusive discounts and more.

LEARN MORE

Floor Plan - Main Floor

Floor Plan - Upper Floor

Full Specs & Features


Basic Features

Bedrooms : 5
Baths : 4
Stories: 2
Garages: 2

Dimension

Depth : 91'
Height : 28'
Width : 123'

Area

Total : 6734 sq/ft
Bonus : 790 sq/ft
Lower Floor : 1782 sq/ft
Main Floor : 3014 sq/ft
Porch : 291 sq/ft
Upper Floor : 1119 sq/ft
* Total Square Footage typically only includes conditioned space and does not include garages, porches, bonus rooms, or decks.

Ceiling

Ceiling Details : Paul's room - (Unfinished) = 790 sq ft.

Roof

Primary Pitch : 5:12

Exterior Wall Framing

Framing : 2 x 6

Bedroom Features

Main Floor Master Bedroom
Split Bedrooms

Kitchen Features

Kitchen Island
Walk In Pantry Cabinet Pantry

Additional Room Features

Great Room Living Room
Main Floor Laundry
Play Flex Room
Sunroom

Outdoor Spaces

Covered Front Porch
Screened Porch

What's included in this plan set


See a sample plan set

All plans are drawn at ¼” scale or larger and include :

  • Foundation Plan: This page shows all necessary notations and dimensions including support columns, walls, and excavated/unexcavated areas.
  • Exterior Elevations: Views of the home from all four sides showing exterior materials and measurements.
  • Floor Plan(s): Detailed plans for each level showing room dimensions, wall partitions, windows and doors, etc.
  • Cross Section: A slice of the home from roof to foundation, showing important details like stairs and wall construction.
  • Overhead Roof Plan(s): A view of the home from above showing roof pitch, peaks, valleys, and other details.
  • Construction Notes and Details: Shows the builder how things come together, like walls, the chimney, insulation, and more.
* See important information before purchasing

Pricing


Plan Options

5 Copy Set

$5950.00
5 printed plan sets mailed to you.

PDF Set

Best Value!
$5950.00
PDF plan sets are best for fast electronic delivery and inexpensive local printing.

Reproducible Set

$5950.00
For inexpensive local printing / making minor adjustments by hand. 1 printed set, typically on Bond paper.

CAD Set

$7225.00
For use by design professionals to make substantial changes to your house plan and inexpensive local printing.

Foundation Options

Daylight Basement

$0.00
Ideal for sloping lot, lower level of home partially underground.

*Options with a fee may take time to prepare. Please call to confirm.

Additional Options

Audio Video Design

$85.00
Receive an overlay sheet with suggested placement of audio and video components.

Construction Guide

$33.15
Educate yourself about basic building ideas with these four detailed diagrams that discuss electrical, plumbing, mechanical, and structural topics.

*Options with a fee may take time to prepare. Please call to confirm.

Unless you buy an “unlimited” plan set or a multi-use license you may only build one home from a set of plans. Please call to verify if you intend to build more than once. Plan licenses are non-transferable and cannot be resold.

Meet the Designer

Sarah Susanka Architect

Sarah Susanka Architect - Houseplans.com
“'Not So Big®' puts the emphasis on quality rather than quantity and is designed to fit the way we really live today. It's a message that's being embraced now more than ever, and it's wonderful to see so many people come to the realization that a house doesn't have to be bigger to be better.” Award-winning architect and best selling author Sarah Susanka is the J K Rowling of home design. She has brought her practical, less-can-be-more brand of magic to the world of architectural home plans. A member of the College of Fellows of the American Institute of Architects and a Senior Fellow of the Design Futures Council, Sarah was born in Kent, England and lives in North Carolina. Hailed as an innovator by Fast Company, Newsweek, and US News and World Report, she received the Anne Morrow Lindbergh Award from the Lindbergh Foundation for outstanding individual achievement, and Builder Magazine honored Sarah as one of their 30 Top Innovators who have changed the face of residential construction. Sarah Susanka's influential books include The Not So Big House (Taunton, 1999), Home By Design (Taunton, 2004), The Not So Big Life: Making Room for What Really Matters (Random House, 2007), and Not So Big Remodeling (Taunton, 2009). She has lectured widely and appeared on numerous television and radio programs including Oprah, Charlie Rose, and Diane Rehm. She is showing a new generation of homeowners, builders, and developers how to "build better not bigger."

Browse Similar Plans

Need help? Let our friendly experts help you find the perfect plan!

Contact us now for a free consultation.