Blog Home > 3 Car Garage Plans

The Houseplans Blog

3 Car Garage Plans

Explore the full collection of garage plans.

Hero Image

May 8, 2023

Livabl Brand

Can't find what you're looking for?

Give us a call below or reach out and we’ll make sure to be in contact!

Send Us a Message

By Devin Uriarte

Adding a detached garage to a property is a great option when you're looking for additional storage. These three-car garage plans offer lots of additional storage. Many of these three-car garage plans feature apartments above that can be used to house guests (or become your ideal tiny home).

Check Out Over 1,000 Garage Plans Here.

Country Style Garage Country Style Garage Country Style Garage - Front Exterior

Country Style Garage Country Style Garage - Main Floor

Country Style Garage Country Style Garage - Second Floor

Country Style Garage Country Style Garage - Third Floor

What sets this country style garage apart is the classic barn curb appeal and a unique layout. Lovely sliding barn doors hide the three-car garage along with a thoughtful storage nook. The three-car garage is sandwiched by sleeping and office spaces. There are two private offices on the main level with separate entrances to the outside. In the sleeping quarters, there’s a full bathroom along with two bedrooms. Another surprise from this country garage is the cozy apartment on the third floor. The second floor features lots of storage space and a game room.

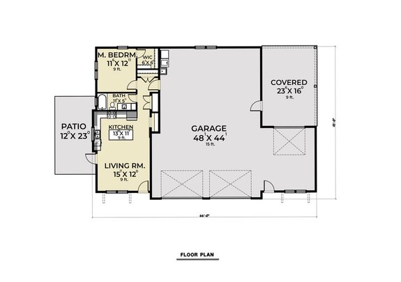
Owners can enjoy the open floor plan in the main living room, which leads out to the covered deck. There’s a spacious kitchen with plenty of counter space and a prep island. The primary suite has a private full bathroom and a walk-in closet.

Barndominium Style Garage Barndominium Style Garage Barndominium Style Garage - Front Exterior

Barndominium Style Garage Barndominium Style Garage - Main Floor

Check out this barndo-style garage plan. Looking at this plan from the outside, one would never be able to guess that a studio with modern amenities resides inside. In the studio, the space is modern and bright from the open floor plan. Owners can prepare meals at the kitchen island while hosting guests in the living room. Down the hallway is a bedroom with a walk-in closet.

Farmhouse RV Garage Farmhouse RV Garage Farmhouse RV Garage - Front Exterior

Farmhouse RV Garage Farmhouse RV Garage - Main Floor

Farmhouse RV Garage Farmhouse RV Garage - Upper Floor

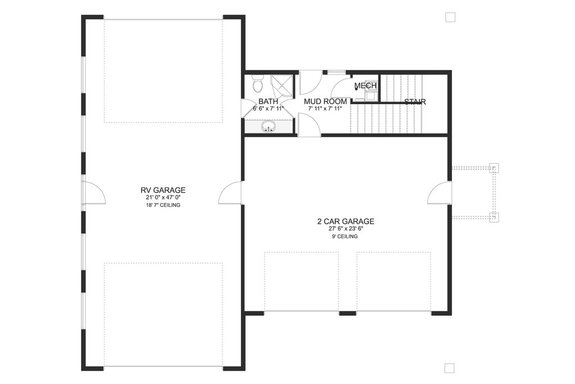
Here's a stylish garage plan with space for your RV, as well as a comfortable apartment upstairs. On the main level there is a two-car garage and an attached recreational vehicle garage. Upstairs in the apartment, owners can enjoy the spacious and bright living space that opens to the deck. The cozy kitchen has an island with a built-in bar top where guests can sit and enjoy meals. The bedroom has a luxurious vibe as it features a walk-in closet and French doors that lead to a private deck.

Cabin Style Garage Plan Cabin Style Garage Plan Cabin Style Garage Plan - Front Exterior

Cabin Style Garage Plan Cabin Style Garage Plan - Main Floor

Cabin Style Garage Plan Cabin Style Garage Plan - Upper Floor

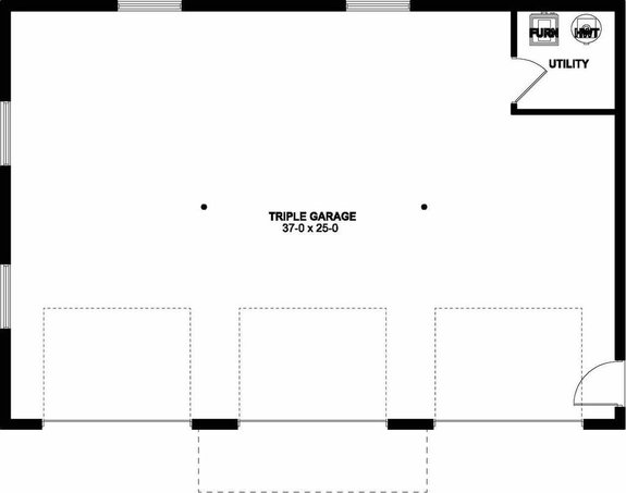
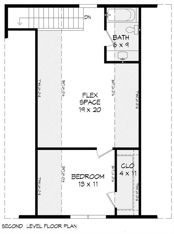
This rustic cabin style garage plan would be a great addition to any vacation home. Two large garage doors open to the three-car garage on the main floor. Before heading upstairs, there’s a mud room with a built-in bench to keep the space clean. The second floor has a large flex space that could be used as an entertainment room or a storage space. This three-car garage can be used to host guests as there is a bedroom with a walk-in closet and a bathroom.

Traditional Garage Traditional Garage Traditional Garage - Front Exterior

Traditional Garage Traditional Garage - Main Floor

Traditional Garage Traditional Garage - Upper Floor

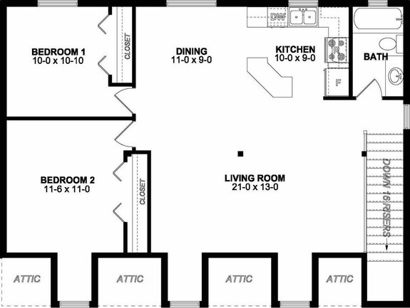
This traditional style garage plan is home to a spacious apartment upstairs that can easily be used as a guesthouse. In addition to the apartment, this garage plan can fit up to three cars on the main floor. There’s even a washroom and a nook for the washer and dryer. Upstairs in the apartment there’s an open living space with room for a dining area. The kitchen features an island that’s placed at an angle to make entertainment more seamless. There are two bedrooms, with one slightly larger due to the cozy window nook.

3 Car Garage with Bonus Room 3 Car Garage with Bonus Room 3 Car Garage with Bonus Room - Front Exterior

3 Car Garage with Bonus Room 3 Car Garage with Bonus Room - Main Floor

3 Car Garage with Bonus Room 3 Car Garage with Bonus Room - Upper Floor

This three-car garage boasts classic farmhouse style. The exposed beams on the exterior are a thoughtful design and add to the overall charm. On the main floor there is a spacious, split garage with two convenient storage closets. Upstairs there’s even more storage space in the attic. The bonus room on the second floor can be used as a private office or an entertainment space since there is a bathroom.

3 Car Garage with Apartment 3 Car Garage with Apartment 3 Car Garage with Apartment - Front Exterior

3 Car Garage with Apartment 3 Car Garage with Apartment - Main Floor

3 Car Garage with Apartment 3 Car Garage with Apartment - Upper Floor

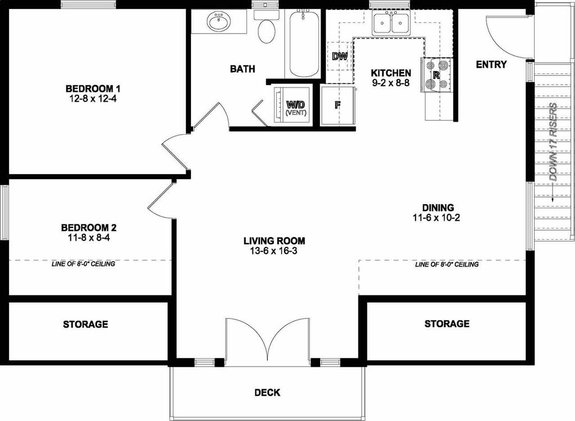
There is a cozy and spacious apartment above this garage plan. Below on the main floor, garage doors open to the three-car garage. To brighten up the two-bedroom apartment upstairs, there are French doors that open to the charming deck.

Craftsman Style Garage Plan Craftsman Style Garage Plan Craftsman Style Garage Plan - Front Exterior

Craftsman Style Garage Plan Craftsman Style Garage Plan - Main Floor

Craftsman Style Garage Plan Craftsman Style Garage Plan - Upper Floor

This Craftsman style garage plan would be an excellent addition to a home as a convenient guesthouse. The three-car garage sits on the main level along with the staircase up to the apartment. In the apartment, there is a fireplace in the corner of the living room that adds to the cozy vibe. Next to the window there’s a charming seat with built-in storage below. The kitchen features an extended countertop that can seat two guests along with a pantry for additional storage. There are two sliding doors in the bathroom with one leading into the primary suite.

Check Out Over 1,000 Garage Plans Here.

Get Our Newsletter

Be the first to see new plans, special offers, and more.

By signing up for our newsletter, you agree to our Terms & Conditions and Privacy Policy, for an account

Blog Subscribe Icon