Blog Home > Our Favorite 13 Barndominium Plans

The Houseplans Blog

Our Favorite 13 Barndominium Plans

See why barndominium plans are hot right now.

Hero Image

April 11, 2022

Livabl Brand

Can't find what you're looking for?

Give us a call below or reach out and we’ll make sure to be in contact!

Send Us a Message

By Courtney Pittman

Barndominium plans are hot right now – and we are here for it. With open floor plans and smart amenities, these home designs show off cool contemporary vibes. While the term barndominium is often used to refer to a metal building, most of these house plans feature traditional wood framing. Here are 13 of our favorite barndominium plans that boast rustic curb appeal and modern interiors.

See more barndominium plans here.

Impressive Curb Appeal

Impressive Curb Appeal Impressive Curb Appeal 120-275 - Front Exterior

Impressive Curb Appeal Impressive Curb Appeal 120-275 - Main Floor Plan

Impressive Curb Appeal Impressive Curb Appeal 120-275 - Upper Floor Plan

This barndominium house plan shows off impressive curb appeal with sleek siding and a wide front porch. Note that this is a bolt-up metal building structure. Inside, the floor plan is designed to be open and functional with one big gathering space between the island kitchen and the family room. Sliding doors to the back porch promote indoor/outdoor living (check out these indoor/outdoor living ideas from DigsDigs)

The primary suite gives you a large walk-in closet, which includes a safe room, and an extra-spacious shower. Check out the trendy barn door in the utility area.

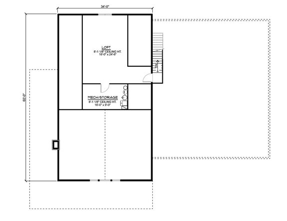
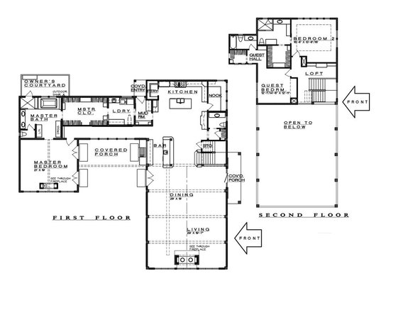
Timeless and Modern Barndominium Plan

Timeless and Modern Barndominium Plan Timeless and Modern Barndominium Plan 1064-149 - Front Exterior

Timeless and Modern Barndominium Plan Timeless and Modern Barndominium Plan 1064-149 - Main Floor Plan

Timeless and Modern Barndominium Plan Timeless and Modern Barndominium Plan 1064-149 - Upper Floor Plan

Here’s a barndo-style house plan that strikes a nice balance between timeless and modern style. The wraparound porch delivers a welcoming vibe, while board-and-batten siding adds farmhouse flair. The open kitchen offers a large island and is just steps away from the mudroom.

You’ll love the primary suite’s generous walk-in closet and convenient access to the laundry room. Don’t miss the versatile loft on the second level.

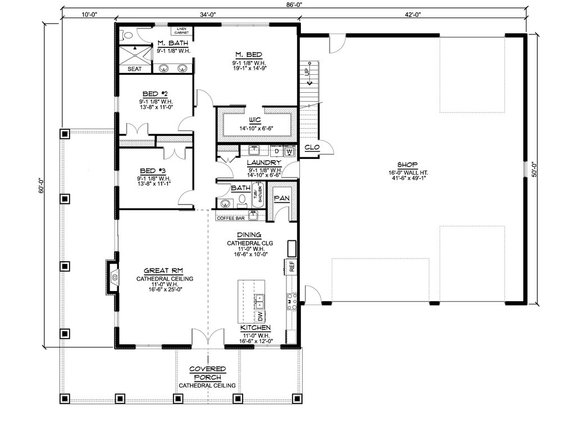
Farmhouse with Simple Open Layout

Farmhouse with Simple Open Layout Farmhouse with Simple Open Layout 932-546 - Front Exterior

Farmhouse with Simple Open Layout Farmhouse with Simple Open Layout 932-546 - Main Floor Plan

Farmhouse with Simple Open Layout Farmhouse with Simple Open Layout 932-546 - Upper Floor Plan

A handsome façade with a gabled roof, board-and-batten siding, and a wide front porch gives you charming curb appeal. The open-concept floor plan places the great room, the island kitchen, and the dining area at the front of the house plan. The rear porch adds a feeling of connection to the outdoors.

Note the vaulted ceiling in the main living area and the shared bathroom with two sinks between the two secondary bedrooms. Meanwhile, the primary suite gives you a five-piece private bathroom.

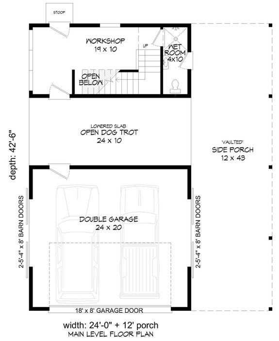
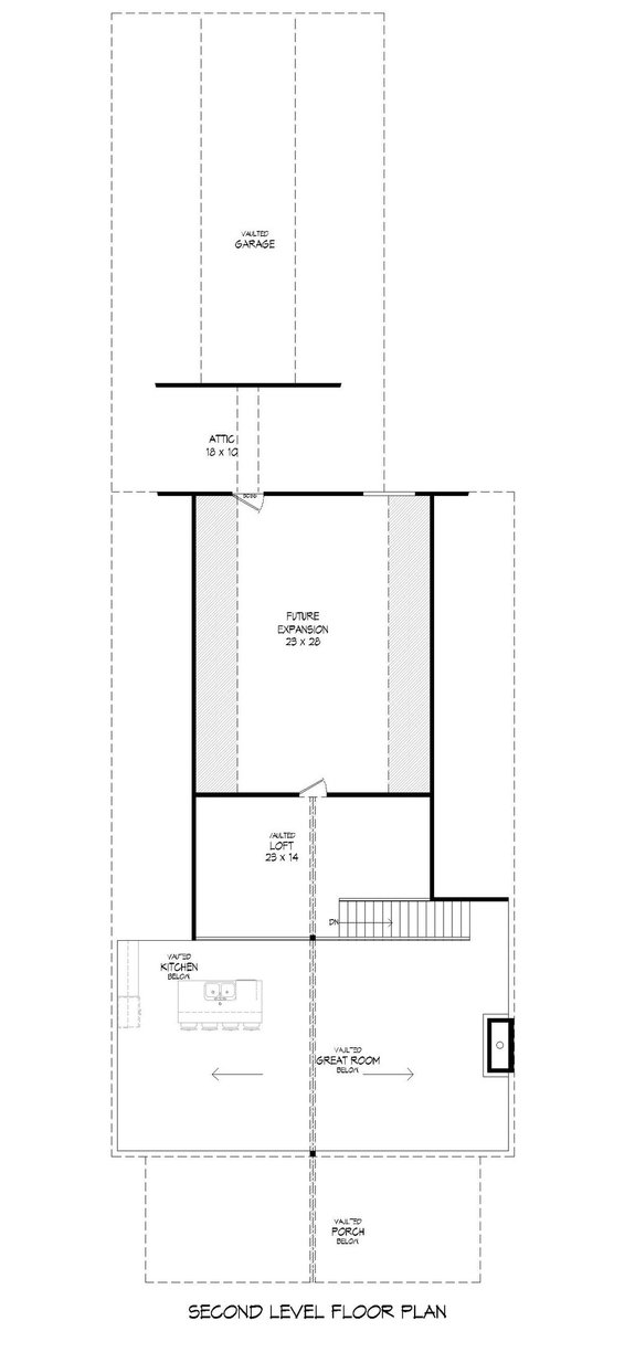
Barndominium Garage Plan

Barndominium Garage Plan Barndominium Garage Plan 932-355 - Front Exterior

Barndominium Garage Plan Barndominium Garage Plan 932-355 - Main Floor Plan

Barndominium Garage Plan Barndominium Garage Plan 932-355 - Upper Floor Plan

Looking for extra space? You’ll find plenty of room for storage with this barndominium garage plan. The open dogtrot (sometimes referred to as a breezeway) separates the two-car garage and the handy workshop on the first level (which includes a bathroom). Don’t miss the second workshop and vaulted bonus area upstairs (maximize your bonus space with these ideas from HGTV)

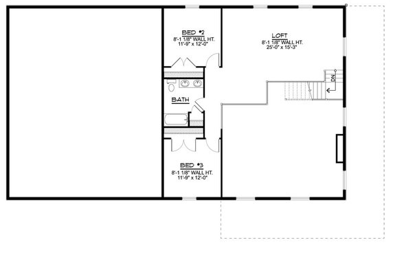
Mudroom with Lockers

Mudroom with Lockers Mudroom with Lockers 430-259 - Front Exterior

Mudroom with Lockers Mudroom with Lockers 430-259 - Main Floor Plan

Mudroom with Lockers Mudroom with Lockers 430-259 - Upper Floor Plan

Rustic and modern, this four-bedroom house plan grabs your attention with a striking barn-like exterior. The generous kitchen island invites casual meals, while the open dining area will work well for formal occasions. At the front of the plan, the airy great room boasts a fireplace and handy built-ins. The primary bedroom is conveniently located on the main level and gives you a big tub, a separate shower, and a generous walk-in closet.

An upstairs loft and fourth bedroom suite round out the second level. Other thoughtful details include a mudroom with lockers, a roomy laundry room, and a wide rear porch.

Seamless Flow with High Ceilings

Seamless Flow with High Ceilings Seamless Flow with High Ceilings 120-268 - Front Exterior

Seamless Flow with High Ceilings Seamless Flow with High Ceilings 120-268 - Main Floor Plan

Seamless Flow with High Ceilings Seamless Flow with High Ceilings 120-268 - Upper Floor Plan

Modern meets country style with this barndominium plan. Designed to be open and functional, the island kitchen flows seamlessly into the dining area and family room. In the primary suite, a walk-in closet provides plenty of storage space and opens directly to the laundry room. High ceilings add volume throughout the home.

Upstairs, two bedrooms share a bathroom, while a bonus space can be used in a variety of ways. Check out the large outdoor living space at the rear of the plan.

Versatile Studio Space

Versatile Studio Space Versatile Studio Space 932-521 - Front Exterior

Versatile Studio Space Versatile Studio Space 932-521 - Main Floor Plan

Versatile Studio Space Versatile Studio Space 932-521 - Upper Floor Plan

Stunning barn doors and large windows make this barn-inspired plan stand out. Inside, the open kitchen is the center of attention with an extra-large island (that can seat up to seven) and a walk-in pantry. The vaulted two-story living and dining area will feel bright and airy. Located on the right side of the plan, a vaulted studio/exercise room can be used in a variety of ways. Organization is made easy thanks to the spacious mudroom.

Welcoming Wraparound Porch

Welcoming Wraparound Porch Welcoming Wraparound Porch 1064-111 - Front Exterior

Welcoming Wraparound Porch Welcoming Wraparound Porch 1064-111 - Main Floor Plan

Welcoming Wraparound Porch Welcoming Wraparound Porch 1064-111 - Upper Floor Plan

Here’s a three-bedroom house plan that boasts a welcoming wraparound porch and a metal roof. Inside, the large living/dining area features a fireplace and opens to the kitchen. A home office offers privacy near the back of the plan. Conveniently located on the main level, the primary suite gives you a walk-in closet and dual sinks.

Two bedrooms, a full bath, and a versatile loft round out the second level.

See-Through Fireplaces Throughout

See-Through Fireplaces Throughout See-Through Fireplaces Throughout 935-17 - Front Exterior

See-Through Fireplaces Throughout See-Through Fireplaces Throughout 935-17 - Main and Upper Floor Plans

A seamless transition between the main living spaces creates modern flow in this barndo-style plan. Unique and thoughtful details include see-through fireplaces in both the living room and the primary suite. Large windows bring in light and add a special touch between the interior and exterior.

The primary suite offers direct access to the laundry room and the covered porch. Need more space? Check out the guest suite on the second level.

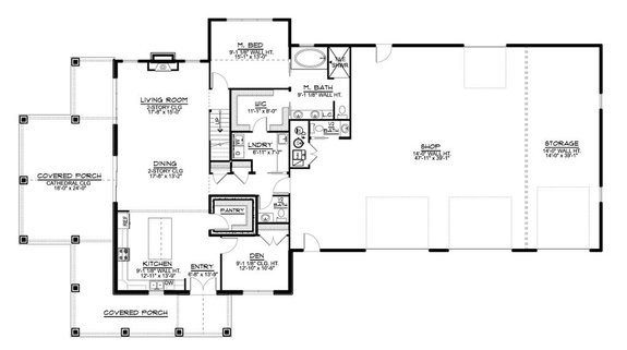
Barndo Plan with Compact Footprint

Barndo Plan with Compact Footprint Barndo Plan with Compact Footprint 124-944 - Front Exterior

Barndo Plan with Compact Footprint Barndo Plan with Compact Footprint 124-944 - Main Floor Plan

Barndo Plan with Compact Footprint Barndo Plan with Compact Footprint 124-944 - Upper Floor Plan

A compact footprint makes this barndominium plan a stylish choice for a smaller lot. The first level gives you a two-car garage and plenty of space for storage. Upstairs, the country kitchen opens to the living room for a relaxing vibe. Two bedrooms and a bathroom also reside on this level.

Work from home? A small nook or closet off the kitchen offers privacy and gives you space to sit and take meetings.

Affordable Barndominium Plan

Affordable Barndominium Plan Affordable Barndominium Plan 124-1263 - Front Exterior

Affordable Barndominium Plan Affordable Barndominium Plan 124-1263 - Main Floor Plan

Affordable Barndominium Plan Affordable Barndominium Plan 124-1263 - Upper Floor Plan

Affordable and stylish, this small house plan is easy on the eyes…and the wallet. Inside, the kitchen shows off an island that overlooks the vaulted great room. Near the front of the plan, the primary suite sports a relaxing tub and a separate shower.

The covered deck invites you to hang out and enjoy the day. A full bath with a walk-in closet sits on the second level, along with a flexible loft space.

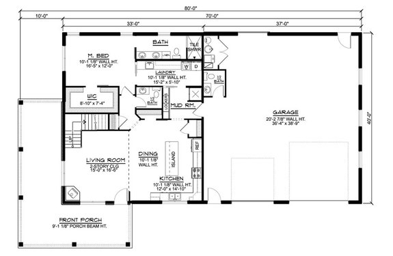
Relaxed Floor Plan with Extra Storage

Relaxed Floor Plan with Extra Storage Relaxed Floor Plan with Extra Storage 1064-110 - Front Exterior

Relaxed Floor Plan with Extra Storage Relaxed Floor Plan with Extra Storage 1064-110 - Main Floor Plan

Relaxed Floor Plan with Extra Storage Relaxed Floor Plan with Extra Storage 1064-110 - Upper Floor Plan

From the dining space, sliding glass doors open to the covered wraparound porch. The relaxed layout encourages hanging out at the big kitchen island or in the two-story living room. For extra convenience, the impressive primary suite sits near the back of the floor plan and offers direct access to the laundry room. The enormous garage includes a shop area and gives you even more storage space.

Barn Style with Loft

Barn Style with Loft Barn Style with Loft 1064-148 - Front Exterior

Barn Style with Loft Barn Style with Loft 1064-148 - Main Floor Plan

Barn Style with Loft Barn Style with Loft 1064-148 - Upper Floor Plan

Delivering style in just 2,039 square feet, this barndominium plan gives you luxurious details and a modern layout. The great room opens to the generous island kitchen and the wraparound front porch. The luxurious primary suite is located near the back of the plan for extra privacy and gives you a sizeable closet. Upstairs, a loft presents all kinds of possibilities.

Want to see more barndominium plans? Check out the collection here.

Get Our Newsletter

Be the first to see new plans, special offers, and more.

By signing up for our newsletter, you agree to our Terms & Conditions and Privacy Policy, for an account

Blog Subscribe Icon