Don't lose your saved plans! 
Create an account to access your saves whenever you want. See our Terms & Conditions and Privacy Policy.
OR

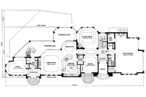
Mediterranean House Plan 27-214 4802 Sq Ft, 4 Bed, 4.5 Bath, 2 Floor, 3 Garage

Key Specs
  • 4
    Beds
  • 4.5
    Baths
  • 2
    Floors
  • 3
    Garages
  • 4802
    Square Feet
This mediterranean design floor plan is 4802 sq ft and has 4 bedrooms and 4.5 bathrooms.

Questions on this plan?

New to the process and looking for some help to kick things off? Let us know a bit about your plans and we’ll be happy to help.

Budget & Customization Tools

Modify icon
Customize this Plan
Tell us about your desired changes and we can prepare an estimate.
Cost to Build icon
Cost to Build Report
A personalized estimate based on your location, plan, & materials.
Cost to Build icon
Residential Construction Guide
This downloadable, 26-page guide is full of diagrams and details about plumbing, electrical, and more.

Full specs & Features

Basic Features

Bedrooms: 4
Baths: 4.5
Stories: 2
Garages: 3

Dimension

Depth: 44'
Height: 35'
Width: 119'

Area

Total: 4802 sq/ft
Main Floor: 2469 sq/ft
Upper Floor: 2333 sq/ft
* Total Square Footage typically only includes conditioned space and does not include garages, porches, bonus rooms, or decks.

Roof

Primary Pitch: 5:12

Exterior Wall Framing

Framing: Concrete block

Bedroom Features

Guest Suite
Upstairs Master Bedrooms
Walk In Closet

Kitchen Features

Breakfast Nook
Butler's Pantry
Eating Bar
Kitchen Island

Additional Room Features

Den Office Study Computer
Family Room Keeping Room
Loft
Master Sitting Area
Storage Area
Upstairs Laundry

Garage Features

Oversized Garage
Side Entry Garage

Lot Characteristics

Suited For Corner Lot
Suited For View Lot

Outdoor Spaces

Balcony
Covered Rear Porch

What's Included

Please call if building in Lee and Collier Counties of Florida, restrictions apply.



Plans are typically drawn to ¼” scale and include:
  • Foundation Plan(s): Please note: This design will not come with a foundation. The foundation should be created by a local structural engineer. Foundations and structural engineering will vary from region to region across the USA and globally. Foundations depend on your soil conditions at your specific property that you want to build one of our homes. Plans from this designer do not come with foundation / structural engineering plans so it is highly recommended that you hire a local structural engineer to provide those details for you.
  • Floor Plan(s): Includes: Door and Window Sizes, Completely Dimensioned Floor Plan, Room Labels and Interior Room Sizes, Electrical Layouts, Building Section Markers, All Electrical Outlets, Fixtures, and Switching, Floor and Deck Joist Size and Spacing, Rough-in Plumbing Location (if applicable), Mechanical Equipment Locations (if applicable), Electrical Locations (if applicable).
  • Exterior Elevations: Include: Material Labels, Floor-to-Floor Heights and Roof Slope Indicators.
  • Interior Elevations: Include: Material Labels, Floor-to-Floor Heights and Roof Slope Indicators.
  • Overhead Roof Plan(s): Include: All Beam and Header Heights and Locations, All Hips, Gables, Ridges and Valleys, Building Section Markers
  • Cross Section(s): A slice of the home from roof to foundation, showing relationships between floors, roof, and foundation.
  • Construction Notes and Detail(s): Shows basic parts and assemblies recommended for the home so the builder can see how things come together.
  • Wall Section(s): Detailed drawings showing wall connections, from foundation to the roof, wall connections to foundation, window installation, siding installation, stair details, and more.
Please note: This design will not come with a foundation. The foundation should be created by a local structural engineer.

FAQs

Are designs on Houseplans ready to submit to my building department for permitting?

It depends on where you're building. Our plans contain enough information for a professional builder to construct your home, but your local government may require additional information before permitting. We strongly advise that you talk with your builder before you get started. If you are building for yourself, we recommend visiting your local building department to start your diligence. Read more here.

Can I make changes to a plan?

Absolutely! Our modification service allows you to customize almost anything - whether it's adding an extra garage bay, adjusting square footage, changing the roof pitch, or more, the plan modification service is a great value and can be completed quickly. Additionally, if you purchase an electronic plan set (PDF or CAD), you may have the option to make changes locally. CAD files offer the most flexibility for custom edits. Just let us know what you're thinking, and we’ll provide an estimate and timeframe to get started. Learn more here.

How much does a house cost to build?

Find out! Build costs vary based on the size of the home, materials used, and local rates for goods and labor. Our Cost to Build report is a great way to get some basic costs dialed in before you order your plans. Just plug in your postal code, select your desired construction quality, and we'll calculate for you.

Learn more about Cost to Build reports here.

Can I trust Houseplans?

Founded in 2004, Houseplans works with hundreds of architects and designers to offer their plans at a fraction of the price of custom design. Houseplans has an "Excellent" rating on TrustPilot.

Read more about us here.

Does Houseplans offer live support?

Yes, Houseplans has a dedicated team of house plan advisors with decades of experience between them. You can reach them by calling, emailing, filling out a form on the page of a plan that you like, or going to the Contact Us page. We're available to talk every day, even on weekends.

Builder Advantage Home

Builder Advantage Program

Are you a Pro Builder? Join the club, save 5% on your first order, get exclusive discounts, and more.

Learn More

You may also like

Save Plan
Mediterranean

Plan 135-166

$2800.00

beds4

bd

baths3.5

ba

stories2

stories

square feet4923

sq ft

View Related Collections
Shop All Styles

Recently viewed plans

Exterior - Front Elevation for Mediterranean House Plan #27-214 - 4 bed, 4.5 bath
Save Plan

Plan 27-214

$2500.00

beds4

bd

baths4.5

ba

stories2

stories

square feet4802

sq ft